287x
005555
21-06-2024

Análisis de estabilidad según el Eurocódigo 3 (EN 1993-1-1)

¿Es posible realizar análisis de estabilidad según el Eurocódigo 3 (EN 1993-1-1) en RSECTION 1?


Respuesta:

Los cálculos de estabilidad según EN 1993-1-1, 6.3 no están incluidos en RSECTION 1.

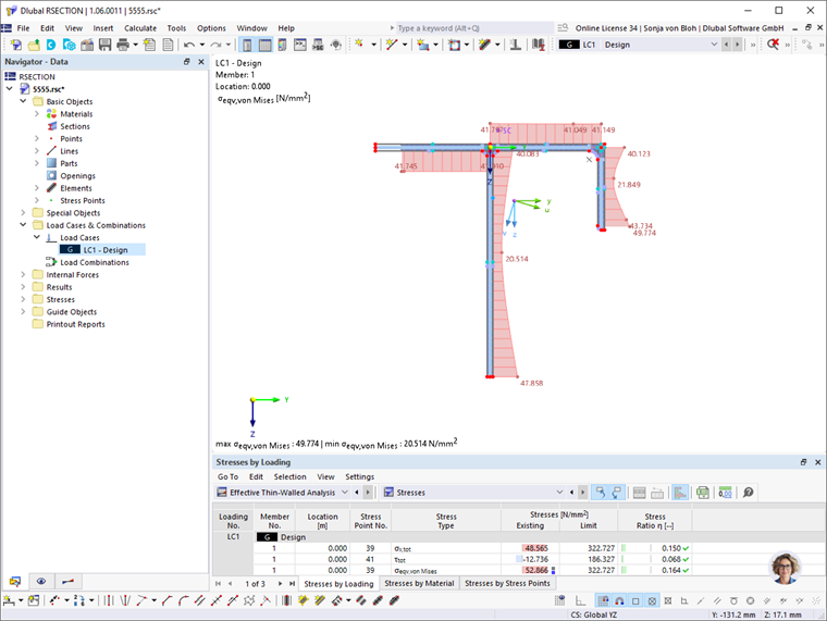
Según EN 1993-1-1, 5.2.2 (7) a), el análisis de estabilidad puede llevarse a cabo como un cálculo de la sección transversal si se realiza un análisis espacial según la teoría de segundo orden con un enfoque de imperfecciones globales y locales. Para representar el pandeo lateral-torsional, es necesario realizar un análisis de esfuerzos según el análisis de pandeo torsional geométricamente no lineal, considerando la torsión de alabeo. Solo se requieren cálculos de sección transversal, ya que el cálculo cubre todos los efectos de estabilidad.

En RSECTION 1, se pueden calcular las tensiones a partir de la fuerza axil, los momentos de flexión biaxiales y los esfuerzos cortantes, el momento torsional primario y secundario, así como el bimomento de alabeo para formas de sección transversal arbitrarias. Esto permite que en RSECTION 1 sea posible el procedimiento de cálculo descrito en el Eurocódigo 3 (EN 1993-1-1, 5.2.2 (7) a).

Además, se puede realizar una clasificación según EN 1993-1-1 y calcular la sección transversal eficaz según EN 1993-1-5.


Autor

Sra. von Bloh proporciona soporte técnico a nuestros clientes y es responsable del desarrollo del programa SHAPE-THIN, así como de las estructuras de acero y aluminio.



;