353x
005188
2024-11-24

FAQ 005629 | 如何分析面的线支座的支座反力?
是否结果...

问题:
如何分析面的线支座的支座反力?
这些结果剖面对您有帮助吗?

答案:
对于面模型,程序使用线支座。 对支座反力进行分析,例如用于检查建模或计算支座反力,以便传递给其他结构。 如果支座条件用非线性定义或支座线是弯曲的,那么使用软件进行分析会很有帮助。
该对梁结构的分析很简单。 下图显示的是一个悬臂简支梁,在节点支座的左边和右边各有一个剪力,它们之和为相反的支座反力。 剪力和支座反力的总和为零。

注意图中剪力的突变和节点支座的突变。 这种剪力分布图在杆件结构中直观可见。
在面结构中,这种分布不能总是用有限元来表示。 在这种情况下,在节点支座或者线支座附近会出现数值误差。
首先是分析支座反力。 为此,使用上述结构模型,其中管道截面已分解为面,悬臂支座为非线性线支座。
通过信息框显示:
沿支座线的支座反力可以通过全局显示与长度相关的支座反力pz 值来实现。 在该信息栏中显示与长度相关的支座反力。

通过结果图显示:
沿支座线的支座反力可以通过计算结果图来激活。 激活“恒定平滑”按钮可以显示与长度相关的支座反力之和。

以上两种选项得出的支座反力 Fz = 15 kN。
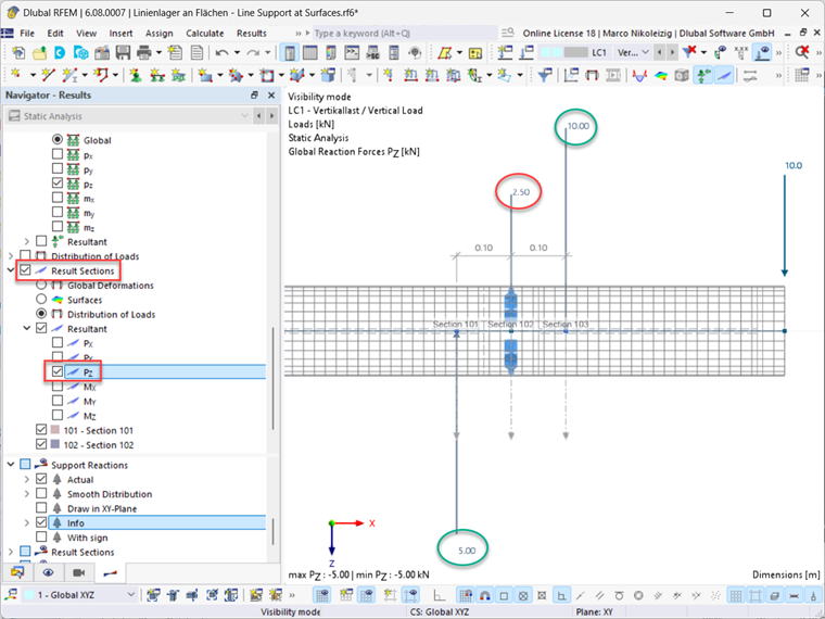
下面将尝试通过结果剖面图来计算支座反力。 为此将在上述杆件的面模型上生成三个结果剖面。 截面 101 和 103 在支座线的左侧和右侧,截面 102 直接位于支座线上。 现在在结果剖面上激活显示荷载分布 Pz 。
见图 05:
您可以看到,支座线右侧和左侧的截面显示了剪力的预期值 Vz = 5 kN 和 Vz = 10 kN。 直接在支座线上的截面 102 具有意外的 Vz = 2.5 kN。

如果将截面 102 向左或向右(即支座线旁边)移动几毫米,则最终的结果值为 5 kN 或 10 kN。 支座位置上的 102 为剪力突变点所在的位置。 因此,该位置的剪力大小无关紧要,数值的显示则无法显示。 尽管如此,还是会显示一个值,为什么?
请参阅文章开头关于数值误差的信息。 为了明确起见,将结果杆件建模到面模型的轴上,该杆件将管道截面的面结果投影到自身上。
结果:
当支座线支座中剪力突变发生时,剪力线的斜率有限,但没有剪力突变。 剪力线与杆件轴线的交点并不直接在支座线上,而是在旁边,见图6。

直接查看线支座的结果剖面并不完全适用于计算支座反力。 不考虑支座反力和内力,本节提供无意义的结果。



;