3358x
000879
29.06.2021

Paramétrage des sections laminées

Les sections laminées, considérées comme le type de section le plus courant dans RFEM et RSTAB, peuvent également bénéficier d'un paramétrage défini par l'utilisateur. Pour ce faire, sélectionnez la section à modifier dans la bibliothèque de sections puis cliquez sur l'icône [Entrée paramétrique...].

Une boîte de dialogue apparaîtra ensuite. Elle nous permettra d'ajuster les paramètres avant de confirmer en cliquant sur [OK]. Si vous souhaitez modifier les paramètres par la suite, il est possible d'effectuer cette opération directement dans la description de la section concernée ou bien dans le Tableau 1.13.

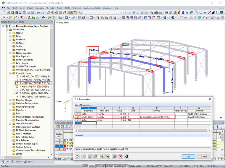
Une autre option très efficace et nuancée consiste à exploiter les paramètres de la liste de paramètres en tenant compte des paramètres de section. N'importe quelles variables peuvent y être générées. Cette démarche est également possible en s'appuyant sur des formules faisant référence à d'autres variables ou, comme décrit, en consultant les paramètres de section.

Il est ainsi possible de modéliser une longueur de section variable, en se basant par exemple sur la hauteur de la section au sein d'une structure.


Liens


;