1395x
003598
2025-05-28

Dimensionamento de acordo com cargas sísmicas no RF-/DYNAM Pro

Utilizei o módulo adicional RF-/DYNAM Pro para gerar as combinações de resultados determinantes das cargas sísmicas. Qual é o procedimento seguinte para poder executar um dimensionamento dos elementos estruturais individuais?


Resposta:

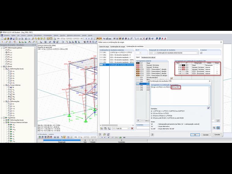
Com os módulos adicionais Cargas Equivalentes e Vibrações Forçadas, podem ser criadas combinações de resultados que contêm as combinações dominantes das cargas sísmicas. Para poder dimensionar com estas, é necessário combiná-las com base na combinação excecional. Esta combinação está, por exemplo, definida na EN 1990 Seção 6.4.3.4:

Esta combinação excecional deve ser definida manualmente no RFEM. Deve-se garantir que (numa combinação de direções com a regra de 100/30%) as duas combinações de resultados criadas a partir do RF-/DYNAM Pro sejam adicionadas com a condição "Ou". Uma combinação desse tipo pode ser vista na Figura 02.

Esta combinação excecional pode então ser utilizada para o dimensionamento posterior. Existe a possibilidade de avaliar os esforços internos dominantes, bem como de importar e calcular esta combinação nos módulos de dimensionamento.


Autor

A Eng.ª Effler é responsável pelo desenvolvimento de produtos para análises dinâmicas e fornece apoio técnico aos nossos clientes.

Referências
Downloads


;