1026x
004416
2020-05-12

Mensagem de erro: Querschnitt ohne Materialzuweisung

Na biblioteca de secções, recebo uma mensagem de erro a informar que o material não está atribuído a uma secção. O que devo fazer?


Resposta:

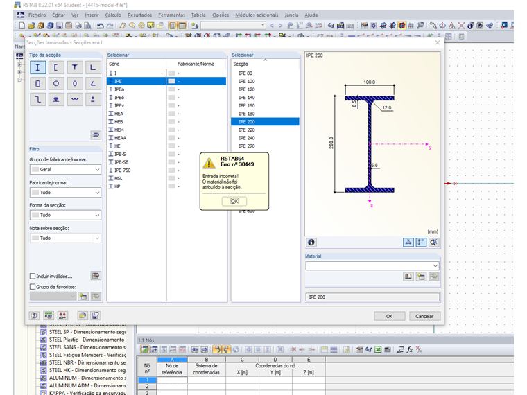
A mensagem de erro apresentada na Figura 01 surge quando não é definido o material para a secção.

Neste caso, é necessário atribuir o material à secção. Para selecionar um material da biblioteca de materiais, abra a biblioteca clicando no botão "Importar da biblioteca de materiais" e selecione o material pretendido (Figura 02).

O procedimento é demonstrado no vídeo.


Autor

A Eng.ª von Bloh fornece apoio técnico a clientes e também é responsável pelo desenvolvimento do programa RSECTION e pelas estruturas de aço e alumínio.

Downloads


;