1026x
004416
2020-05-12

Komunikat o błędzie: Querschnitt ohne Materialzuweisung

W bibliotece przekrojów pojawia się komunikat o błędzie informujący o tym, że materiał nie jest przypisany do przekroju. Co możemy zrobić?


Odpowiedź:

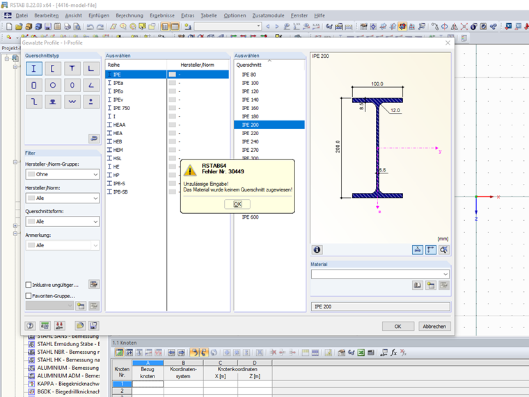
Komunikat o błędzie pokazany na rysunku 01 jest wyświetlany, jeżeli dla przekroju nie został zdefiniowany materiał.

In diesem Fall ist dem Querschnitt ein Material zuzuordnen. Um ein Material aus der Materialbibliothek auszuwählen, ist diese Bibliothek über die Schaltfläche "Material aus der Materialbibliothek übernehmen" zu öffnen und das gewünschte Material auszuwählen (Bild 02).

Zastosowanie funkcji pokazano w filmie.


Autor

Pani von Bloh zapewnia naszym klientom wsparcie techniczne i jest odpowiedzialna za rozwój programu SHAPE‑THIN oraz konstrukcji stalowych i aluminiowych.

Pobrane


;