1026x
004416
2020-05-12

Error Message: Cross-Section Without Assigning Material

The cross-section library displays an error message saying the material is not assigned to a cross-section. What can I do?


Answer:

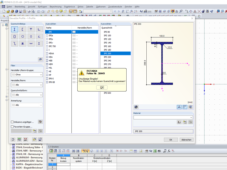
The error message shown in Image 01 is displayed if no material has been defined for the cross-section.

In this case, it is necessary to assign the material to the cross-section. To select a material from the material library, open the library by clicking the "Import Material from Material Library" button and select the material (Image 02).

The video shows the procedure.


Author

Ms. von Bloh provides technical support for our customers and is responsible for the development of the SHAPE‑THIN program as well as steel and aluminum structures.

Downloads


;