1026x
004416
12.5.2020

Chybové hlášení: Querschnitt ohne Materialzuweisung

V knihovně průřezů se mi zobrazí chybové hlášení, že pro průřez nebyl přiřazen žádný materiál. Co je zde nutné udělat?


Odpověď:

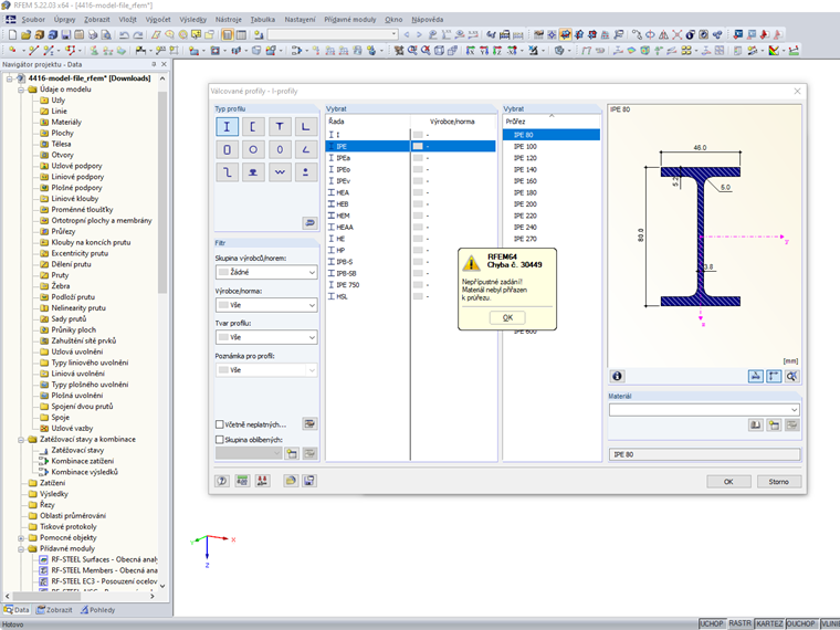
Pokud pro průřez nebyl definován žádný materiál, zobrazí se chybové hlášení podle Obrázku 1.

V takovém případě musí být průřezu přiřazen materiál. Chcete-li vybrat materiál z databáze, otevřete databázi materiálů kliknutím na tlačítko "Převzít materiál z databáze" a vyberte požadovaný materiál (Obrázek 2).

Video ukazuje postup.


Autor

Ing. von Bloh zajišťuje technickou podporu zákazníkům a je zodpovědná za vývoj programu RSECTION a addonů pro ocelové a hliníkové konstrukce.

Stahování


;