1026x
004416
2020-05-12

Messaggio di errore: Querschnitt ohne Materialzuweisung

Nella libreria delle sezioni trasversali, ricevo un messaggio di errore dicendo che non è stato assegnato alcun materiale per la sezione. Cosa posso fare?


Risposta:

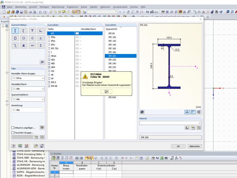
Il messaggio di errore mostrato nella Figura 01 viene visualizzato se non è stato definito nessun materiale per la sezione trasversale.

In questo caso, è necessario assegnare il materiale alla sezione trasversale. Per selezionare un materiale dalla libreria dei materiali, apri la libreria facendo clic sul pulsante "Importa materiale dalla libreria dei materiali" e seleziona il materiale (Figura 02).

Il video mostra il procedimento.


Autore

La signora von Bloh fornisce supporto tecnico per i nostri clienti ed è responsabile dello sviluppo del programma SHAPE‑THIN e delle strutture in acciaio e alluminio.

Download


;