1026x
004416
12. Mai 2020

Fehlermeldung: Querschnitt ohne Materialzuweisung

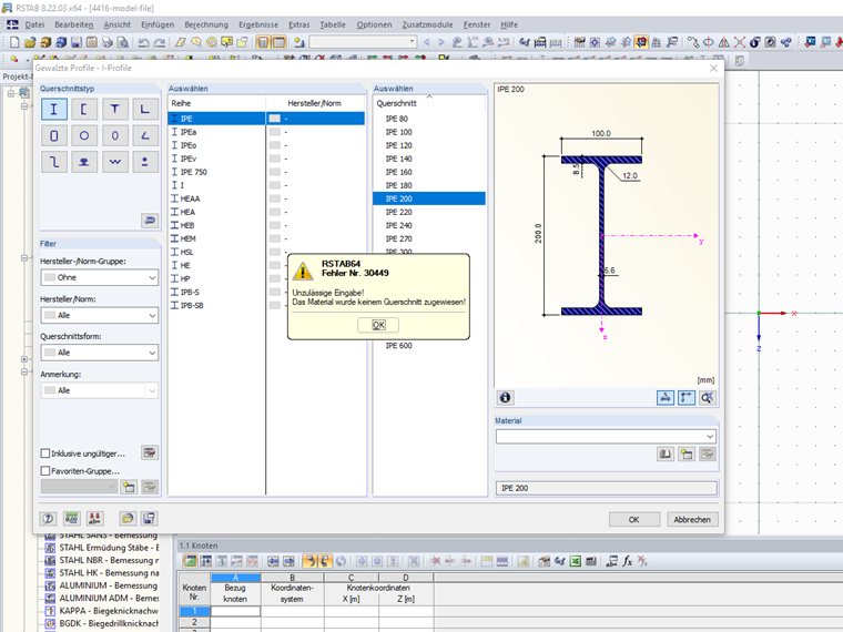
Ich erhalte in der Querschnittsbibliothek die Fehlermeldung, dass dem Querschnitt kein Material zugewiesen wurde. Was ist zu tun?


Antwort:

Die im Bild 01 dargestellte Fehlermeldung wird ausgegeben, wenn für einen Querschnitt kein Material definiert wurde.

In diesem Fall ist dem Querschnitt ein Material zuzuordnen. Um ein Material aus der Materialbibliothek auszuwählen, ist diese Bibliothek über die Schaltfläche "Material aus der Materialbibliothek übernehmen" zu öffnen und das gewünschte Material auszuwählen (Bild 02).

Die Vorgehensweise wird im Video gezeigt.


Autor

Frau von Bloh bietet im Kundensupport Hilfestellung für unsere Anwender und ist zudem für die Entwicklung des Programms RSECTION sowie für den Stahl- und Aluminiumbau zuständig.

Downloads


;