5626x
001431
2017-05-01

Придание жёсткости конструкции

Здания должны быть спроектированы и рассчитаны таким образом, чтобы как вертикальные, так и горизонтальные нагрузки действовали безопасно и без больших деформаций здания. Beispiele für Horizontallasten sind Wind, ungewollte Schiefstellung, Erdbeben sowie Anprall.

Программы для расчета по методу конечных элементов, такие как RFEM, позволяют определять внутренние силы и рассчитывать элементы жесткости конструкции. Das Gebäude kann darin mit allen tragenden Gebäudeteilen, Öffnungen und so weiter abgebildet und als Gesamtmodell berechnet werden.

Die Vordimensionierung von Aussteifungssystemen kann mit den in [1] dargestellten Berechnungsverfahren mittels Handrechnung oder unter Verwendung von Programmen wie DUENQ erfolgen. Sie eröffnen dem Ingenieur ein besseres Verständnis für den Lastabtrag des Systems sowie den Tragfähigkeitsbeitrag der einzelnen Bauteile.

Verteilung der Horizontalkräfte

Die Horizontallastverteilung für Biege- oder Torsionsbeanspruchung auf die aussteifenden Bauteile kann gemäß den nachfolgenden Formeln berechnet werden.

Forces due to Bending


где
Vy,i, Vz,i: Querkraft in y- beziehungsweise z-Richtung, die den Teilquerschnitt i belastet
Vy, Vz: Querkraft in y- beziehungsweise z-Richtung, die den Gesamtquerschnitt belastet
Iy,i, Iz,i, Iyz,i: Trägheitsmomente des Teilquerschnitts i, bezogen auf die zu Y und Z parallelen Achsen durch den Teilquerschnitts-Schwerpunkt Si
Iy, Iz: Gesamtträgheitsmomente bezogen auf den Gesamtschwerpunkt S

Forces due to Torsion


где
Vy,i, Vz,i: Querkraft in y- beziehungsweise z-Richtung, die den Teilquerschnitt i belastet
Mxs: sekundäres Torsionsmoment, das den Gesamtquerschnitt belastet
Iy,i, Iz,i, Iyz,i: Trägheitsmomente des Teilquerschnitts i, bezogen auf die zu Y und Z parallelen Achsen durch den Teilquerschnitts-Schwerpunkt Si
Iω,i: Wölbwiderstand bezogen auf den Teilquerschnitts-Schubmittelpunkt Mi
yM,i, zM,i: Koordinate des Teilquerschnitts-Schubmittelpunkts Mi
yM, zM: Koordinate des Gesamtschubmittelpunktes M

файл примера

Die Verteilung der horizontalen Lasten auf die aussteifenden Elemente soll an dem im Bild 1 dargestellten System exemplarisch ermittelt werden.

Wandstärke t = 30 cm

характеристики сечения

Teilquerschnitt 1

Teilquerschnitt 2

Gesamtquerschnitt
Iy = 10,668 + 1,600 = 12,268 m4
Iz = 1,084 + 0,009 = 1,093 m4

Die mit DUENQ 8 ermittelten Querschnittskennwerte sind im Bild 2 dargestellt.

Силы сечения стены жесткости

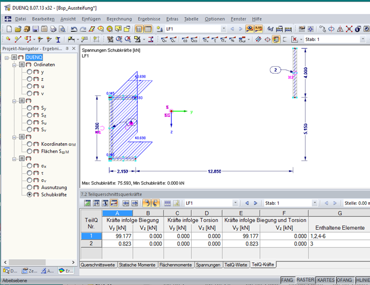
Die mit DUENQ 8 ermittelten Teilquerschnittsquerkräfte sind im Bild 3 dargestellt.

Ссылки

[1] Beck, H.; Schäfer, H.: Die Berechnung von Hochhäusern durch Zusammenfassung aller aussteifenden Bauteile zu einem Balken. Der Bauingenieur, Heft 3, 1969


Автор

Соня работает в Product Engineering и дополнительно поддерживает Customer Support. Ее основное внимание сосредоточено на RSECTION, а также на стальных и алюминиевых конструкциях, где она целенаправленно применяет свои знания.

Ссылки
Скачивания


;