5626x
001431
1.5.2017

Vyztužení nosných konstrukcí

Konstrukce je třeba navrhnout a propracovat tak, aby se svislá i vodorovná zatížení bezpečně a bez přílišných deformací přenášela do podloží. Vodorovná zatížení představuje například vítr, nežádoucí naklonění, zemětřesení nebo náraz.

Pro výpočet vnitřních sil a návrh výztužných konstrukčních prvků můžeme použít programy založené na metodě konečných prvků, jako je RFEM. Budovu v nich lze modelovat se všemi nosnými konstrukčními dílci, otvory a ostatními prvky a celý model pak lze podrobit výpočtům.

Při předběžném návrhu výztužných systémů můžeme vycházet z ručního výpočtu, který lze provést metodou popsanou v [1], anebo můžeme využít programy jako SHAPE‑THIN. Tyto programy poskytují uživatelům lepší přehled o přenosu zatížení konstrukce i o příspěvku jednotlivých konstrukčních částí na únosnosti systému.

Rozložení vodorovných sil

Rozdělení vodorovných sil na výztužné prvky při ohybovém a torzním namáhání lze stanovit pomocí následujících rovnic.

Síly od ohybu


kde
Vy,i, Vz,i: posouvající síla ve směru y, resp. z, kterou je namáhán dílčí průřez i
Vy, Vz: posouvající síla ve směru y, resp. z, kterou je namáhán celý průřez
Iy,i, Iz,i, Iyz,i: momenty setrvačnosti dílčího půřezu i, vztažené k osám procházejícím těžištěm dílčího průřezu Si a rovnoběžným s osami Y a Z
Iy, Iz: celkové momenty setrvačnosti vztažené k těžišti celého průřezu S

Síly od kroucení


kde
Vy,i, Vz,i: posouvající síla ve směru y, resp. z, kterou je namáhán dílčí průřez i
Mxs: sekundární kroutící moment, kterým je namáhán celý průřez
Iy,i, Iz,i, Iyz,i: momenty setrvačnosti dílčího půřezu i, vztažené k osám procházejícím těžištěm dílčího průřezu Si a rovnoběžným s osami Y a Z
Iω,i je deplanační konstanta vztažená ke středu smyku Mi dílčího průřezu,
yM,i, zM,i: souřadnice středu smyku Mi dílčího průřezu
yM, zM: souřadnice středu smyku M celého průřezu

Příklad

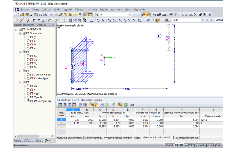
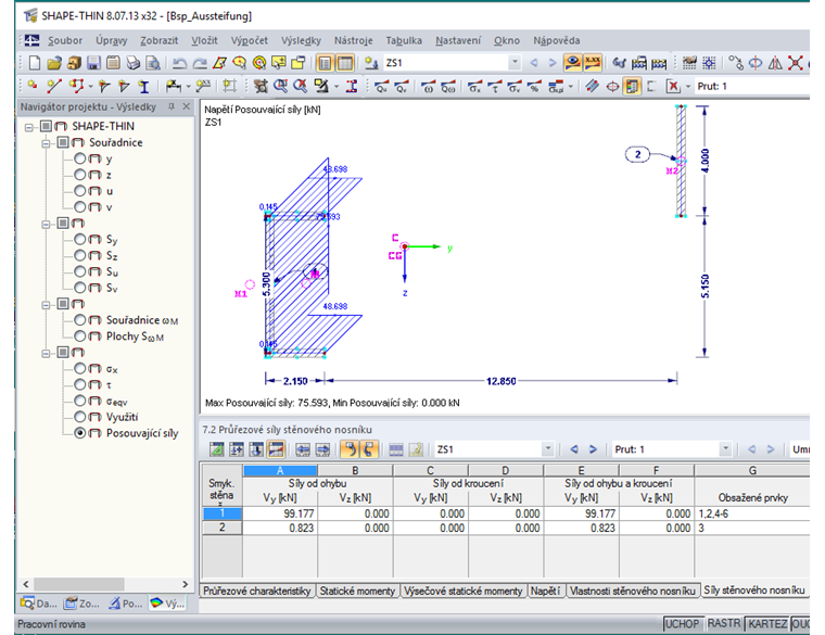
Výpočet rozložení vodorovných zatížení na výztužné prvky si názorně předvedeme na konstrukci, kterou vidíme na obr. 01.

Tloušťka stěny t = 30 cm

průřezové charakteristiky

Dílčí průřez 1

Dílčí průřez 2

Celý průřez
Iy = 10,668 + 1,600 = 12,268 m4
Iz = 1,084 + 0,009 = 1,093 m4

Průřezové hodnoty, které vypočítal program SHAPE-THIN, jsou znázorněny na obr. 02.

Posouvající síly v dílčím průřezu

Posouvající síly v dílčím průřezu, které vypočítal program SHAPE‑THIN, vidíme na obr. 03.

Reference

[1] Beck, H.; Schäfer, H.: Die Berechnung von Hochhäusern durch Zusammenfassung aller aussteifenden Bauteile zu einem Balken. Der Bauingenieur, Heft 3, 1969


Autor

Sonja pracuje v Product Engineering a navíc podporuje i Customer Support. Zaměřuje se na RSECTION i ocelové a hliníkové konstrukce, kde své znalosti cíleně uplatňuje.

Odkazy
Stahování


;