5626x
001431
01-05-2017

Rigidez de las estructuras

Los edificios se deben diseñar y dimensionar de forma que las cargas verticales y horizontales se conduzcan de forma segura y sin grandes deformaciones en el edificio. Beispiele für Horizontallasten sind Wind, ungewollte Schiefstellung, Erdbeben sowie Anprall.

El software de análisis por elementos finitos como RFEM le permite determinar los esfuerzos internos y diseñar elementos estructurales de rigidez. Das Gebäude kann darin mit allen tragenden Gebäudeteilen, Öffnungen und so weiter abgebildet und als Gesamtmodell berechnet werden.

Die Vordimensionierung von Aussteifungssystemen kann mit den in [1] dargestellten Berechnungsverfahren mittels Handrechnung oder unter Verwendung von Programmen wie DUENQ erfolgen. Sie eröffnen dem Ingenieur ein besseres Verständnis für den Lastabtrag des Systems sowie den Tragfähigkeitsbeitrag der einzelnen Bauteile.

Verteilung der Horizontalkräfte

Die Horizontallastverteilung für Biege- oder Torsionsbeanspruchung auf die aussteifenden Bauteile kann gemäß den nachfolgenden Formeln berechnet werden.

Forces due to Bending


Donde
Vy,i, Vz,i: Querkraft in y- beziehungsweise z-Richtung, die den Teilquerschnitt i belastet
Vy, Vz: Querkraft in y- beziehungsweise z-Richtung, die den Gesamtquerschnitt belastet
Iy,i, Iz,i, Iyz,i: Trägheitsmomente des Teilquerschnitts i, bezogen auf die zu Y und Z parallelen Achsen durch den Teilquerschnitts-Schwerpunkt Si
Iy, Iz: Gesamtträgheitsmomente bezogen auf den Gesamtschwerpunkt S

Forces due to Torsion


Donde
Vy,i, Vz,i: Querkraft in y- beziehungsweise z-Richtung, die den Teilquerschnitt i belastet
Mxs: sekundäres Torsionsmoment, das den Gesamtquerschnitt belastet
Iy,i, Iz,i, Iyz,i: Trägheitsmomente des Teilquerschnitts i, bezogen auf die zu Y und Z parallelen Achsen durch den Teilquerschnitts-Schwerpunkt Si
Iω,i: Wölbwiderstand bezogen auf den Teilquerschnitts-Schubmittelpunkt Mi
yM,i, zM,i: Koordinate des Teilquerschnitts-Schubmittelpunkts Mi
yM, zM: Koordinate des Gesamtschubmittelpunktes M

Ejemplo

Die Verteilung der horizontalen Lasten auf die aussteifenden Elemente soll an dem im Bild 1 dargestellten System exemplarisch ermittelt werden.

Espesor del muro t = 30 cm

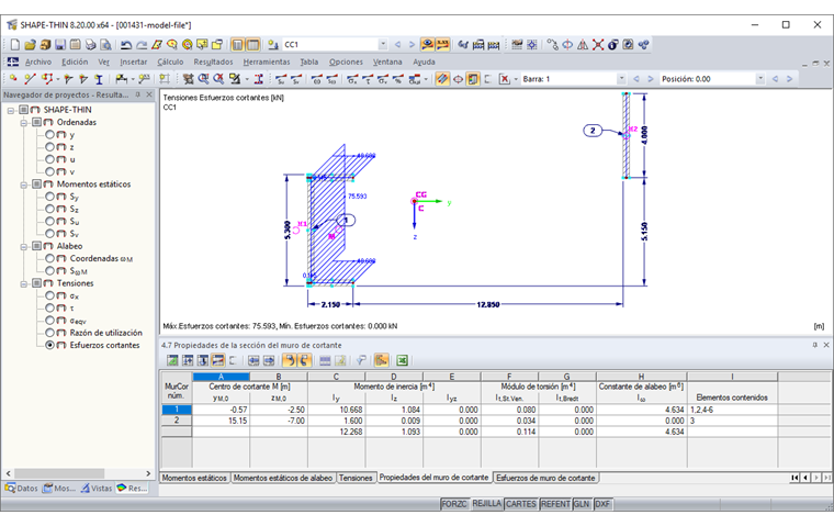
propiedades de la sección

Teilquerschnitt 1

Teilquerschnitt 2

sección bruta
Iy = 10,668 + 1,600 = 12,268 m4
Iz = 1,084 + 0,009 = 1,093 m4

Die mit DUENQ 8 ermittelten Querschnittskennwerte sind im Bild 2 dargestellt.

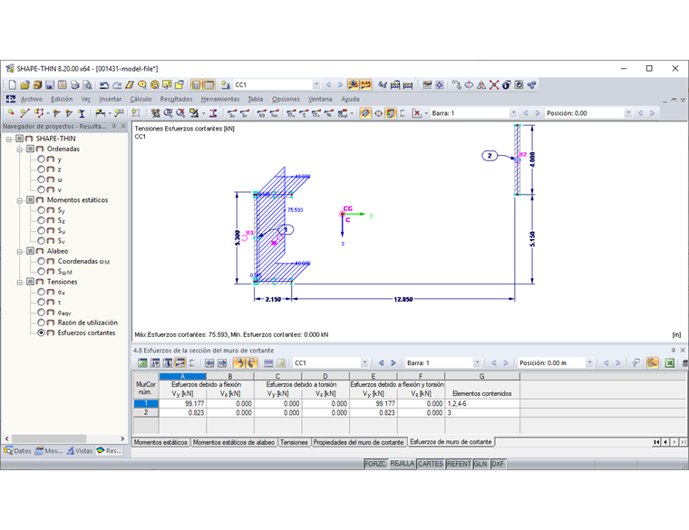
Esfuerzos de la sección del muro de cortante

Die mit DUENQ 8 ermittelten Teilquerschnittsquerkräfte sind im Bild 3 dargestellt.

Referencias

[1] Beck, H.; Schäfer, H.: Die Berechnung von Hochhäusern durch Zusammenfassung aller aussteifenden Bauteile zu einem Balken. Der Bauingenieur, Heft 3, 1969


Autor

Sonja trabaja en Product Engineering y además presta apoyo en Customer Support. Su enfoque se centra en RSECTION, así como en la construcción en acero y aluminio, donde aporta sus conocimientos de forma específica.

Enlaces
Descargas


;