5625x
001431
2017-05-01

Irrigidimento delle strutture

Gli edifici devono essere progettati e dimensionati in modo che i carichi verticali e orizzontali siano condotti in modo sicuro e senza grandi deformazioni nell'edificio. Beispiele für Horizontallasten sind Wind, ungewollte Schiefstellung, Erdbeben sowie Anprall.

Il software di analisi agli elementi finiti come RFEM consente di determinare le forze interne e di progettare elementi strutturali di irrigidimento. Das Gebäude kann darin mit allen tragenden Gebäudeteilen, Öffnungen und so weiter abgebildet und als Gesamtmodell berechnet werden.

Die Vordimensionierung von Aussteifungssystemen kann mit den in [1] dargestellten Berechnungsverfahren mittels Handrechnung oder unter Verwendung von Programmen wie DUENQ erfolgen. Sie eröffnen dem Ingenieur ein besseres Verständnis für den Lastabtrag des Systems sowie den Tragfähigkeitsbeitrag der einzelnen Bauteile.

Distribuzione delle forze orizzontali

Die Horizontallastverteilung für Biege- oder Torsionsbeanspruchung auf die aussteifenden Bauteile kann gemäß den nachfolgenden Formeln berechnet werden.

Forces due to Bending


dove
Vy,i, Vz,i: Querkraft in y- beziehungsweise z-Richtung, die den Teilquerschnitt i belastet
Vy, Vz: Querkraft in y- beziehungsweise z-Richtung, die den Gesamtquerschnitt belastet
Iy,i, Iz,i, Iyz,i: Trägheitsmomente des Teilquerschnitts i, bezogen auf die zu Y und Z parallelen Achsen durch den Teilquerschnitts-Schwerpunkt Si
Iy, Iz: Gesamtträgheitsmomente bezogen auf den Gesamtschwerpunkt S

Forze causate dalla trazione


dove
Vy,i, Vz,i: Querkraft in y- beziehungsweise z-Richtung, die den Teilquerschnitt i belastet
Mxs: sekundäres Torsionsmoment, das den Gesamtquerschnitt belastet
Iy,i, Iz,i, Iyz,i: Trägheitsmomente des Teilquerschnitts i, bezogen auf die zu Y und Z parallelen Achsen durch den Teilquerschnitts-Schwerpunkt Si
Iω,i: Wölbwiderstand bezogen auf den Teilquerschnitts-Schubmittelpunkt Mi
yM,i, zM,i: Koordinate des Teilquerschnitts-Schubmittelpunkts Mi
yM, zM: Koordinate des Gesamtschubmittelpunktes M

Esempio

Die Verteilung der horizontalen Lasten auf die aussteifenden Elemente soll an dem im Bild 1 dargestellten System exemplarisch ermittelt werden.

Spessore della parete t = 30 cm

proprietà della sezione trasversale

Teilquerschnitt 1

Teilquerschnitt 2

Gesamtquerschnitt
Iy = 10.668 + 1.600 = 12.268 m4
Iz = 1.084 + 0.009 = 1.093 m4

Die mit DUENQ 8 ermittelten Querschnittskennwerte sind im Bild 2 dargestellt.

Forze della sezione della parete di taglio

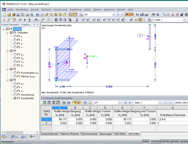
Die mit DUENQ 8 ermittelten Teilquerschnittsquerkräfte sind im Bild 3 dargestellt.

Riferimenti

[1] Beck, H.; Schäfer, H.: Die Berechnung von Hochhäusern durch Zusammenfassung aller aussteifenden Bauteile zu einem Balken. Der Bauingenieur, Heft 3, 1969


Autore

Sonja lavora nel Product Engineering e supporta inoltre nel Customer Support. Il suo focus è su RSECTION, nonché sulla costruzione in acciaio e alluminio, dove mette a frutto in modo mirato le sue conoscenze.

Link
Download


;