21439x
001497
2017-12-12

Пример расчета жесткого на изгиб соединения лобовой пластины по норме EN 1993-1-8

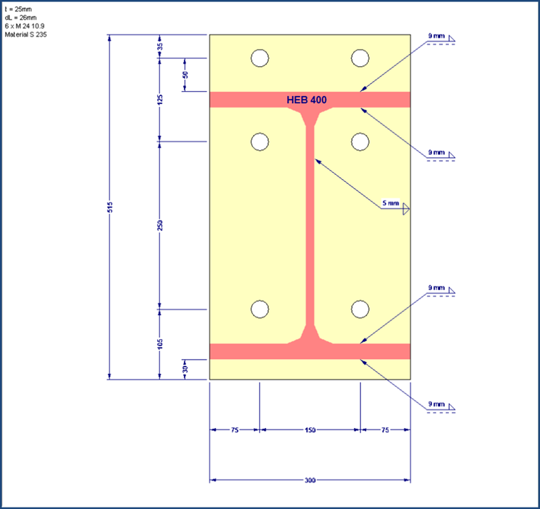
В нашем примере необходимо определить несущую способность лобовой пластины по норме EN 1993-1-8 [1]; другие компоненты здесь не рассматриваются. Для оценки результатов были использованы размеры типового соединения IH 3.1 B 30 24 из литературы [2]. В примере используется материал S 235 и болты прочности 10.9.

Определение значений рабочей длины

Сначала необходимо определить рабочие длины полок стойки по таблице 6.6. Нижний ряд болтов почти не влияет на сжатую полку из-за очень малого плеча силы, и поэтому не учитывается. Поскольку оба верхних ряда болтов разделены растянутой полкой балки, то эти ряды болтов должны рассматриваться по отдельности. Таким образом можно избежать выхода из работы группы рядов шурупов. Для расчета значений рабочих длин требуются параметры e, m, ex, mx, m2, bp, w.

В нашем примере были рассчитаны следующие значения:

У рабочих длин проводится различие между кругообразными и некругообразными шаблонами кривой текучести. Для линейного шаблона кривой текучести требуется значение α по рисунку 6.11. Вводные значения для этого основаны на отношениях плеча силы к стенке балки (λ1) или к полке балки (λ2) к общей ширине полки тавровой стойки. Значения α между двумя диаграммами на рисунке 6.11 можно линейно интерполировать.

С помощью данных вводных значений рабочие длины определяются по таблице 6.6 следующим образом.

Кругообразный шаблон линии текучести для внешнего ряда болтов:

Кругообразный шаблон линии текучести для внутреннего ряда болтов:
leff,cp,i = 2 ∙ π ∙ 62,6 = 393,3 мм

Некругообразный шаблон линии текучести для внешнего ряда болтов:

Некругообразный шаблон линии текучести для внутреннего ряда болтов:
leff,nc,i = 6,65 ∙ 62,6 = 416,3 мм

Для определения несущей способности в режиме выхода из работы 1, то есть с чистой текучестью полки, применяется более короткая длина у обоих шаблонов кривых текучести. При нахождении несущей способности в режиме выхода из работы 2, то есть выхода из работы болтов с одновременной текучестью полки, может применяться только некругообразный шаблон линии текучести.

Мы получим следующие значения рабочей длины.

Внешний ряд болтов:
leff,1,a = 150 мм
leff,2,a = 150 мм

Внутренний ряд болтов:
leff1,i = 393,3 мм
leff2,i = 416,3 мм

Проверка на возникновение опорных усилий.

Перед расчетом несущей способности лобовой пластины в режиме выхода их работы 1, необходимо проверить, могут ли возникать опорные усилия. Поскольку это позволяет достичь более высоких расчетных значений несущей способности, то размеры и толщину пакета зажимов всегда следует выбрать или задать таким образом, чтобы было выполнено условие Lb < Lb*. Lb - деформируемая длина болта, которая принята равной длине зажима (общая толщина пакета листов и подкладных шайб), плюс половина высоты головки и половина высоты гайки.

Длина зажима при условии применения симметричного балочного соединения равна:
Lb = 2 ∙ 25 + 2 ∙ 4 + 0,5 ∙ 19 + 0,5 ∙ 15 = 75 мм

Значение Lb* должно быть найдено отдельно для внешнего и внутреннего ряда болтов.

Внешний ряд болтов:

Внутренний ряд болтов:

Таким образом, в обоих рядах болтов могут возникать опорные усилия.

Несущая способность полки тавровой стойки

Для режима выхода из работы «полная текучесть полки» в данном примере используется метод 1 по норме EN 1993-1-8. Прочность на растяжение у обоих полок тавровой стойки определяется следующим образом.

Режим выхода из работы «Выход из работы болта с достижением текучести полки»:

Определяющая несущая способность полки тавровой стойки

Для обоих рядов болтов определяющим является режим выхода из работы 2.

Внешний ряд болтов: 385,12 кН

Внутренний ряд болтов: 499,24 кН

Моментная прочность соединения

Полученные расчетные значения прочности отдельных рядов болтов теперь должны быть умножены на соответствующее плечо силы до точки сжатия.

Плечо силы равно
438 мм для внешнего ряда болтов,
313 мм для внутреннего ряда болтов.

Таким образом, расчетная моментная прочность соединения равна
MRd = 385,12 ∙ 0,438 + 499,24 ∙ 0,313 = 324,95 кНм.

Сравнение результатов

Если выполнить расчет данного соединения в RF-/FRAME-JOINT Pro как для жесткого рамочного соединения, то расчетная прочность лобовой пластины составит 319,79 кНм. Согласно типовым соединениям [2], расчетная прочность составляет 331,3 кНм, что относительно точно соответствует расчету вручную.


Автор

Г-н Фрёлих оказывает техническую поддержку нашим заказчикам и отвечает за разработки железобетонных конструкций.

Ссылки
Ссылки
Скачивания


;