21439x
001497
12.12.2017

Příklad výpočtu ohybově tuhého přípoje s čelní deskou podle EN 1993-1-8

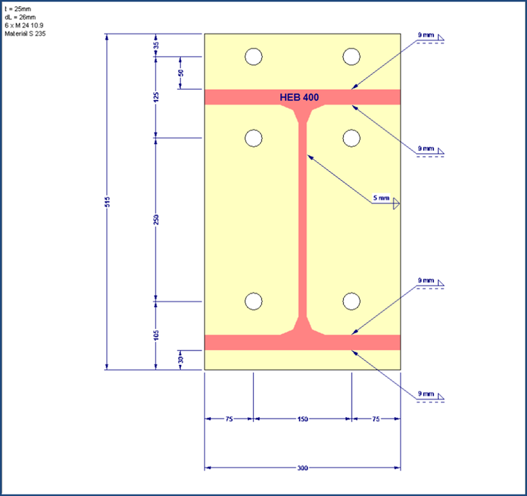
V tomto příkladu se stanoví návrhová únosnost čelní desky podle EN 1993-1-8 [1]; ostatní komponenty zde popisovány nejsou. Für die Kontrolle der Ergebnisse wurden die Abmessungen des Anschlusses IH 3.1 B 30 24 der Typisierten Anschlüsse [2] verwendet. Als Material wird S 235 verwendet und Schrauben mit der Festigkeit 10.9.

Stanovení vzpěrných délek

Nejdříve je třeba stanovit účinné délky pásnic podle tabulky 6.6. Spodní řada šroubů má vlivem velmi malého ramene téměř žádný vliv na tlačenou pásnici, a proto se zanedbává. Vzhledem k tomu, že obě horní řady šroubů jsou vyděleny tahovou přírubou nosníku, je třeba tyto řady šroubů zohlednit samostatně. Lze tak předejít skupinovému selhání řádků šroubů. Pro výpočet vzpěrných délek jsou zapotřebí parametry e, m, ex, mx , m2 , bp , w.

Pro náš příklad byly spočítány následující hodnoty:

U vzpěrných délek se rozlišuje mezi kruhovými a nekruhovými vzory na křivce. Lineární průběh meze kluzu vyžaduje hodnotu α z obr. 6.11. Vstupní hodnoty se přitom vztahují k poměru ramen ramene k stojině nosníku (λ1 ) resp. K pásnici nosníku (λ2 ) k celkové šířce pásnice T-profilu. Hodnoty pro α mezi dvěma diagramy na obr. 6.11 lze interpolovat lineárně.

Na základě těchto vstupních hodnot se vzpěrné délky stanoví podle tabulky 6.6 následujícím způsobem.

Kruhový diagram poddajnosti pro vnější řadu šroubů:

Kruhový diagram poddajnosti pro vnitřní řadu šroubů:
leff, cp, i = 2 ∙ π ∙ 62,6 = 393,3 mm

Nekruhový vzor poddajnosti pro vnější řadu šroubů:

Nekruhový vzor poddajnosti pro vnitřní řadu šroubů:
leff, nc, i = 6,65 ∙ 62,6 = 416,3 mm

Pro stanovení únosnosti v režimu porušení 1, tedy při prostém přetvoření pásnice, se použije kratší délka obou vzorků mezi kluznými plochami. Při stanovení návrhové únosnosti v neúčinnosti 2, tedy selhání šroubu při současném přetvoření pásnic, se může vyskytnout pouze nekruhový průběh křivky.

Výsledkem jsou následující vzpěrné délky.

Vnější řada šroubů:
leff, 1, a = 150 mm
leff, 2, a = 150 mm

Vnitřní řada šroubů:
leff1, i = 393,3 mm
leff2, i = 416,3 mm

Zkontrolujte, zda se mohou vyvinout síly vysychání

Před stanovením návrhové únosnosti čelní desky v neúčinnosti 1 je třeba zkontrolovat, zda se mohou vyvinout zvědavé síly. Vzhledem k tomu, že tak lze dosáhnout vyšších návrhových hodnot únosnosti, je třeba rozměry a tloušťku sady úchopů vždy volit nebo měnit tak, aby byla splněna rovnice Lb <Lb *. Lb je délka prodloužení šroubu, která se rovná délce úchopu (celková tloušťka materiálu a podložek) plus polovina součtu výšky hlavy šroubu a výšky matice.

Délka úchopu za předpokladu symetrického spoje nosníku je:
Lb = 2 ∙ 25 + 2 ∙ 4 + 0,5 ∙ 19 + 0,5 ∙ 15 = 75 mm

Lb * je třeba stanovit zvlášť pro vnější a vnitřní řadu šroubů.

Vnější řada šroubů:

Vnitřní řada šroubů:

Proto mohou v obou řadách šroubů vznikat zvědavé síly.

Návrhová únosnost pásnic T-profilu

Pro případ selhání „úplného poddajnosti pásnice“ se v našem příkladu používá metoda 1 podle EN 1993-1-8. Tahová únosnost obou pásnic T-profilu se stanoví následovně.

Způsob selhání typu "Neúčinnost šroubu s kluzností příruby":

Rozhodující je návrhová únosnost pásnic T-profilu

Pro obě řady šroubů je rozhodující režim selhání 2.

Vnější řada šroubů: 385,12 kN

Vnitřní řada šroubů: 499,24 kN

Momentová únosnost spoje

Vypočítané návrhové hodnoty únosnosti jednotlivých řad šroubů se nyní musí pouze vynásobit příslušným ramenem až k tlačenému bodu.

Páka jsou
438 mm pro vnější řadu šroubů,
313 mm pro vnitřní řadu šroubů.

Výsledkem je tak únosnost spoje v návrhových momentech
MRd = 385,12 ∙ 0,438 + 499,24 ∙ 0,313 = 324,95 kNm.

Porovnání výsledků

Pokud se má tento styčník v přídavném modulu RF-/FRAME-JOINT Pro spočítat jako tuhý rámový spoj, je výsledná únosnost čelní desky 319,79 kNm. Návrhová únosnost činí podle údajů Typifikovaných spojů [2] 331,3 kNm, což poměrně přesně odpovídá ručnímu výpočtu.


Autor

Pan Fröhlich poskytuje technickou podporu zákazníkům a je odpovědný za vývoj produktů pro ocelové konstrukce.

Odkazy
Reference
Stahování


;