21439x
001497
2017-12-12

Esempio di calcolo di collegamenti con flangia d'estremità secondo EN 1993-1-8

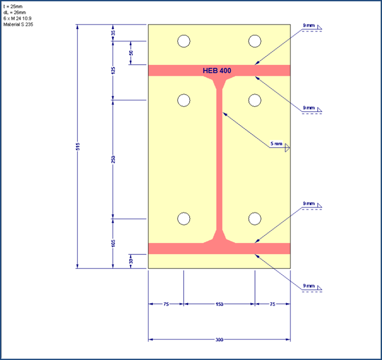
In questo esempio, deve essere determinata la resistenza di progetto di una piastra di estremità secondo EN 1993-1-8 [1]; gli altri componenti non sono descritti qui. Für die Kontrolle der Ergebnisse wurden die Abmessungen des Anschlusses IH 3.1 B 30 24 der Typisierten Anschlüsse [2] verwendet. Als Material wird S 235 verwendet und Schrauben mit der Festigkeit 10.9.

Determinazione delle lunghezze di libera inflessione

Primo, è necessario determinare le lunghezze libere di inflessione delle ali secondarie secondo la tabella 6.6. La riga inferiore di bulloni ha appena un effetto sull'ala compressa a causa del braccio molto piccolo ed è quindi trascurata. Poiché entrambe le file di bulloni superiori sono divise per l'ala tesa della trave, le file di bulloni devono essere considerate solo separatamente. Pertanto, è possibile evitare il cedimento di gruppo delle righe di bulloni. Il calcolo delle lunghezze libere di inflessione richiede i parametri e, m, ex, mx , m2 , bp , w.

Per questo esempio, sono stati calcolati i seguenti valori:

Nel caso delle lunghezze libere d'inflessione, si distingue tra modelli di linee di snervamento circolari e non circolari. Lo schema della linea di snervamento lineare richiede il valore α dalla Figura 6.11. I valori di immissione per questo si basano sulla relazione tra i bracci della leva e l'anima della trave (λ1 ) o tra l'ala della trave (λ2 ) e la larghezza totale dell'ala T-stub. I valori per α tra due diagrammi nella Figura 6.11 possono essere interpolati linearmente.

Utilizzando questi valori di input, le lunghezze libere d'inflessione sono determinate secondo la tabella 6.6 come segue.

Modello di linee di snervamento circolare per la riga esterna di bulloni:

Modello di linee di snervamento circolare per la riga interna di bulloni:
leff,cp,i = 2 ∙ π ∙ 62.6 = 393.3 mm

Modello di linee di snervamento non circolare per la riga esterna di bulloni:

Modello di linee di snervamento non circolare per la riga interna di bulloni:
leff,nc,i = 6,65 ∙ 62,6 = 416,3 mm

Per determinare la resistenza di progetto nella modalità di rottura 1, ovvero con snervamento dell'ala puro, è stata utilizzata la lunghezza più breve di entrambi i modelli di linee di snervamento. Quando si determina la resistenza di progetto nella modalità di rottura 2, che è la rottura del bullone con snervamento simultaneo dell'ala, può verificarsi solo lo schema di linee di snervamento non circolare.

Ciò risulta nelle seguenti lunghezze libere di inflessione.

Fila di bulloni esterni:
leff,1,a = 150 mm
leff,2,a = 150 mm

Fila interna di bulloni:
leff1,i = 393,3 mm
leff2,i = 416,3 mm

Controlla se possono svilupparsi forze indiscrete

Prima di determinare la resistenza di progetto della piastra d'estremità nella modalità di rottura 1, è necessario controllare se possono svilupparsi forze indiscrete. Poiché ciò consente di ottenere valori di resistenza di progetto più elevati, le dimensioni e lo spessore del pacchetto di impugnature dovrebbero sempre essere scelti o modificati in modo tale da soddisfare l'equazione Lb < Lb * è soddisfatta. Lb è la lunghezza di allungamento del bullone, presa uguale alla lunghezza della presa (spessore totale del materiale e delle rondelle), più metà della somma dell'altezza della testa del bullone e dell'altezza del dado.

La lunghezza del grip, supponendo che sia applicato un giunto simmetrico, risulta in:
Lb = 2 ∙ 25 + 2 ∙ 4 + 0,5 ∙ 19 + 0,5 ∙ 15 = 75 mm

Lb * deve essere determinato separatamente per la fila di bulloni esterna ed interna.

Fila di bulloni esterni:

Fila interna di bulloni:

Pertanto, forze indiscrete possono svilupparsi in entrambe le file di bulloni.

Resistenza di progetto delle ali a T-Stub

Per la modalità di rottura "completo snervamento dell'ala", in questo esempio viene utilizzato il metodo 1 della EN 1993-1-8. La resistenza a trazione di entrambe le ali a T-stub è determinata come segue.

Modo di rottura "Rottura del bullone con snervamento dell'ala":

Determinazione della resistenza di progetto di ali T-Stub

La modalità di rottura 2 governa per entrambe le file di bulloni.

Fila di bulloni esterni: 385,12 kN

Fila interna di bulloni: 499,24 kN

Resistenza al momento del giunto

I valori di resistenza di progetto calcolati per le singole file di bulloni ora devono essere moltiplicati solo per il rispettivo braccio fino al punto di compressione.

I bracci della leva sono
438 mm per la fila di bulloni esterna,
313 mm per la fila interna di bulloni.

Pertanto, risulta la resistenza del momento di progetto del giunto
MRd = 385,12 ∙ 0,438 + 499,24 ∙ 0,313 = 324,95 kNm.

Confronto dei risultati

Se questo giunto è calcolato come un giunto rigido in RF-/FRAME-JOINT Pro, la resistenza di progetto risultante della piastra d'estremità è 319.79 kNm. Secondo Attacchi tipizzati [2] , la resistenza di progetto è 331.3 kNm, che corrisponde in modo relativamente preciso al calcolo manuale.


Autore

Il Sig. Fröhlich fornisce supporto tecnico ai nostri clienti ed è responsabile dello sviluppo nel settore delle strutture in cemento armato.

Link
Bibliografia
Download


;