1532x
001528
2018-07-18

Применение шаблонов в VCmaster

Используя интерфейс, мы можем экспортировать печатный протокол результатов из RFEM/RSTAB в VCmaste и продолжить там редактирование. VCmaster - это программа обработки текстов для инженеров.

В VCmaster можно легко экспортировать, упорядочить, управлять и повторно применять результаты программ расчета конструкций и программ САПР, специализированную информацию, нормы и спецификации производителей.

На основе статьи Экспорт в VCmaster, в которой поясняется процесс экспорта печатного протокола из RFEM/RSTAB в VCmaster, мы покажем дополнительные функции VCmaster.

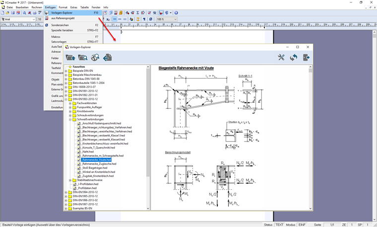
VCmaster содержит множество шаблонов для вычислений. Diese bieten Lösungen für Details und Einzelnachweise in den Bereichen Stahl-, Holz-, Massiv-, Verbund-, Grund- und Mauerwerksbau sowie im Maschinen- und Anlagenbau. So können beispielsweise RFEM-/RSTAB-Berechnungen um Detailnachweise (zum Beispiel Verbindungen) ergänzt werden.

Über "Einfügen" → "Vorlagen-Explorer" wählt man die hinterlegte Vorlage aus und übergibt diese anschließend an VCmaster.

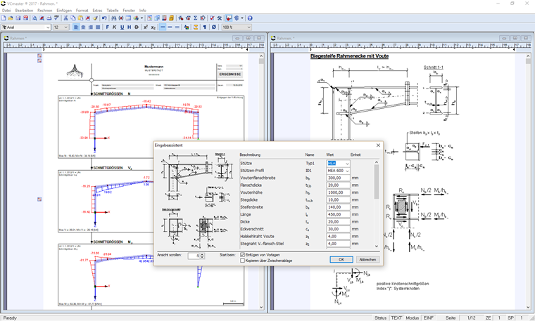
Откроется диалоговое окно, в котором запрашиваются входные данные.

Die Funktion "Dokument überprüfen" ermöglicht es Ihnen, nach nicht erfüllten Nachweisen zu suchen.

Если расчет не выполнен, или если запись необходимо изменить, его можно отредактировать позже.

Alle Vorlagen können beliebig erweitert, kombiniert und an individuelle Anforderungen angepasst werden.

Selbst erstellte Vorlagen werden schnell und einfach über "Datei" → "Vorlagenverwaltung" ergänzt.

VCmaster ermöglicht Ihnen so ein reibungsloses und schnelles Zusammenstellen und Dokumentieren verschiedenster Daten.


Автор

Г-жа Матула оказывает техническую поддержку всем нашим пользователям.

Ссылки
Скачивания


;