1532x
001528
18.07.2018

Utilisation des modèles types dans VCmaster

À l’aide de l’interface dédiée, vous pouvez exporter le rapport d’impression de RFEM/RSTAB vers VCmaster et y modifier le fichier. VCmaster est un logiciel de traitement de texte pour les ingénieurs.

La sortie des logiciels de calcul de structure et de CAO, comprenant des informations techniques, des normes de construction et des spécifications des fabricants peut être aisément exportée, compilée, gérée et réutilisée dans VCmaster.

Un article précédent, Export vers VCmaster, a expliqué la procédure d’export du rapport d’impression de RFEM/RSTAB vers VCmaster. Ci-dessous nous vous présentons d’autres fonctionnalités de ce logiciel.

VCmaster dispose de nombreux modèles types pour le calcul. Ils mettent à votre disposition des solutions pour le calcul des détails des structures bois, béton, composites, le calcul des fondations et de la maçonnerie, ainsi que le calcul pour le génie mécanique et industriel. Il est par exemple possible d’ajouter des vérifications détaillées (par exemple des assemblages) aux calculs de RFEM/RSTAB.

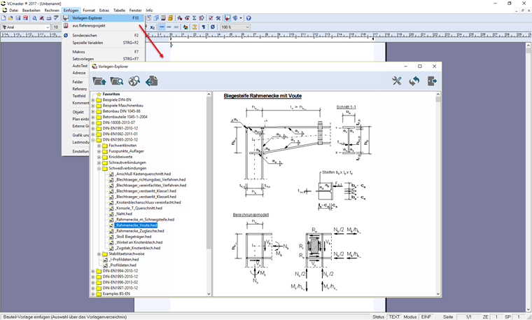
Le modèle type enregistré est sélectionné et exporté vers VCmaster via « Insérer » → « Explorateur de modèles type ».

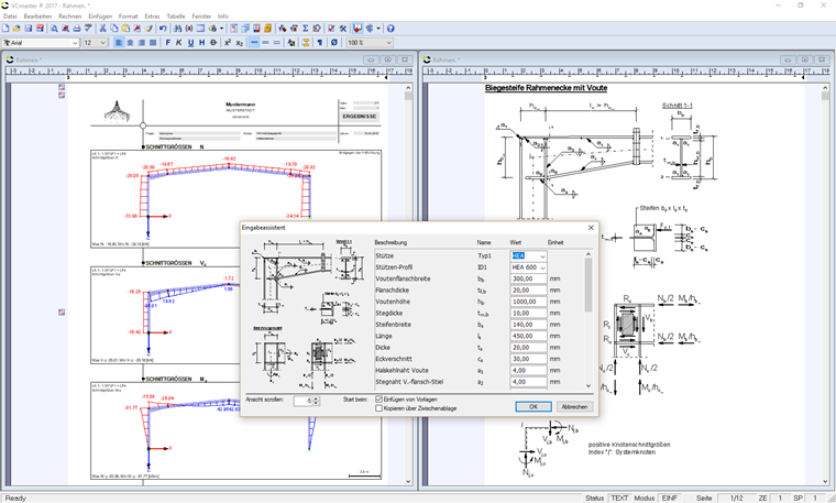
Une boîte de dialogue s’ouvre dans laquelle vous renseignez les données d’entrée.

Les vérifications non réussies peuvent être recherchées à l’aide de la fonction « Contrôler le document ».

Si une vérification n’est pas réussie ou si les entrées doivent être modifiées, il n’est pas nécessaire de travailler dessus immédiatement.

Tous les modèles types peuvent être modifiés, combinés et adaptés à vos exigences.

Les modèles types personnalisés peuvent être ajoutés facilement et rapidement via « Fichier » → « Gestion des modèles ».

Différentes données peuvent ainsi être créées et documentées rapidement et facilement avec VCmaster.


Auteur

Madame Matula s'occupe des demandes de nos utilisateurs au support client.

Liens
Téléchargements


;