1532x
001528
2018-07-18

Utilização de modelos no VCmaster

Através de uma interface é possível exportar o relatório de impressão do RFEM/RSTAB para o VCmaster e continuar a ser editado no VCmaster. O VCmaster é um programa de processamento de texto para engenheiros.

Os resultados dos programas de análise estrutural e CAD, informações especializadas, normas e especificações dos fabricantes podem ser facilmente exportados, organizados, geridos e reutilizados com o VCmaster.

Anknüpfend an den Export zu VCmaster, wo bereits die Vorgehensweise des Ausdruckprotokoll-Exports von RFEM/RSTAB zu VCmaster erläutert wurde, sollen nachfolgend weitere Funktionen von VCmaster aufgeführt werden.

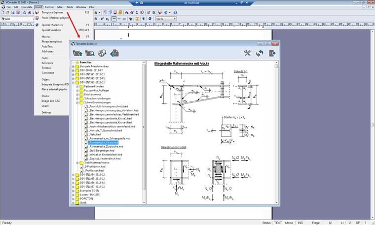
VCmaster enthält zahlreiche rechenfähige Vorlagen. Diese bieten Lösungen für Details und Einzelnachweise in den Bereichen Stahl-, Holz-, Massiv-, Verbund-, Grund- und Mauerwerksbau sowie im Maschinen- und Anlagenbau. So können beispielsweise RFEM-/RSTAB-Berechnungen um Detailnachweise (zum Beispiel Verbindungen) ergänzt werden.

Über "Einfügen" → "Vorlagen-Explorer" wählt man die hinterlegte Vorlage aus und übergibt diese anschließend an VCmaster.

Es öffnet sich ein Dialog, in welchem alle Eingabedaten abgefragt werden.

Die Funktion "Dokument überprüfen" ermöglicht es Ihnen, nach nicht erfüllten Nachweisen zu suchen.

Sollte ein Nachweis nicht erfüllt sein oder müssen Eingaben geändert werden, kann dies nachträglich angepasst werden.

Alle Vorlagen können beliebig erweitert, kombiniert und an individuelle Anforderungen angepasst werden.

Selbst erstellte Vorlagen werden schnell und einfach über "Datei" → "Vorlagenverwaltung" ergänzt.

VCmaster ermöglicht Ihnen so ein reibungsloses und schnelles Zusammenstellen und Dokumentieren verschiedenster Daten.


Autor

A Eng.ª Matula trabalha na área do apoio cliente.

Ligações
Downloads


;