1532x
001528
18. Juli 2018

Verwendung von Vorlagen in VCmaster

Mithilfe einer Schnittstelle ist es möglich, das RFEM-/RSTAB-Ausdruckprotokoll an das Programm VCmaster zu übergeben und dort weiter zu bearbeiten. VCmaster ist ein Textverarbeitungsprogramm für Ingenieure.

Die Ausgaben von Statik- und CAD-Programmen, Fachinformationen, Normen und Herstellerangaben können mit VCmaster sehr einfach übergeben, zusammengestellt, verwaltet und wiederverwendet werden.

Anknüpfend an den Export zu VCmaster, wo bereits die Vorgehensweise des Ausdruckprotokoll-Exports von RFEM/RSTAB zu VCmaster erläutert wurde, sollen nachfolgend weitere Funktionen von VCmaster aufgeführt werden.

VCmaster enthält zahlreiche rechenfähige Vorlagen. Diese bieten Lösungen für Details und Einzelnachweise in den Bereichen Stahl-, Holz-, Massiv-, Verbund-, Grund- und Mauerwerksbau sowie im Maschinen- und Anlagenbau. So können beispielsweise RFEM-/RSTAB-Berechnungen um Detailnachweise (zum Beispiel Verbindungen) ergänzt werden.

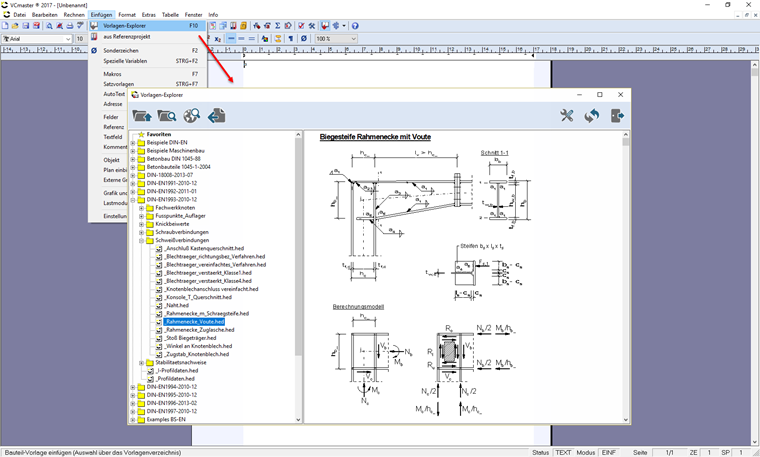
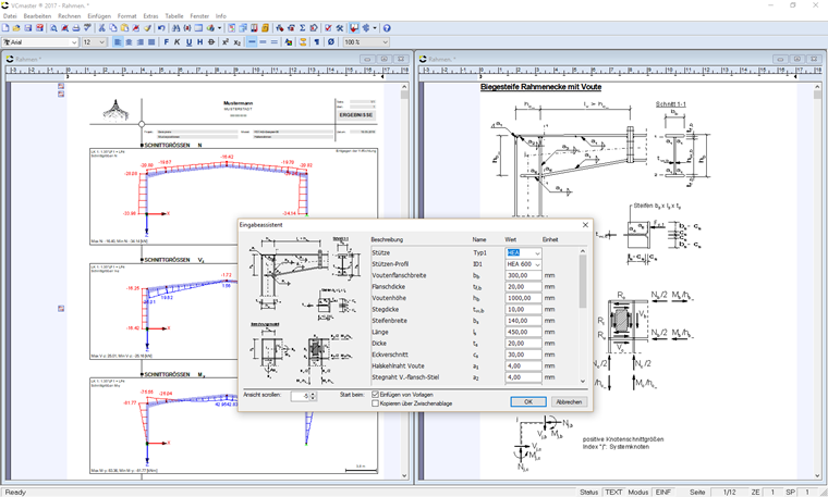
Über "Einfügen" → "Vorlagen-Explorer" wählt man die hinterlegte Vorlage aus und übergibt diese anschließend an VCmaster.

Es öffnet sich ein Dialog, in welchem alle Eingabedaten abgefragt werden.

Die Funktion "Dokument überprüfen" ermöglicht es Ihnen, nach nicht erfüllten Nachweisen zu suchen.

Sollte ein Nachweis nicht erfüllt sein oder müssen Eingaben geändert werden, kann dies nachträglich angepasst werden.

Alle Vorlagen können beliebig erweitert, kombiniert und an individuelle Anforderungen angepasst werden.

Selbst erstellte Vorlagen werden schnell und einfach über "Datei" → "Vorlagenverwaltung" ergänzt.

VCmaster ermöglicht Ihnen so ein reibungsloses und schnelles Zusammenstellen und Dokumentieren verschiedenster Daten.


Autor

Frau Matula kümmert sich im Kundensupport um die Anliegen unserer Anwender.

Links
Downloads


;