1532x
001528
2018-07-18

Using Templates in VCmaster

An interface can be used to export the RFEM/RSTAB printout report to VCmaster and continue editing there. VCmaster is a word processing program for engineers.

The output of structural analysis and CAD programs, specialized information, standards, and manufacturers' specifications can be easily exported, arranged, managed, and reused with VCmaster.

Building on the Export to VCmaster, where the procedure of exporting the printout report from RFEM/RSTAB to VCmaster has already been explained, more functions of VCmaster will be shown in the following text.

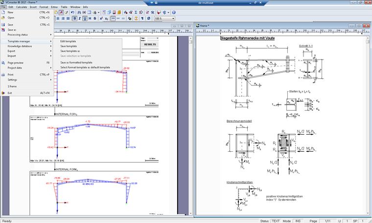
VCmaster contains numerous templates for calculations. They offer solutions for details and individual designs in the fields of timber, concrete, composite structures, foundation engineering, and masonry, as well as mechanical and plant engineering. It is possible, for example, to add detail checks (for example, connections) to the RFEM/RSTAB calculations.

The saved template is selected and then exported to VCmaster via "Insert" → "Template Explorer".

A dialog opens where all input data are requested.

Unfulfilled designs can be searched for using the "Check document" function.

If a design is unfulfilled or if entries have to be changed, it can be adapted later.

All templates can be extended, combined, and adapted to individual requirements.

User-defined templates can be quickly and easily added via “File” → “Template Management".

It is thus possible to create and document different data smoothly and rapidly with VCmaster.


Author

Ms. Matula provides technical support for our customers.

Links
Downloads


;