1532x
001528
2018-07-18

在 VCmaster 中模板的应用

RFEM/RSTAB 的打印输出报告在接口的帮助下导出到程序 VCmaster 中,并在那里继续加工处理。 VCmaster 是工程师们常用的文本处理程序。

结构分析程序和 CAD 程序的输出、专业信息、标准以及制造商说明都可以通过 VCmaster 轻松导出,管理以及重复使用。

在导出到 VCmaster中,已经解释了打印输出报告从 RFEM/RSTAB 导出到 VCmaster 的过程,下面列出了 VCmaster 的其它功能。

VCmaster 包含许多用于计算的模板。 这些为了钢结构、木结构、混凝土结构、组合结构、基础以及砌体结构、机械和设备工程领域等等的细节和单个验算提供了解决方案。 例如:RFEM /RSTAB 的计算可以补充详细验算(比如连接)。

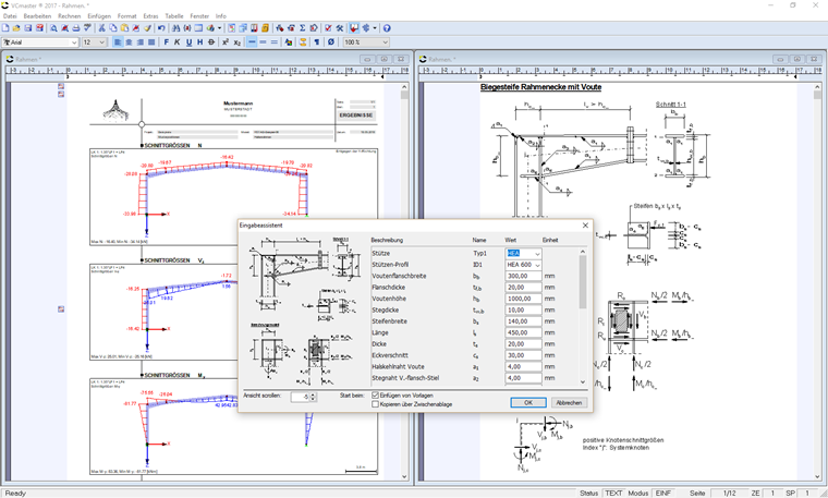
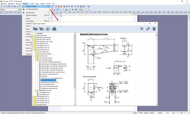
通过“插入” → “模板浏览器" 选择保存的模板,然后将其导入到 VCmaster。

打开一个对话框,在其中查询所有的输入数据。

“检查文档”的功能可以搜索不满足的验算。

如果验算没有满足或者必须更改输入数据,则可以稍后进行调整。

所有模板都可以任意扩展、组合并适应各种要求。

用户自定义的模板可以快速并直接的通过点击"文件" → 模板管理器 进行添加并保存。

VCmaster 可以顺畅、快速地整理和记录各种数据。


作者

Matula女士在客户支持部门负责处理我们用户的需求。

链接
下载


;