1532x
001528
2018-07-18

Korzystanie z szablonów w VCmaster

Za pomocą interfejsu można wyeksportować protokół wydruku z programu RFEM/RSTAB do VCmaster i tam kontynuować edycję. VCmaster to edytor tekstu dla inżynierów.

Dane wyjściowe programów do analizy statyczno-wytrzymałościowej i programów CAD, specjalistyczne informacje, normy i specyfikacje producentów można łatwo eksportować, porządkować, zarządzać i wykorzystywać ponownie w VCmaster.

Anknüpfend an den Export zu VCmaster, wo bereits die Vorgehensweise des Ausdruckprotokoll-Exports von RFEM/RSTAB zu VCmaster erläutert wurde, sollen nachfolgend weitere Funktionen von VCmaster aufgeführt werden.

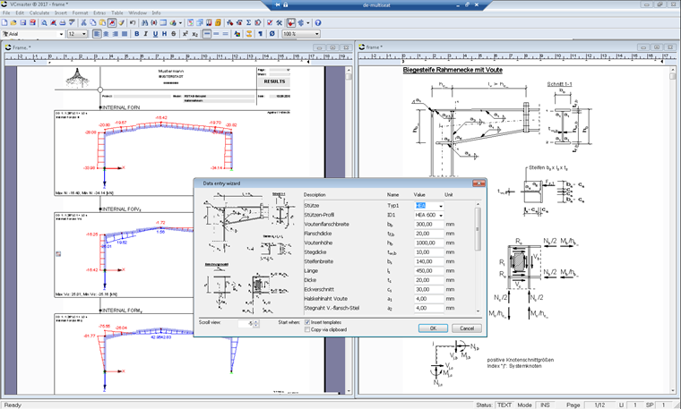
VCmaster enthält zahlreiche rechenfähige Vorlagen. Diese bieten Lösungen für Details und Einzelnachweise in den Bereichen Stahl-, Holz-, Massiv-, Verbund-, Grund- und Mauerwerksbau sowie im Maschinen- und Anlagenbau. So können beispielsweise RFEM-/RSTAB-Berechnungen um Detailnachweise (zum Beispiel Verbindungen) ergänzt werden.

Über "Einfügen" → "Vorlagen-Explorer" wählt man die hinterlegte Vorlage aus und übergibt diese anschließend an VCmaster.

Es öffnet sich ein Dialog, in welchem alle Eingabedaten abgefragt werden.

Die Funktion "Dokument überprüfen" ermöglicht es Ihnen, nach nicht erfüllten Nachweisen zu suchen.

Sollte ein Nachweis nicht erfüllt sein oder müssen Eingaben geändert werden, kann dies nachträglich angepasst werden.

Alle Vorlagen können beliebig erweitert, kombiniert und an individuelle Anforderungen angepasst werden.

Szablony zdefiniowane przez użytkownika można szybko i łatwo dodać poprzez “Plik” → “Zarządzanie szablonami".

VCmaster ermöglicht Ihnen so ein reibungsloses und schnelles Zusammenstellen und Dokumentieren verschiedenster Daten.


Autor

Pani Matula zajmuje się wsparciem klienta i troszczy się o sprawy naszych użytkowników.

Odnośniki
Pobrane


;