1532x
001528
18.7.2018

Používání předloh v programu VCmaster

Přes příslušné rozhraní můžeme tiskové protokoly vytvořené v programech RFEM a RSTAB převádět do programu VCmaster k dalšímu zpracování. VCmaster je textový procesor pro stavební inženýry.

Program VCmaster umožňuje velice snadno předávat, sestavovat, upravovat a dále zpracovávat výstupy ze statických programů a CAD aplikací, odborné informace, normy i údaje výrobců.

V našem příspěvku navážeme na článek Export do programu VCmaster, kde jsme již popsali postup při exportu výstupního protokolu z programu RFEM/RSTAB do programu VCmaster, a představíme další funkce programu VCmaster.

VCmaster obsahuje mnoho početních předloh. Nabízejí řešení pro detaily a jednotlivá posouzení v oblasti ocelových, dřevěných, železobetonových, spřažených konstrukcí, základových a zděných staveb a také strojních a průmyslových konstrukcí. Výpočty z programů RFEM/RSTAB tak můžeme například doplnit o detailní posouzení (například spojů).

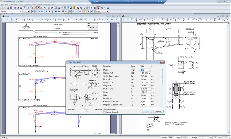
Po zvolení funkce v nabídce „Vložit“ → „Průzkumník předloh“ můžeme vybrat některou z uložených předloh a následně ji převést do programu VCmaster.

Otevře se dialog pro stanovení veškerých vstupních údajů.

Funkce „Kontrola dokumentu“ vám slouží k vyhledání posouzení s nesplněnými kritérii.

Pokud nebylo některé posouzení splněno nebo je třeba změnit vstupní údaje, lze provést dodatečné úpravy.

Veškeré předlohy lze libovolně rozšiřovat, kombinovat a individuálně upravovat.

Předlohy, které jako uživatelé sami vytvoříme, můžeme přidávat rychle a snadno pomocí funkce „Soubor“ → „Správa předloh“.

VCmaster vám tak umožňuje rychle a hladce sestavit a zdokumentovat nejrůznější data.


Autor

Ing. Matula vyřizuje v rámci zákaznické podpory podněty od uživatelů programů společnosti Dlubal Software.

Odkazy
Stahování


;