El viento es, naturalmente, una variable de acción en el tiempo en una estructura ubicada al aire libre. Para combinar esta carga con otras acciones (carga útil, nieve, etc.) en situaciones de proyecto definidas según la norma de combinación DIN EN 1990, la acción del viento se clasifica como acción variable, libre. Los cambios en los coeficientes aerodinámicos debido a otras acciones (nieve, tráfico o hielo) y debido a modificaciones de la estructura se deben considerar durante la construcción. Sin embargo, se supone que las ventanas y puertas están cerradas en caso de cargas de viento. Las ventanas y puertas que están inevitablemente abiertas deben considerarse situaciones de diseño accidentales.
La carga de viento dinámica se tiene que representar de forma simplificada como presión de viento o fuerza de viento equivalente a la acción máxima del viento turbulento. El viento actúa en las superficies externas en caso de estructuras cerradas y adicionalmente en las superficies internas en caso de estructuras permeables o abiertas. La acción se debe aplicar perpendicular a las superficies consideradas. En el caso de grandes superficies bajo la circulación de viento, se debe considerar un componente de fricción adicionalmente, paralelo al área de la superficie.
La norma de viento DIN EN 1991-1-4 con el anexo nacional de Alemania especifica la carga de viento como valor característico. Este valor se determina mediante la velocidad básica de referencia del viento con una probabilidad anual de valor con un exceso del 2% y un periodo medio de retorno de 50 años.
La carga de viento resultante en el caso de edificios suficientemente rígidos no susceptibles a vibraciones se puede describir como una fuerza estática equivalente que depende de la velocidad máxima. Por el contrario, para edificios susceptibles a vibraciones, la velocidad máxima se modifica adicionalmente con un factor estructural para determinar la carga estática equivalente [1] , [2].
En términos simples, las estructuras no se consideran susceptibles de vibraciones si la deformación bajo la carga de viento causada por la resonancia del viento racheado no aumenta en más de un 10%. Este criterio se aplica a edificios típicos con una altura de hasta 25 m que no son susceptibles a vibraciones. En todos los demás casos, se puede utilizar el siguiente criterio de clasificación [3] :
Donde
xS = es el desplazamiento de la cabeza en m debido al peso propio aplicado en la dirección del viento
h = altura del edificio en m; href = 25 m
b = ancho del edificio en perpendicular con la dirección del viento en m
δ = decremento logarítmico del amortiguamiento según DIN EN 1991-1-4, Anexo F
| Tipo de estructura | Amortiguación de edificios δmín . |
|---|---|
| Estructura de hormigón armado | 0,1 |
| Estructura de acero | 0,05 |
| Estructura mixta (acero y hormigón) | 0,08 |
Presión correspondiente a la velocidad de pico dependiente de la altura
La carga de viento en un edificio no susceptible a vibraciones depende de la presión de velocidad máxima qp. Este valor resulta de la velocidad del viento en una ráfaga de viento con una longitud de dos a cuatro segundos al tener en cuenta las condiciones del terreno circundante. Para determinar la carga en una ubicación, el Anexo Nacional de Alemania contiene un mapa de zonas de viento con los valores básicos correspondientes de las velocidades básicas del viento vb, 0, los valores básicos de las presiones de velocidad del viento básicas qb, 0 y una especificación de varios tipos de terreno (categorías I - IV) [1] , [2] , [3].
Si aumenta la zona de carga de viento, el valor fundamental de la velocidad básica del viento también se incrementa.
La categoría del terreno aumenta con la irregularidad del terreno.
| terreno | Descripción del trabajo |
|---|---|
| Categoría del terreno I | Mar abierto; lagos con al menos 5 km de área abierta en la dirección del viento; Terreno liso y plano sin obstáculos |
| Categoría del terreno II | Sitio con setos, granjas individuales, casas o árboles (por ejemplo, área agrícola) |
| Categoría del terreno III | Zonas residenciales, industriales o comerciales; bosques |
| Categoría del terreno IV | Zonas urbanas donde al menos el 15% del área está cubierta por edificios cuya altura media supera los 15 m |
| Perfil de costa mixto | Región de transición entre las categorías de terreno I y II |
| Perfil de interior mixto | Región de transición entre las categorías de terreno II y III |
La presión de velocidad pico vb, 0 se puede determinar definiendo el valor básico de la velocidad básica del viento qp y el tipo de terreno.
| Presión de velocidad pico qp en kN/m² [3] | Criterio 1 Tabla NA-B.1 | Criterio 2 NA.B.3.3 | Criterio 3 NA.B.3.2 | |||||||
|---|---|---|---|---|---|---|---|---|---|---|
| Influencia del nivel del mar NNmod | A menos de 800 m sobre el nivel del mar | 1,0 | ||||||||
| Entre 800 my 1.100 m sobre el nivel del mar | 0,2 + Hs/1000 | |||||||||
| Más de 1.100 m sobre el nivel del mar | Consideraciones especiales necesarias | |||||||||
| Zona de carga de viento | 1 | 2 | 3 | 4 | 1 | 2 | 3 | 4 | ||
| Velocidad básica fundamental del viento vb,0 en m/s | 22.5 | 25,0 | 27.5 | 30,0 | - | - | - | - | ||
| Factor direccional cdir | 1,0 | - | - | - | - | |||||
| factor estacional cseason | 1,0 | - | - | - | - | |||||
| Presión de la velocidad básica del viento qb en kN/m² | 0,32 | 0,39 | 0,47 | 0,56 | - | - | - | - | ||
| Categoría de terreno | Altura de la estructura | qp en kN/m² | ||||||||
| qp (z) en kN/m² | ||||||||||
| Categoría del terreno I | Hasta 2 m | 1.90 ⋅ qb ⋅ NNmod - | - | - | - | - | ||||
| 2 m hasta 300 m | 2.60 ⋅ qb ⋅ (z/10)0.19 ⋅ NNmod | |||||||||
| Categoría del terreno II | Hasta 4 m | 1,70 ⋅ qb ⋅ NNmod - | - | - | - | - | ||||
| 4 m hasta 300 m | 2.10 ⋅ qb ⋅ (z/10)0.24 ⋅ NNmod | |||||||||
| Categoría del terreno III | Hasta 8 m | 1,50 ⋅ qb ⋅ NNmod - | - | - | - | - | ||||
| 8 m hasta 300 m | 1.60 ⋅ qb ⋅ (z/10)0.31 ⋅ NNmod | |||||||||
| Categoría del terreno IV | Hasta 16 m | 1,30 ⋅ qb ⋅ NNmod - | - | - | - | - | ||||
| 16 m hasta 300 m | 1.10 ⋅ qb ⋅ (z/10)0.40 ⋅ NNmod | |||||||||
| Islas del Mar del Norte I | Hasta 2 m | 1.10 ⋅ NNmod | - | - | - | - | ||||
| 2 m hasta 300 m | 1,50 ⋅ (z/10)0,19 ⋅ NNmod | |||||||||
| Zonas costeras e islas del mar Báltico I - II | Hasta 4 m | 1.80 ⋅ qb ⋅ NNmod | - | - | - | - | ||||
| 4 m hasta 50 m | 2.30 ⋅ qb ⋅ (z/10)0.27 ⋅ NNmod | |||||||||
| 50 m hasta 300 m | 2.60 ⋅ qb ⋅ (z/10)0.19 ⋅ NNmod | |||||||||
| Zonas de interior II - III | Hasta 7 m | 1,50 ⋅ qb ⋅ NNmod | - | - | - | - | ||||
| 7 m hasta 50 m | 1.70 ⋅ qb ⋅ (z/10)0.37 ⋅ NNmod | |||||||||
| 50 m hasta 300 m | 2.10 ⋅ qb ⋅ (z/10)0.24 ⋅ NNmod | |||||||||
| País sin litoral marítimo | Hasta 10 m | - | - | 0.50 ⋅ NNmod | 0,65 ⋅ NNmod | 0,80 ⋅ NNmod | 0,95 ⋅ NNmod | |||
| 10 m hasta 18 m | 0,65 ⋅ NNmod | 0,80 ⋅ NNmod | 0,95 ⋅ NNmod | 1,15 ⋅ NNmod | ||||||
| 18 m hasta 25 m | 0,75 ⋅ NNmod | 0,90 ⋅ NNmod | 1.10 ⋅ NNmod | 1,30 ⋅ NNmod | ||||||
| Mar Báltico | Hasta 10 m | - | - | - | 0,85 ⋅ NNmod | 1.05 ⋅ NNmod | - | |||
| 10 m hasta 18 m | - | 1.00 ⋅ NNmod | 1.20 ⋅ NNmod | - | ||||||
| 18 m hasta 25 m | - | 1.10 ⋅ NNmod | 1,30 ⋅ NNmod | - | ||||||
| Costa del Mar del Norte y Báltico e Islas del Mar Báltico | Hasta 10 m | - | - | - | - | - | 1.25 ⋅ NNmod | |||
| 10 m hasta 18 m | - | - | - | 1.40 ⋅ NNmod | ||||||
| 18 m hasta 25 m | - | - | - | 1.55 ⋅ NNmod | ||||||
| Islas del mar del Norte | Hasta 10 m | - | - | - | - | - | 1.40 ⋅ NNmod | |||
| 10 m hasta 18 m | - | - | - | Según criterio 2 | ||||||
| 18 m hasta 25 m | - | - | - | Según criterio 2 | ||||||
Determinar la presión correspondiente a la velocidad básica local de referencia del viento con el servicio en línea de Dlubal
El servicio en línea de Dlubal Snow Load Zones, Wind Zones y Earthquake Zones combina las especificaciones estándar con tecnologías digitales. El servicio coloca el mapa de la zona respectiva sobre el mapa de Google Maps, dependiendo del tipo de carga seleccionada (nieve, viento, terremoto) y el estándar específico del país. Introduzca la ubicación, las coordenadas geográficas o las condiciones locales en la función de búsqueda para obtener los datos relevantes. Luego, la herramienta determina la carga característica o la aceleración en este lugar por medio de la altura exacta sobre el nivel del mar y los datos de la zona introducidos. Si es imposible definir la ubicación por medio de una dirección específica, puede hacer zoom en el mapa y seleccionar la ubicación correcta. Cuando seleccione la ubicación correcta en el mapa, el cálculo se va a adaptar a la nueva altitud y se mostrarán las cargas actualizadas.
El servicio en línea está disponible en la página web de Dlubal en "Soluciones → Servicios en línea".
Al definir los parámetros...
1er Tipo de carga = viento
2. Norma = EN 1991-1-4
3. Anejo Nacional = Alemania | DIN EN 1991-1-4
4. Dirección = Zellweg 2, Tiefenbach
... se obtienen los siguientes resultados para la ubicación seleccionada:
5. zona de viento
6 Información adicional, si se aplica
El 7º velocidad básica fundamental del viento vb, 0
8. presión básica de la velocidad del viento qb
Si selecciona una ubicación sobre 1 100 m, el servicio en línea se muestra en el punto 6 "Sin carga de viento definida por encima de 1 100 m | NCI A.2 (3)". No se puede determinar la carga según la regla existente y se requieren consideraciones especiales para esta ubicación.
presión del viento en estructuras
La presión del viento que actúa sobre una superficie es el producto de la presión de velocidad máxima determinante multiplicado por el coeficiente aerodinámico [1] , [2].
Para superficies externas:
we = qp (ze ) ⋅ cpe
Donde
qp (ze ) = presión de velocidad máxima
ze = altura de referencia para la presión externa
cpe = coeficiente aerodinámico para la presión externa
Para superficies internas:
wi = qp (zi ) ⋅ cpi
Donde
qp (zi ) = presión de velocidad máxima
zi = altura de referencia para la presión interna
cpi = coeficiente aerodinámico para la presión interna
La carga resultante de la presión externa e interna es la carga de presión neta de una superficie La presión en una superficie se considera como positiva y la presión (succión) lejos de la superficie como negativa.
Presión neta:
wnet = we + wi
Coeficientes aerodinámicos seleccionados
Las cargas de presión y succión se aplican en la superficie de una estructura que está en el flujo del viento. El tamaño de la acción en las superficies externas depende de su área de aplicación de la carga. Un área de aplicación de carga es la superficie que absorbe activamente la carga de viento bidimensional y la pasa a la estructura subyacente de manera concentrada. Para este tipo de análisis, la norma contiene coeficientes de presión externa aerodinámica que dependen de la superficie de introducción de la carga [1] , [2].
| Área de aplicación de carga A [3] | Areodinámico Coeficiente de presión externa cpe | Descripción del trabajo |
|---|---|---|
| <1 m² | cpe,1 | Diseño de pequeños componentes estructurales y sus anclajes (por ejemplo, cerramientos o elementos de cubierta) |
| 1 m² a 10 m² | cpe, 1 - (cpe, 1 - cpe, 10 ) ⋅ log10 (A) | |
| > 10 m² | cpe, 10 | Cálculo de la estructura entera |
muros verticales de edificios de planta rectangular
La velocidad del viento aumenta, naturalmente, de forma no lineal con la altura desde el suelo. La distribución de presión de velocidad pico resultante se puede aplicar de una manera simplificada y escalada por la altura para la superficie del edificio a barlovento (área de barlovento D), dependiendo de la relación entre la altura del edificio h y el ancho del edificio b [1] , [2].
Las cargas de succión del muro de las superficies restantes del edificio a sotavento paralelas al viento (áreas A, B, C y E) dependen de la aerodinámica del edificio. Los coeficientes aerodinámicos finales para las superficies externas se pueden determinar y aplicar a escala, dependiendo de la relación entre la altura del edificio h y la profundidad del edificio d.
| Zone | I | B | C | D | E | |||||
|---|---|---|---|---|---|---|---|---|---|---|
| h/d | cpe, 10 | cpe,1 | cpe, 10 | cpe,1 | cpe, 10 | cpe,1 | cpe, 10 | cpe,1 | cpe, 10 | cpe,1 |
| ≥5 | -1,4 | -1,7 | -0,8 | -1,1 | -0,5 | -0,7 | +0,8 | +1,0 | -0,5 | -0,7 |
| 1 | -1,2 | -1,4 | -0,8 | -1,1 | -0,5 | +0,8 | +1,0 | -0,5 | ||
| ≤0,25 | -1,2 | -1,4 | -0,8 | -1,1 | -0,5 | +0,8 | +1,0 | -0,3 | -0,5 | |
| Para edificios separados que se encuentran en áreas abiertas, se pueden producir mayores fuerzas de succión en el área de succión. Se permite la interpolación lineal de los valores intermedios. Para edificios con h/d> 5, la carga de viento total se debe determinar mediante los valores de fuerza según DIN EN 1991-1-4 más el anexo nacional de Alemania, capítulos 7.6 al 7.8 y 7.9.2. | ||||||||||
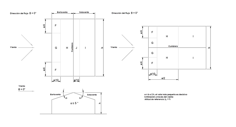
Cubierta a un agua
Similar a las dimensiones del edificio, la forma del techo también tiene un efecto aerodinámico en las superficies externas del techo. Un techo con una inclinación superior a 5 ° con aleros altos y bajos distintivos se llama techo a un agua. Debido a la aerodinámica, las cargas de viento actúan sobre las superficies de aplicación de las cargas, dependiendo de la inclinación del techo [1] , [2].
| Zone | b | h | I | |||||||
|---|---|---|---|---|---|---|---|---|---|---|
| Dirección del flujo θ = 0° 2) | ||||||||||
| Ángulo de inclinación α1) | cpe, 10 | cpe,1 | cpe, 10 | cpe,1 | cpe, 10 | cpe,1 | cpe, 10 | cpe,1 | ||
| 5° | -1,7 | -2,5 | -1,2 | -2,0 | -0,6 | -1,2 | - | - | ||
| +0,0 | +0,0 | +0,0 | ||||||||
| 15° | -0,9 | -2,0 | -0,8 | -1,5 | -0,3 | - | - | |||
| +0,2 | +0,2 | +0,2 | ||||||||
| 30° | -0,5 | -1,5 | -0,5 | -1,5 | -0,2 | - | - | |||
| +0,7 | +0,7 | +0,4 | ||||||||
| 45° | -0,0 | -0,0 | -0,0 | - | - | |||||
| +0,7 | +0,7 | +0,6 | ||||||||
| 60° | +0,7 | +0,7 | +0,7 | - | - | |||||
| 75° | +0,8 | +0,8 | +0,8 | - | - | |||||
| Dirección del flujo θ = 180° | ||||||||||
| 5° | -2,3 | -2,5 | -1,3 | -2,0 | -0,8 | -1,2 | - | - | ||
| 15° | -2,5 | -2,8 | -1,3 | -2,0 | -0,9 | -1,2 | - | - | ||
| 30° | -1,1 | -2,3 | -0,8 | -1,5 | -0,8 | - | - | |||
| 45° | -0,6 | -1,3 | -0,5 | -0,7 | - | - | ||||
| 60° | -0,5 | -1,0 | -0,5 | -0,5 | - | - | ||||
| 75° | -0,5 | -1,0 | -0,5 | -0,5 | - | - | ||||
| Dirección del flujo θ = 90° | ||||||||||
| falto | Fbajo | |||||||||
| cpe, 10 | cpe,1 | cpe, 10 | cpe,1 | |||||||
| 5° | -2,1 | -2,6 | -2,1 | -2,4 | -1,8 | -2,0 | -0,6 | -1,2 | -0,5 | |
| 15° | -2,4 | -2,9 | -1,6 | -2,4 | -1,9 | -2,5 | -0,8 | -1,2 | -0,7 | -1,2 |
| 30° | -2,1 | -2,9 | -1,3 | -2,0 | -1,5 | -2,0 | -1,0 | -1,3 | -0,8 | -1,2 |
| 45° | -1,5 | -2,4 | -1,3 | -2,0 | -1,4 | -2,0 | -1,0 | -1,3 | -0,9 | -1,2 |
| 60° | -1,2 | -2,0 | -1,2 | -2,0 | -1,2 | -2,0 | -1,0 | -1,3 | -0,7 | -1,2 |
| 75° | -1,2 | -2,0 | -1,2 | -2,0 | -1,2 | -2,0 | -1,0 | -1,3 | -0,5 | |
| 1) Se permite la interpolación lineal de los valores intermedios, siempre que no cambie el signo. Se da el valor de 0.0 para la interpolación. 2) Para la dirección del flujo θ = 0 ° y los ángulos de inclinación α = + 5 ° a + 45 °, la presión cambia muy rápidamente entre valores positivos y negativos. Por lo tanto, se da el coeficiente de presión externa negativo así como positivo para este área. Para tales cubiertas, ambos casos (presión y succión) se deben considerar por separado considerando primero, solo los valores positivos (presión), y segundo, solo los valores negativos (succión). | ||||||||||
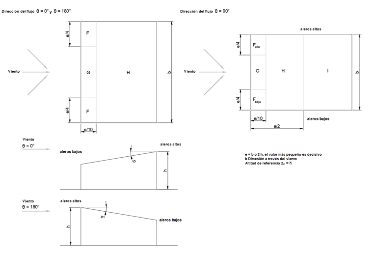
Cubierta a dos aguas
Una forma de cubierta, que consiste en dos superficies de cubierta inclinadas opuestamente, que se cruzan en el borde horizontal superior en la cumbrera de la cubierta, se conoce como cubierta a dos aguas. Esta geometría tiene sus propios efectos aerodinámicos en las áreas de aplicación de carga [1] , [2].
| Zone | b | h | I | J | |||||||
|---|---|---|---|---|---|---|---|---|---|---|---|
| Dirección del flujo θ = 0° 2) | |||||||||||
| Ángulo de inclinación α1) | cpe, 10 | cpe,1 | cpe, 10 | cpe,1 | cpe, 10 | cpe,1 | cpe, 10 | cpe,1 | cpe, 10 | cpe,1 | |
| 5° | -1,7 | -2,5 | -1,2 | -2,0 | -0,6 | -1,2 | -0,6 | +0,2 | |||
| +0,0 | +0,0 | +0,0 | -0,6 | ||||||||
| 15° | -0,9 | -2,0 | -0,8 | -1,5 | -0,3 | -0,4 | -1,0 | -1,5 | |||
| +0,2 | +0,2 | +0,2 | +0,0 | +0,0 | +0,0 | ||||||
| 30° | -0,5 | -1,5 | -0,5 | -1,5 | -0,2 | -0,4 | -0,5 | ||||
| +0,7 | +0,7 | +0,4 | +0,0 | +0,0 | |||||||
| 45° | -0,0 | -0,0 | -0,0 | -0,2 | -0,3 | ||||||
| +0,7 | +0,7 | +0,6 | +0,0 | +0,0 | |||||||
| 60° | +0,7 | +0,7 | +0,7 | -0,2 | -0,3 | ||||||
| 75° | +0,8 | +0,8 | +0,8 | -0,2 | -0,3 | ||||||
| Dirección del flujo θ = 90° | |||||||||||
| 5° | -1,6 | -2,2 | -1,3 | -2,0 | -0,7 | -1,2 | -0,6 | - | - | ||
| 15° | -1,3 | -2,0 | -1,3 | -2,0 | -0,6 | -1,2 | -0,5 | - | - | ||
| 30° | -1,1 | -1,5 | -1,4 | -2,0 | -0,8 | -1,2 | -0,5 | - | - | ||
| 45° | -1,1 | -1,5 | -1,4 | -2,0 | -0,9 | -1,2 | -0,5 | - | - | ||
| 60° | -1,1 | -1,5 | -1,2 | -2,0 | -0,8 | -1,0 | -0,5 | - | - | ||
| 75° | -1,1 | -1,5 | -1,2 | -2,0 | -0,8 | -1,0 | -0,5 | - | - | ||
| 1) Para la dirección del flujo θ = 0 ° y los ángulos de inclinación α = -5 ° a + 45 °, la presión cambia muy rápidamente entre valores positivos y negativos. Por lo tanto, se indica el valor positivo así como el negativo. Para tales cubiertas, se deben considerar cuatro casos, donde el valor más pequeño o más grande para las áreas F, G y H se combina con los valores más pequeños o más grandes para las áreas I y J. Los valores positivos y negativos no se pueden mezclar en la superficie de una cubierta. 2) Para inclinaciones de cubierta entre los valores indicados, se permite la interpolación lineal, siempre que no varíe el signo de los coeficientes de presión. Para inclinaciones entre α = +5° y -5°, los valores para las cubiertas planas se deben usar según DIN EN 1991-1-4 más el capítulo 7.2.3. Se da el valor de cero para la interpolación. | |||||||||||