864x
004945
2021-02-16

Различное отображение несовершенств и возможности настройки

Почему мои несовершенства отображаются в графике по-разному и можно ли это как-то настроить?


Ответ:

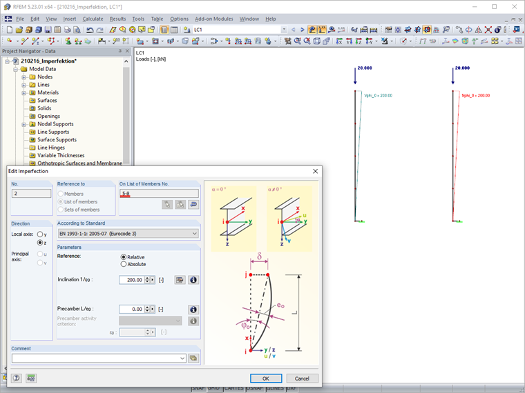
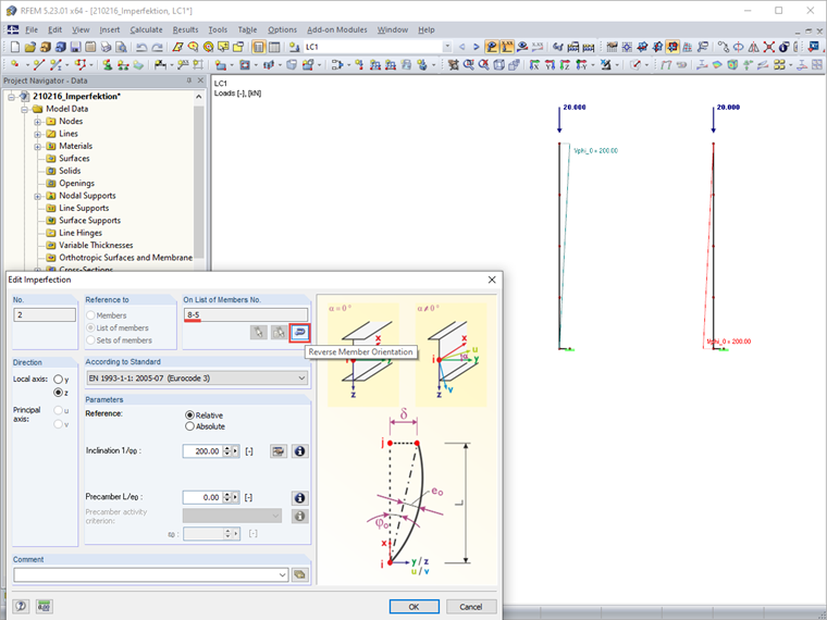
Как уже было описано в FAQ 4386, при отображении в графике, несовершенства всегда ориентируются на опору.

Но если к опоре не присоединен ни один стержень, тогда графическое изображение может отличаться. Например, при работе со списками стержней можно в диалоговом окне « Изменить несовершенство » использовать кнопку « Перевернуть ориентацию стержней» и тем самым проверить, является ли графическое изображение одинаковым.

Но поскольку графическое несовершенство - это фактически лишь эквивалентная нагрузка, имеет его отображение в данном случае лишь визуальную функцию.


Автор

Штефан оказывает поддержку в Customer Support по техническим вопросам. Даже при более сложных темах он действует структурированно и обеспечивает понятные результаты.

Ссылки
Скачивания


;