864x
004945
2021-02-16

Different Display of Imperfections and Customization Options

Why are my imperfections displayed graphically in different ways, and can I adjust the display?


Answer:

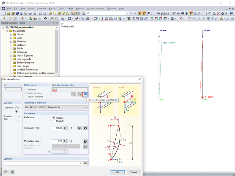
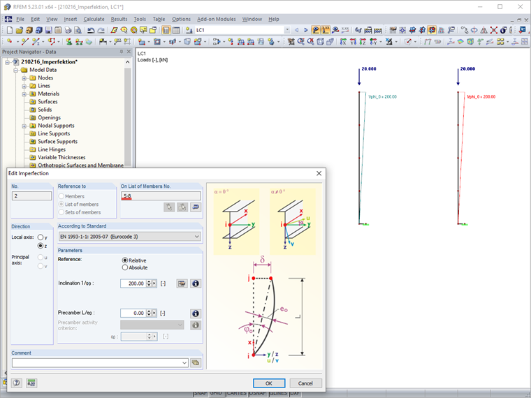
As described in FAQ 4386, the imperfections in the graphic are always aligned with a support.

If no member is connected to a support, the display may differ. For example, if you work with member lists, you can Edit Imperfection and Reverse Member Orientation in the corresponding dialog box, and check whether the graphical display is visually the same.

Since the graphical imperfection is in fact an equivalent load, the display is only of visual relevance in this case.


Author

Stefan provides support in Customer Support for technical inquiries. Even when dealing with more complex issues, he takes a structured approach and ensures that the results are easy to understand.

Links
Downloads


;