864x
004945
2021-02-16

Visualizzazione diversa delle imperfezioni e opzioni di personalizzazione

Perché le mie imperfezioni sono visualizzate graficamente in modi diversi e posso regolare la visualizzazione?


Risposta:

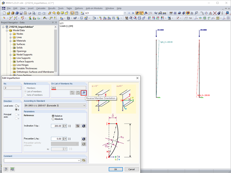
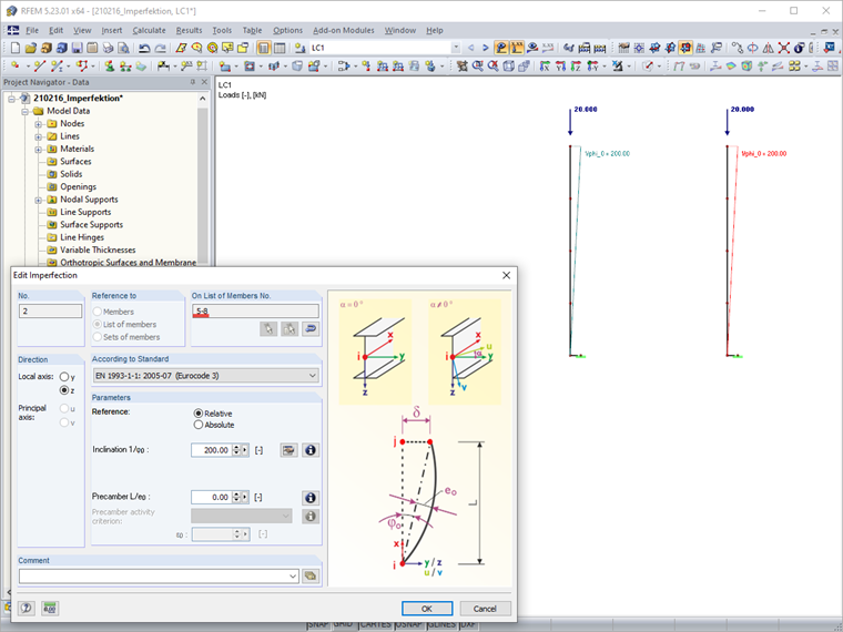
Come descritto nella FAQ 4386, le imperfezioni nel grafico sono sempre allineate con un vincolo esterno.

Wenn kein Stab mit einem Lager verbunden ist, so kann sich die Darstellung unterscheiden. Wenn Sie zum Beispiel mit Stablisten arbeiten, können Sie im Dialog Imperfektion bearbeiten die Staborientierung umkehren und prüfen, ob die grafische Darstellung dann visuell gleich angezeigt wird.

Da die grafische Imperfektion faktisch eine Ersatzlast ist, ist die Darstellung in diesem Fall lediglich von visueller Relevanz.


Autore

Stefan supporta il Customer Support nelle questioni tecniche. Anche in caso di temi più complessi procede in modo strutturato e garantisce risultati comprensibili.

Link
Download


;