864x
004945
2021-02-16

对缺陷的不同显示和自定义选项

为什么我的缺陷以不同的方式显示,我可以调整显示方式吗?


回复:

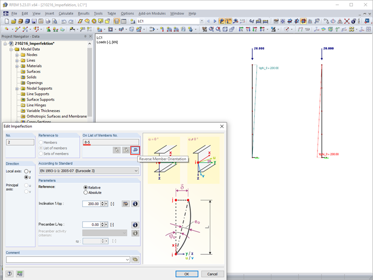
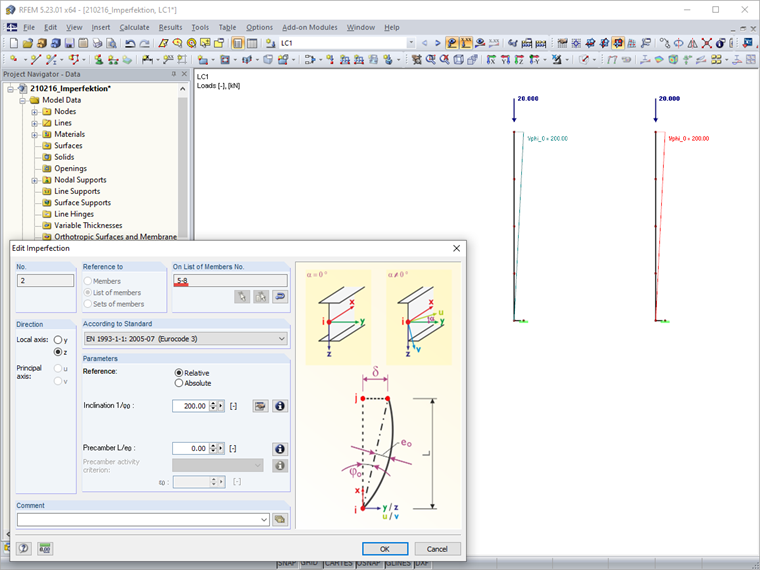
如FAQ 4386中所述,图形中的缺陷始终与支座对齐。

Wenn kein Stab mit einem Lager verbunden ist, so kann sich die Darstellung unterscheiden. Wenn Sie zum Beispiel mit Stablisten arbeiten, können Sie im Dialog Imperfektion bearbeiten die Staborientierung umkehren und prüfen, ob die grafische Darstellung dann visuell gleich angezeigt wird.

Da die grafische Imperfektion faktisch eine Ersatzlast ist, ist die Darstellung in diesem Fall lediglich von visueller Relevanz.


作者

Stefan 在客户支持中协助处理技术问题。即使面对较复杂的主题,他也会有条理地推进,并确保结果易于理解。

链接
下载


;