864x
004945
16-02-2021

Visualización diferente de imperfecciones y opciones de personalización

¿Por qué mis imperfecciones se muestran gráficamente de diferentes maneras y puedo ajustar la visualización?


Respuesta:

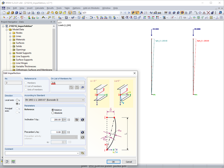
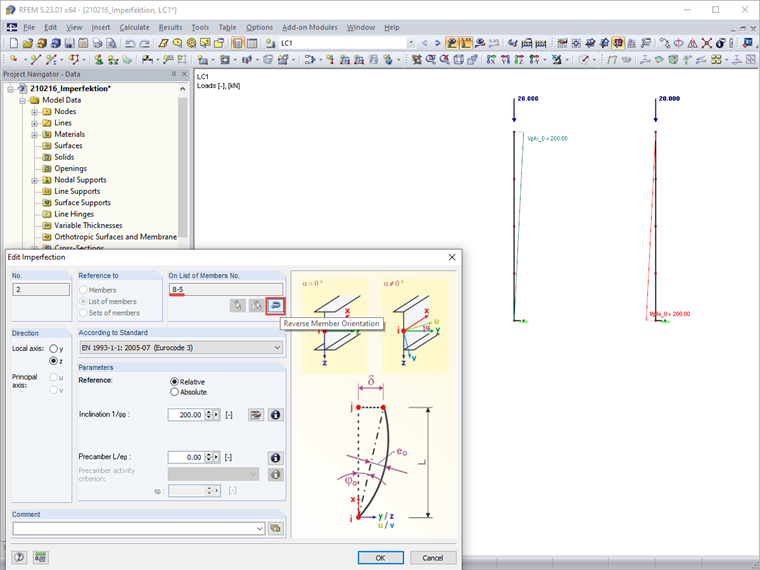
Como se describe en la FAQ 4386, las imperfecciones en el gráfico siempre están alineadas con un apoyo.

Wenn kein Stab mit einem Lager verbunden ist, so kann sich die Darstellung unterscheiden. Wenn Sie zum Beispiel mit Stablisten arbeiten, können Sie im Dialog Imperfektion bearbeiten die Staborientierung umkehren und prüfen, ob die grafische Darstellung dann visuell gleich angezeigt wird.

Dado que la imperfección gráfica es prácticamente una carga equivalente, la visualización solo tiene relevancia visual en este caso.


Autor

Stefan apoya en el Customer Support con cuestiones técnicas. Incluso en temas más complejos, procede de forma estructurada y garantiza resultados comprensibles.

Enlaces
Descargas


;