864x
004945
2021-02-16

Różne sposoby wyświetlania imperfekcji i opcje dostosowywania

Dlaczego moje imperfekcje są wyświetlane graficznie na różne sposoby i czy mogę dostosować wyświetlanie?


Odpowiedź:

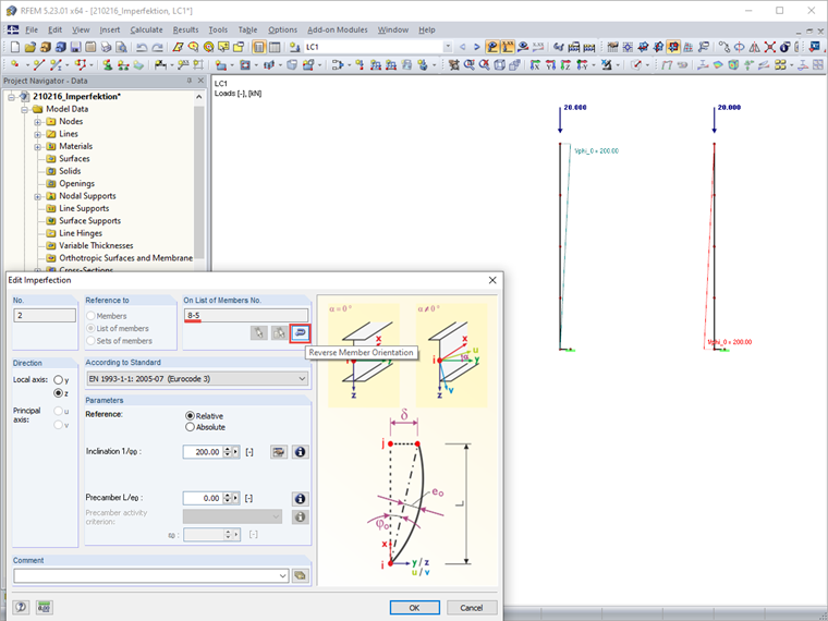
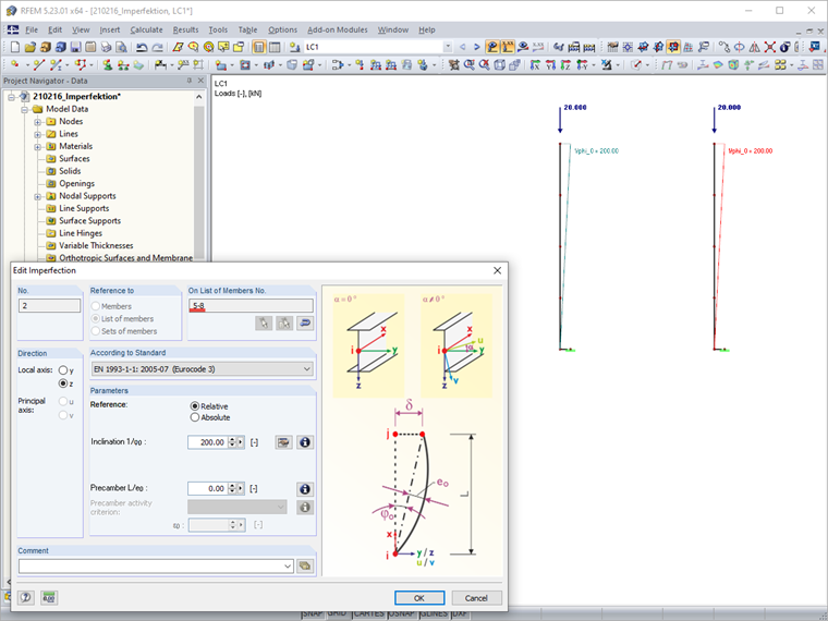
Jak opisano w FAQ 4386, imperfekcje w grafice są zawsze wyrównane z podporą.

Wenn kein Stab mit einem Lager verbunden ist, so kann sich die Darstellung unterscheiden. Wenn Sie zum Beispiel mit Stablisten arbeiten, können Sie im Dialog Imperfektion bearbeiten die Staborientierung umkehren und prüfen, ob die grafische Darstellung dann visuell gleich angezeigt wird.

Da die grafische Imperfektion faktisch eine Ersatzlast ist, ist die Darstellung in diesem Fall lediglich von visueller Relevanz.


Autor

Stefan wspiera dział Obsługi Klienta w kwestiach technicznych. Również w bardziej złożonych zagadnieniach postępuje w sposób uporządkowany i zapewnia zrozumiałe rezultaty.

Odnośniki
Pobrane


;