807x
004945
16.2.2021

Různé zobrazení imperfekcí a možnosti přizpůsobení

Proč se moje imperfekce graficky zobrazují odlišně a mohu upravit zobrazení?


Odpověď:

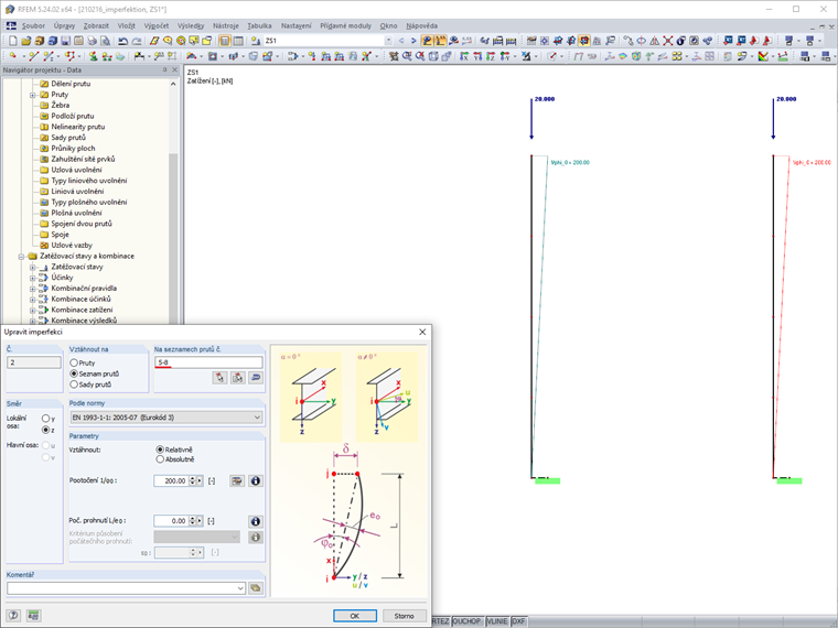
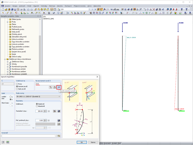
Jak již bylo popsáno v FAQ 4386, jsou imperfekce v grafice vždy orientovány na podporu.

Pokud není k podpoře připojen žádný prut, může se zobrazení lišit. Pokud například pracujete se seznamy prutů, můžete v příslušném dialogu Upravit imperfekci a Otočit orientaci prutu a zkontrolovat, zda je grafické zobrazení vizuálně stejné.

Protože je grafická imperfekce pouze náhradním zatížením, má zobrazení v tomto případě pouze vizuální význam.


Autor

Ing. Hoffmann poskytuje technickou podporu zákazníkům společnosti Dlubal Software a je zodpovědný za koordinaci veškerých odborných dotazů a činností.

Odkazy
Stahování


;