864x
004945
16.02.2021

Différents affichages des imperfections et options de personnalisation

Pourquoi mes imperfections sont-elles affichées graphiquement de différentes manières ? Comment ajuster l’affichage ?


Réponse:

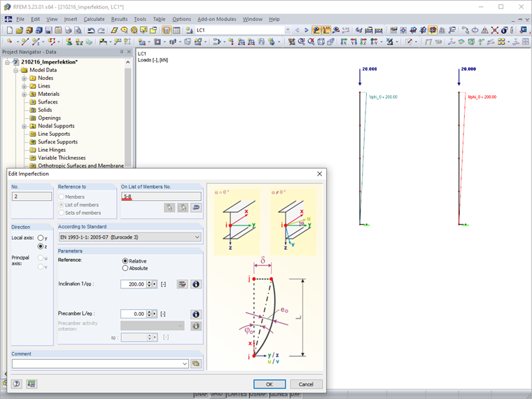
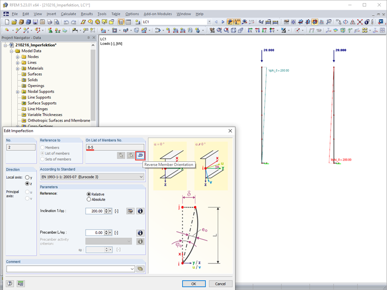
Comme décrit précédemment, les imperfections du graphique sont toujours alignées avec un appui.

Si aucune barre n'est connectée à un appui, l’affichage peut différer. Par exemple, si vous travaillez avec des listes de barres, vous pouvez « modifier l’imperfection » et « inverser l’orientation de barre » dans la boîte de dialogue correspondante et vérifier si l’affichage graphique est le même.

L’imperfection graphique représente quasiment une charge équivalente et dans ce cas, l’affichage n’a donc qu’un intérêt visuel.


Auteur

Stefan apporte son soutien au support client pour les questions techniques. Même pour des sujets plus complexes, il procède de manière structurée et veille à obtenir des résultats compréhensibles.

Liens
Téléchargements


;