864x
004945
2021-02-16

Representação diferente de imperfeições e opções de adaptação

Porque é que as minhas imperfeições são representadas graficamente de forma diferente e posso ajustar a visualização?


Resposta:

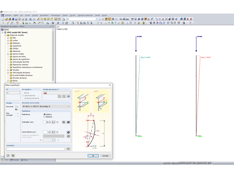
Conforme já foi descrito na FAQ 4386, as imperfeições no gráfico estão sempre alinhadas com um apoio.

Se não houver nenhuma barra ligada a um apoio, a representação pode ser diferente. Por exemplo, se trabalhar com listas de barras, pode alterar a Orientação da barra invertida na caixa de diálogo Editar imperfeição e verificar, em seguida, se o gráfico é apresentado visualmente de forma idêntico.

Uma vez que a imperfeição gráfica, na prática, é uma carga equivalente, a representação é apenas visualmente relevante neste caso.


Autor

Stefan apoia o Customer Support em questões técnicas. Mesmo em temas mais complexos, ele procede de forma estruturada e garante resultados compreensíveis.

Ligações
Downloads


;