385x
005625
2024-11-14

Создать оси стены в RFEM 6

Можно ли в программе RFEM 6 создать центральные оси стен?


Ответ:

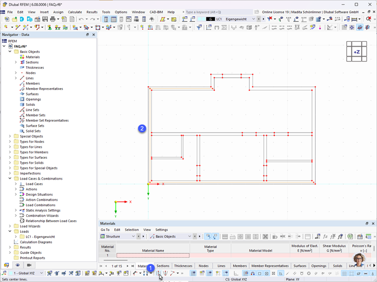
Чтобы создать центральные оси стен, действуйте следующим образом:

  1. Выберите параметр Задать центральную линию Осевая линия в нижней панели команд.
  2. По одному, щелкните на противоположные контуры стен, для которых вы хотите создать осевую линию.
Инфо

Длина созданной центральной линии является средним значением ранее выбранных линий, поэтому ось стены автоматически создает пересечение в углах здания.



;