385x
005625
14. November 2024

Wandachsen in RFEM 6 erzeugen

Kann ich in RFEM 6 die Mittelachsen von Wänden erzeugen?


Antwort:

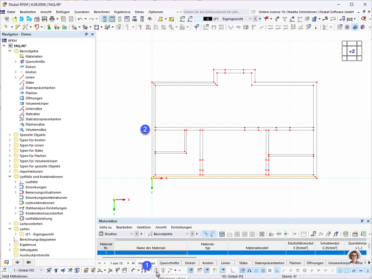
Um die Mittelachsen von Wänden zu erzeugen, gehen Sie wie folgt vor:

  1. Wählen Sie den Befehl Mittellinie setzen Mittellinie in der unteren Befehlszeile.
  2. Klicken Sie nacheinander die gegenüberliegenden Wandkonturen an, deren Mittellinie erzeugt werden soll.
Info

Die Länge der erzeugten Mittellinie ist der Mittelwert der zuvor ausgewählten Linien, sodass die Wandachse an Gebäudeecken automatisch einen Schnittpunkt erzeugt.



;