385x
005625
2024-11-14

Creating Wall Axes in RFEM 6

Can I create the central axes of walls in RFEM 6?


Answer:

To create the central axes of walls, proceed as follows:

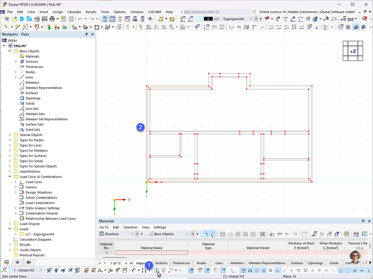
  1. Select the Set Center Line option Center Line in the lower command bar.
  2. Click the opposite wall outlines one by one, whose center line you want to create.
Info

The length of the created center line is the mean value of the previously selected lines, so that the wall axis automatically generates an intersection at the building corners.



;