385x
005625
2024-11-14

Criar eixos de parede no RFEM 6

Posso criar os eixos centrais das paredes no RFEM 6?


Resposta:

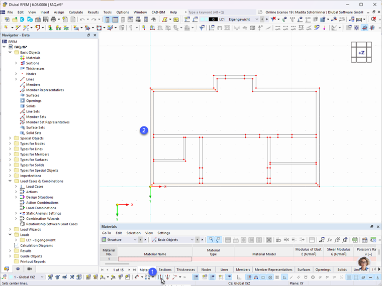
Para criar os eixos centrais das paredes, proceda da seguinte forma:

  1. Selecione a opção Definir linha central Linha central na barra de comandos inferior.
  2. Um a um, clique nos contornos da parede oposta cuja linha central pretende criar.
Informação

O comprimento da linha central criada é o valor médio das linhas previamente selecionadas, de forma que o eixo da parede gera automaticamente uma interseção nos cantos do edifício.



;