385x
005625
14.11.2024

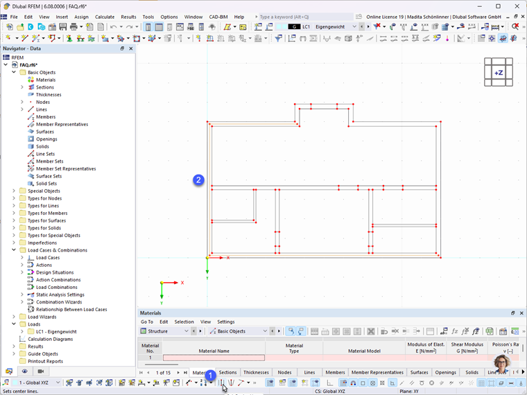
V programu RFEM 6 vytvořte osy stěn

Mohu v programu RFEM 6 vytvořit středové osy stěn?


Odpověď:

Pro vytvoření středových os stěn postupujte následovně:

  1. Vyberte možnost Nastavit osu Osa v dolním příkazovém řádku.
  2. Postupně klikněte na obrysy protilehlých stěn, jejichž střednice se má vytvořit.
Informace

Délka vytvořené osy je střední hodnota dříve vybraných linií, takže osa stěny automaticky vytvoří průnik v rozích budovy.



;