385x
005625
2024-11-14

Crea assi delle pareti in RFEM 6

Posso creare gli assi centrali delle pareti in RFEM 6?


Risposta:

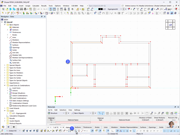
Per creare gli assi centrali delle pareti, procedere come segue:

  1. Seleziona l' opzione Imposta linea centrale Linea centrale nella barra dei comandi inferiore.
  2. Uno per uno, fare clic sui contorni della parete opposti di cui si desidera creare la linea centrale.
Informazione

La lunghezza della linea centrale creata è il valore medio delle linee precedentemente selezionate, in modo che l'asse della parete generi automaticamente un'intersezione agli angoli dell'edificio.



;