385x
005625
14.11.2024

Création d’axes de voile dans RFEM 6

Est-il possible de créer les axes centraux des voiles dans RFEM 6 ?


Réponse:

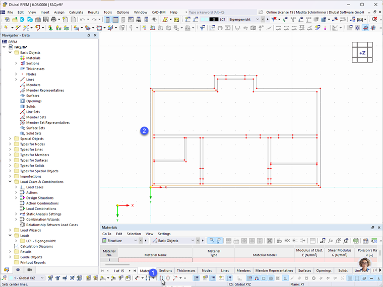
Pour créer les axes centraux des voiles, procédez comme suit :

  1. Sélectionnez la commande Définir des lignes centrales Ligne centrale dans la barre de commande inférieure.
  2. Cliquez un par un sur les contours de voile opposés dont vous souhaitez créer la ligne centrale.
Informations

La longueur de la ligne centrale créée est la moyenne des lignes sélectionnées précédemment, de sorte que l’axe du voile génère automatiquement une intersection aux coins du bâtiment.



;