385x
005625
2024-11-14

Utwórz osie ściany w RFEM 6

Czy mogę utworzyć osie środkowe ścian w programie RFEM 6?


Odpowiedź:

Aby utworzyć osie środkowe ścian, należy wykonać następujące czynności:

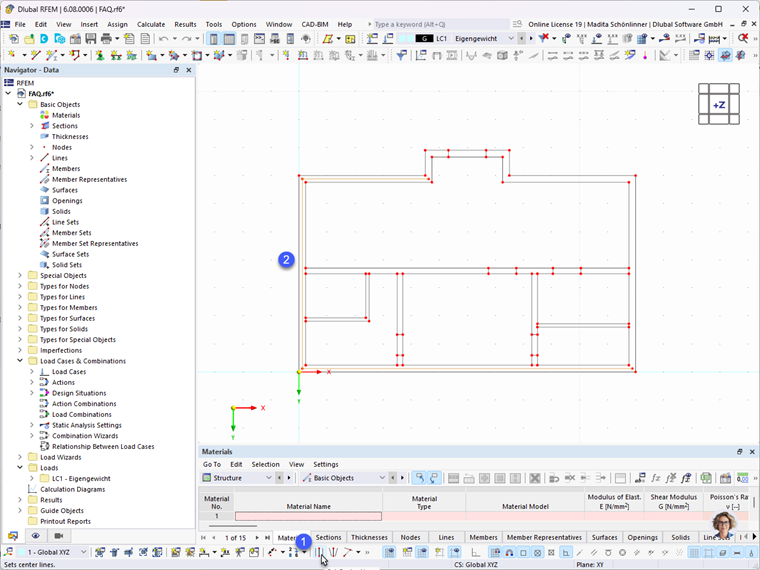
  1. Wybierz opcję Zdefiniuj linię środkową Oś na dolnym pasku poleceń.
  2. Klikaj kolejno przeciwległe kontury ścian, których oś ma zostać utworzona.
Informacje

Długość utworzonej linii środkowej jest średnią wartością poprzednio wybranych linii, dlatego oś ściany automatycznie generuje przecięcie w narożach budynku.



;