385x
005625
14-11-2024

Crear ejes de muro en RFEM 6

¿Puedo crear los ejes centrales de los muros en RFEM 6?


Respuesta:

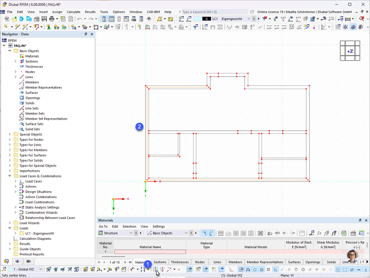
Para crear los ejes centrales de los muros, proceda de la siguiente manera:

  1. Seleccione la opción Establecer línea central Línea central en la barra de comandos inferior.
  2. Uno a uno, haga clic en los contornos de muro opuestos cuya línea central desee crear.
Información

La longitud de la línea central creada es el valor medio de las líneas seleccionadas previamente, de modo que el eje del muro genere automáticamente una intersección en las esquinas del edificio.



;