Community
    Войдите в свою учётную запись

    зарегистрируйтесь во Длупал Экстранет, чтобы максимально использовать программное обеспечение и иметь эксклюзивный доступ к вашим личным данным.

    Создать учётную запись
    Выполняя вход, вы соглашаетесь с Условиями пользования и продаж Dlubal. Также ознакомьтесь с нашим Уведомлением о конфиденциальности и Уведомлением об использовании файлов cookie.
    0
    Интернет-магазин
    Связаться с отделом продаж
    Язык
    • Deutsch
    • English
    • Français
    • Español
    • Português
    • Italiano
    • Česky
    • Polski
    • Pусский
    • 中文(简体)
    • Отрасли
      • Железобетонные конструкции
      • Предварительно напряжённые железобетонные конструкции
      • Стальные конструкции
      • Деревянные конструкции
      • Кирпичная кладка
      • Алюминиевые и лёгкие конструкции
      • Здания
      • Промышленные конструкции
      • Трубопорводы
      • Конструкции мостов
      • Краны и подкрановые пути
      • Башни и мачты
      • Стеклянные конструкции
      • Натяжные мембранные конструкции
      • Канатные и вантовые конструкции
      • Ламинированные и сэндвич-конструкции
      • Временные сооружения
      • Строительные леса и стеллажи
      • Морские сооружения
      • Силосы и резервуары
      • Сооружения возобновляемых источников энергии
      • Солнечные конструкции и системы крепления
      • Конструкции судов и плавучие объекты
      • Конструкции конвейеров
      • Буровые конструкции
      • Бассейны и аквапарки
      • Контейнерные конструкции
      • Буронабивные фундаменты
      • Лестничные конструкции
      • Электростанции
      • Гидравлические стальные механизмы
      • Машины и механизмы
      • Пневматические конструкции
      Решаемые задачи
      • Проектирование конструкций
      • Расчёт по методу конечных элементов (МКЭ)
      • Моделирование ветра и создание ветровых нагрузок
      • Расчёт напряжений
      • Нелинейный расчёт
      • Расчёт на устойчивость
      • Нелинейный расчёт на потерю устойчивости
      • Расчёт на кручение с депланацией
      • Динамический и сейсмический расчёт
      • Нелинейный динамический расчёт
      • Диаграммный метод расчёта
      • Поиск формы и раскройные формы
      • Стальные соединения
      • BIM-проектирование
      • Холодногнутые профили
      • Взаимодействие конструкции с основанием
      • Расчёт фасадных конструкций
      • Основания и фундаменты
      • Стадии строительства
      • Пожарная безопасность
      Нормативы
      • Еврокоды (EC)
      • Немецкие нормативы (DIN)
      • Британские нормативы (BS EN, BS)
      • Итальянские нормативы (NTC)
      • Американские стандарты
      • Канадские нормативы (CSA)
      • Австралийские нормативы (AS)
      • Швейцарские нормативы (SIA)
      • Китайские нормативы (GB, HK)
      • Индийские нормативы (IS)
      • Мексиканские нормы (RCDF, CFE Sismo 15)
      • Российские нормы (СП)
      • Нормативы ЮАР (SANS)
      • Бразильские нормативы (NBR)
      Сетевые средства
      • Иконка инструмента для зон на верхнем меню Карты снеговых нагрузок, скоростей ветра и сейсмических нагрузок
      • Значок расчёта в облаке Облачные вычисления
      • Значок базы знаний расчёта конструкций Вики-статик
      • Свойства сечения стальных и деревянных профилей, значок Свойства сечения и профилей из стали
      Расчёт конструкций для солнечных систем

      Dlubal Software помогает создавать и проверять любую систему крепления для солнечных батарей. Работайте эффективно со стальными, алюминиевыми и бетонными конструкциями в единой среде.

      Инструменты для исследования
      Конструкции солнечных батарей Солнечные конструкции | Мобильная версия
      API Dlubal

      Новый сервис Dlubal API (gRPC) предоставляет вам гибкий интерфейс для программного обеспечения для статического анализа на основе Python и C#, с прямым доступом ко всем продуктам Dlubal.

      Начало работы с API
      Фон для баннера главного меню API Фон для баннера главного меню API
    • Значок, представляющий RFEM 6, программное обеспечение для МКЭ. RFEM 6 Единственное ПО МКЭ, которое вам нужно для ваших проектов

      RFEM 6 является основой модульного семейства программ и служит для определения конструкций, материалов и воздействий для плитных, пластинчатых, оболочных и стержневых конструкций, а также для объемных и контактных элементов.

      Подробнее
      Значок переключения аддона Аддоны
      • Дополнительные расчёты
      • Динамический расчёт
      • Специальные решения
      • Расчёты
      • Соединения
      Значок RSTAB 9 без рамок RSTAB 9 Знаковая программа для расчёта каркасных конструкций

      RSTAB 9 - это мощная программа для расчёта и проектирования 3D конструкций балок, каркасов или ферм, которая которая помогает инженерам-строителям соответствовать современным требованиям и отражает последние тенденции в области строительного проектирования.

      Подробнее
      Значок переключения аддона Аддоны
      • Дополнительные расчёты
      • Динамический расчёт
      • Специальные решения
      • Расчёт
      Значок RSECTION 1 без границ RSECTION 1 Пользовательский расчёт сечений

      RSECTION поддерживает инженеров-конструкторов, определяя характеристические значения профилей для различных сечений и позволяя проводить последующий анализ напряжений.

      Подробнее
      Значок RWIND 3 без границ RWIND 3 CFD-программное обеспечение для цифровых аэродинамических труб

      RWIND 3 представляет собой цифровую аэродинамическую трубу для моделирования потоков воздуха вокруг любых геометрии зданий и расчета ветровых нагрузок на их поверхности.

      Подробнее
      Значок API API Dlubal Ваше решение для параметрического моделирования и автоматизации

      Новый сервис Dlubal API (gRPC) предлагает вам гибкий интерфейс для программ статической расчётной программ Dlubal на базе Python и C#, с прямым доступом ко всему ассортименту продукции Dlubal. Воспользуйтесь бесшовной и мощной интеграцией в ваше программное обеспечение Dlubal — идеально подходит для параметрического моделирования и сложных оптимизационных задач.

      Открыть для себя API
      Документация по API Документация по API
      • Указатель
      • Начало работы
      • Применение
      • Объекты моделей
      • Подписки и цены
      • Примеры
      МКЭ для стальных соединений

      Проектирование и анализ стальных соединений с использованием CBFEM, в соответствии с EN 1993‑1‑8 и AISC 360, полностью интегрированы в RFEM 6 для более быстрых и точных структурных рабочих процессов.

      Подробнее
      Стальные соединения Стальные соединения
      Инструмент геозоны

      Онлайн-сервис Dlubal предоставляет карты зон для быстрого определения снеговых нагрузок, скоростей ветра и сейсмических данных.

      Проверить зоны нагрузки
      Визуальное отображение инструмента геозон с картами снеговой, ветровой и сейсмической нагрузок с иллюстрациями для оценки воздействий окружающей среды. Иллюстрация карт геозон снега, ветра и сейсмики в мобильной версии, показывающая различные регионы и данные.
      Устаревшие продукты
    • Поддержка
      • Часто задаваемые вопросы (FAQ)
      • База знаний
      • Функции продуктов
      • Лицензирование
      • Задать индивидуальный вопрос
      • Наш коллектив техподдержки
      • Предложить новую функцию или идею
      • Решение проблем с лицензированием и авторизацией
      • Сообщить о проблеме или ошибке
      • Обновления программ
      • Проблемы с программой
      • Формулы | Математика - это не скучно!
      Курсы
      • Первые шаги в RFEM
      • Первые шаги в RSTAB
      • Онлайн-обучение
      • Обучение в Dlubal
      • Индивидуальное обучение
      • Видео
      • Обучающие видеоролики
      • Вебинары - обучение онлайн
      • Онлайн-курсы
      Служба техподдержки
      • Бесплатная поддержка / сервис
      • Экстранет | Моя учётная запись
      • Сервисный договор
      • Инструмент Geo-Zone для определения нагрузок
      • Обновления и модернизации
      • Предыдущие версии программ
      Отдел продаж
      • Интернет-магазин
      • Отдел продаж
      • Связаться с отделом продаж
      • Записаться на онлайн-презентацию продукта
      • Что отличает продукцию Dlubal Software?
      Ассистентка ИИ Поддержки
      • Mia – ваш круглосуточный ИИ помощник
      • Познакомьтесь с вашим личным ИИ-помощником
      Бесплатная поддержка и сервис

      Нужна помощь? Воспользуйтесь бесплатными вариантами поддержки, включая круглосуточную помощь ИИ, поддержку по электронной почте и вебинары.

      Подробнее
      Бесплатная техподдержка и сервис Бесплатная техподдержка и обслуживание
      Быстрые ответы

      Найдите быстрые ответы на распространенные вопросы о программном обеспечении Dlubal. Ищите или фильтруйте сотни FAQ, чтобы решить проблемы в кратчайшие сроки.

      Просмотреть FAQ
      Часто задаваемые вопросы (FAQ) Часто задаваемые вопросы | Мобильная версия
    • Новости
      • Актуальные новости
      • Новые функции программ
      • Подписаться на новосттгю рассылку
      • Новые программы
      • Блог Dlubal
      Обучение
      • Онлайн-обучение
      • Индивидуальное обучение
      Мероприятия
      • Обзор мероприятий
      • Выставки и конференции
      • Вебинары
      Освойте проектирование с помощью вебинаров

      Присоединяйтесь к лидерам отрасли и изучайте решения в области строительной инженерии и программного обеспечения. Повышайте свои навыки с помощью наших живых сессий!

      Смотреть следующие вебинары
      3D FEA Software RFEM 6 | First Steps Изображение баннера меню | Вебинары об актуальных новостях | Мобильная версия
      Откройте силу инноваций

      Откройте для себя передовые инструменты и усовершенствования, разработанные для повышения эффективности вашего инженерного рабочего процесса.

      Ознакомиться с новыми функциями
      Explore New Features Изображение баннера меню | Новости_ФункцииПрограмм | Мобильная версия
    • Скачать полную версию

      Хотите попробовать в рааботе программное обеспечение Dlubal? У вас есть такая возможность! С бесплатной 90-дневной полной версией вы можете полностью протестировать все наши программы.

      Начать пробную версию
      Бесплатная зона Dlubal

      В бесплатной зоне Dlubal ты получишь доступ к вебинарам, статьям и возможностям тестирования программного обеспечения – все бесплатно и удобно собрано в одном месте.

      Подробнее
      Примеры
      • Расчётные модели для скачивания
      • Отправить расчётную модель конструкции
      • Вводные примеры и учебные пособия
      • Контрольные примеры
      • Обзор изображений
      Документы
      • Онлайн-руководства
      • Руководства
      • Буклеты, брошюры и сертификаты
      Ссылки
      • Проекты заказчиков
      • Зачем публиковать проект заказчика?
      • Как опубликовать проект заказчика?
      • Опубликовать свой проект
      Бесплатные модели для скачивания

      Исследуйте тысячи готовых к использованию конструкционных моделей. Скачивайте, адаптируйте и используйте их в качестве шаблонов, чтобы ускорить ваш процесс проектирования.

      Открыть модели
      Модели для загрузки для расчёта конструкций Бесплатные модели для скачивания | Мобильная версия
      Зона Dlubal с бесплатными предложениями

      Получите экспертную помощь, когда она вам нужна. Наслаждайтесь бесплатной помощью ИИ, поддержкой по электронной почте, живыми вебинарами и премиальными услугами для пользователей договора на обслуживание Pro.

      Получить поддержку
      Бесплатная поддержка и сервис Бесплатная поддержка и сервис | Мобильная версия
    • Электронное обучение
      • RFEM 6 для начинающих
      • Программа RFEM 6 для студентов
      • Программирование с помощью RFEM 6 и Python
      • RFEM 6 с Rhino и Grasshopper
      • RFEM 5 для начинающих
      • Моделирование в программе RFEM 5
      • Обучающие видео для студентов
      • Краткие видеоуроки по работе с программами Dlubal
      • Лучшие советы и рекомендации в RFEM
      • Записи онлайн-тренингов Dlubal
      • Записанные вебинары Dlubal
      Студентам и учебным заведеням
      • Бесплатные программы для расчёта конструкций для студентов
      • Запросить или продлить бесплатную студенческую версию
      • Запрос на бесплатную версию для преподавателей
      • Отправить студенческую работу
      • Зачем публиковать дипломную работу?
      • Дипломные работы с использованием ПО для расчёта конструкций Dlubal Software
      • Бесплатные программы для расчёта конструкций для учебных заведений
      • Запросить пакет для учебных заведений
      • Бесплатное ознакомительное обучение в вашем ВУЗе
      • Запросить дату проведения обучения
      Платформа знаний
      • Первые шаги в RFEM
      • Видео
      • Онлайн-руководства
      • Wiki-сайт для расчета конструкций
      • База знаний
      • Часто задаваемые вопросы (FAQ)
      Интерактивная система
      • Подкаст
      • Блог Dlubal
      • Ознакомление с проектированием и расчётом конструкций
      Первые шаги с RFEM 6

      Начните работать с RFEM 6 и узнайте, как быстро вы можете моделировать и рассчитывать. Настройте с помощью дополнительных модулей для еще больших возможностей.

      Начать
      3D FEA Software RFEM 6 | First Steps Изображение баннера меню | Вебинары об актуальных новостях | Мобильная версия
      Бесплатные программы расчёта конструкций для студентов

      Тысячи студентов по всему миру уже пользуются преимуществами программного обеспечения Dlubal. Получайте бесплатный доступ, обучение и экспертную поддержку в течение всего периода обучения.

      Получить бесплатную лицензию
      Бесплатное ПО для расчёт констрцукций для студентов Бесплатное программное обеспечение для расчёта конструкций для студентов
    • О компании
      • История и факты
      • Философия компании
      • Почему Dlubal Software?
      • Сравнение продуктов
      • Политика в области качества
      • Коллектив Dlubal
      Контакты
      • Офисы Dlubal по всему миру
      • Авторизованные реселлеры Dlubal
      Ссылки
      • Отзывы клиентов
      • Проекты заказчиков
      • Реализованные проекты
      • Несколько причин опубликовать свой проект в рубрике "Проекты наших заказчиков"
      • Контрольные примеры
      • Ваш отзыв
      • Участие в исследовательских проектах
      Наши клиенты

      Мы представляем наших клиентов, которые реализуют свои проекты с помощью программного обеспечения Dlubal. Узнайте, как наши клиенты во всем мире внедряют инновационные решения в строительстве и инженерии с помощью передовых инструментов для статических и динамических анализов.

      Посмотреть наших заказчиков
      Совместное достижение успеха

      Узнайте, как ведущие инженеры по всему миру доверяют нашим решениям, чтобы улучшить свои проекты с нашей помощью.

      Наши заказчики
      See Our Customers Изображение баннера меню | КомпанияНаши клиентікі
      Знакомство с экспертами

      Наши преданные делу инженеры готовы помочь вам с моделированием, проектированием и техническими задачами — в любое время и в любом месте.

      Связаться с саппортом
      Our Team Изображение с баннером меню | Компания_Наш коллектив | Мобильная версия
    • Карьера
      • Вакансии
      • Коллективы
      • Блог сотрудников
      • Анализ результатов
      Вакансии
      • Все открытые вакансии
      • Разработка продуктов
      • Поддержка клиентов
      • Отдел продаж
      • Маркетинг
      • Разработка программного обеспечения
      • Администрация
      • Стажёры
      • Другие
      Команды
      • Разработка продуктов
      • Клиентский сервис
      • Продажи
      • Маркетинг
      • Разработка ПО
      • Администрация
      Почему Dlubal?
      • Корпоративная культура
      • Преимущества для сотрудников
      Постройте свою будущую карьеру вместе с нами

      Раскройте, как наша команда формирует будущее инженерии. Узнайте об инновациях, росте и захватывающих задачах.

      Карьера в Dlubal Изображение баннера меню | Карьера в Dlubal Mobile
      Найдите свою работу мечты

      Присоединяйтесь к мировому лидеру в области инженерного программного обеспечения и поднимите свою карьеру на новые высоты.

      Открытые вакансии
      All Open Positions Изображение меню на баннере | Вакансии
    • Интернет-магазин
    Основные продукты
    Значок, представляющий RFEM 6, программное обеспечение для МКЭ.
    RFEM 6
    Значок RSTAB 9 без рамок
    RSTAB 9
    Значок RWIND 3 без границ
    RWIND 3
    Значок RSECTION 1 без границ
    RSECTION
    Онлайн-сервисы
    Значок инструмента для определения геологических зон
    Инструмент Geo-Zone
    Характеристики сечение
    Характеристики сечения
    Значок API
    API
    Значок облачного вычисления
    Рассчёт в облаке
    Модели для скачивания
    Модели для загрузки
    Значок сообщества Dlubal
    Сообщество Dlubal
    Значок статей базы знаний
    База знаний
    Интерактивные вебинары
    Вебинары
    Войдите в свою учётную запись

    зарегистрируйтесь во Длупал Экстранет, чтобы максимально использовать программное обеспечение и иметь эксклюзивный доступ к вашим личным данным.

    Войти Создать учётную запись
    Пробная версия бесплатно на 90 дней
    Войдите в свою учётную запись

    зарегистрируйтесь во Длупал Экстранет, чтобы максимально использовать программное обеспечение и иметь эксклюзивный доступ к вашим личным данным.

    Войти Создать учётную запись
    • Продукты
    • Метод конечных элементов (МКЭ)
    • Аддоны для RFEM 6
    • Расчёты
    • Железобетонные фундаменты
    Значок RFEM 6 | Dlubal Software Железобетонные фундаменты
    Онлайн-руководства
    • Онлайн-руководство к RFEM 6 | Железобетонные фундаменты
    • Учебные пособия для программы RFEM 6
    • RFEM 6 / RSTAB 9 | Первые шаги
    }
    calculator icon
    Цены
    Аддон Бетонные фундаменты для RFEM 6
    • Железобетонный фундамент
    • Армирование
    • Железобетонные конструкции

    Аддон Бетонные фундаменты для RFEM 6

    Дополнение "Бетонные фундаменты" для RFEM 6 позволяет выполнять расчет железобетонных и неармированных фундаментных плит, стаканных и блочных фундаментов. Для стаканных и блочных фундаментов вы можете учитывать гладкие или шероховатые внутренние стороны стаканов.

    Дополнение предлагает интуитивно понятный ввод данных, качественную визуализацию, расчеты, соответствующие еврокодам, а также детализированные возможности контроля. Оно позволяет быстрое и эффективное проектирование фундаментов.

    Аддон Железобетонные фундаменты | Изображение ползуна

    Новый аддон Железобетонные фундаменты для RFEM 6

    Представляем вам универсальное решение для бесшовного проектирования фундаментов! Мощный аддон Железобетонные фундаменты поддерживает проектирование армированных, так и неармированных плит фундаментов, а также стаканных и блочных фундаментов. Он полностью интегрирован в RFEM 6. Благодаря этому аддон автоматически принимает расчетные усилия, определенные в RFEM, и обновляет их при изменениях общей модели.

    Этот аддон создан для эффективности и выполняет все необходимые проверки, например на продавливание или скольжение.

    Если бы работаете в гражданском строительстве, на промышленных проектах или выполняете исследования, с RFEM 6 и аддоном Железобетонные фундаменты вы можете оптимизировать рабочие процессы, сэкономить время и достичь точных и надежных результатов.

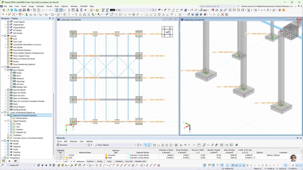
    Железобетонный фундамент, смоделированный как параметрический блок в RFEM 6
    Железобетонный фундамент, смоделированный как параметрический блок в RFEM 6

    Дополните проектирование конструкций возмоьностью расчитывать фундаменты

    Изображение бетонного фундамента с видимой арматурой для улучшенного распределения нагрузки

    Раскройте потенциал расчёта фундаментов!

    • Расчёт армированных и неармированных фундаментных плит, а также блочных фундаментов
    • Графическое изображение с рендерингом
    • Геотехнические расчеты по норме Еврокод 7 (расчет на разрушение грунта, расчет на скольжение, а также расчет состояния равновесия, предельное состояние всплытия, нагрузки с большим эксцентриситетом, нагрузки с большим эксцентриситетом в ядре)
    • Графический и табличный вывод требуемого количества арматуры
    • Расчёт железобетонных конструкций по норме Еврокод 2 (расчёт на изгиб, продавливание, минимальное армирование)
    • Подробные расчёты по предельным состояниям по несущей способности и пригодности к эксплуатации, а также для деталей конструкции
    • Вывод расчётных проверок с формулами → никакого чёрного ящика, полная прозрачность и проверяемость!
    Откройте основные функции

    Откройте для себя мощные функции аддона к RFEM 6, который упрощают расчёт и проектирование фундаментов, обеспечивая максимальную надёжность и эффективность.

    • Фундамент для смешанной конструкции

      Вне зависимости от того, является ли колонна стальной, железобетонной, деревянной и т. д., фундамент можно задать для любого материала. Также возможны фундаменты под колонны из плоскостных компонентов.

    • Комплексное проектирование по Еврокоду

      Убедитесь, что ваши расчёты соответствуют нормам Еврокод 2 и 7, включая подробные расчётные проверки железобетонных конструкций и геотехнические расчёты, расчеты на продавливане, на устойчивость и т.д.

    • Настраиваемые параметры расчёта

      Настройте параметры расчёта в соответствии с требованиями проекта, чтобы обеспечить гибкость и больший контроль над результатами ирасчётными проверками.

    • Полная интеграция в RFEM 6
      Благодаря бесшовной работе с RFEM 6, исключается необходимость использования стороннего ПО, что снижает количество ошибок и экономит время. Аддон автоматически определяет размеры объекта.
    Детализированная стальная конструкция на массивных бетонных фундаментах с точными соединительными элементами
    Изображение точных бетонных фундаментов и геотехнических расчетов по Еврокоду 2 и 7
    Изображение бетонного зала с прочными железобетонными фундаментами в контексте строительства
    Детализированная стальная конструкция на массивных бетонных фундаментах с точными соединительными элементами
    Значок "Отзывы пользователей"

    Узнайте, что наши пользователи говорят о продуктах Dlubal!

    Значок опоры

    Откройте для себя Dlubal в прямом эфире и зарезервируйте онлайн-демонстрацию продуктов!

    Скачать иконку

    Попробуйте бесплатную версию для тестирования на 90 дней

    Процедура

    • Создание общей конструкции
    • Создание и придание нового фундамента узловой опоре
    • Задание исходных данных в интуитивно понятном интерфейсе (RFEM предлагает вам мгновенную графическую визуализацию топологии)
    • Проверка желаемых конфигураций для расчёта (RFEM предоставляет вам стандартные настройки по умолчанию)
    • Начало расчёта
    • Оценка результатов графически, таблично и в деталях
    • Печать таблиц результатов, графиков (опционально с армированием, серийная печать) и расчётных формул (со ссылкой на формулы в нормах) в протоколе результатов
    Цифровое моделирование бетонных фундаментов в расчетной модели RFEM 6
    Интерфейс RFEM 6 с моделью железобетонной рамной конструкции с фундаментами
    Ваши преимущества
    Железобетонный зал с интегрированными бетонными фундаментами и детализированными конструктивными элементами
    1. Решение всё в одном

    Работает полностью в среде RFEM 6, поэтому не требуется внешних программ.

    Железобетонный элемент в паре с фундаментом для точного определения количества арматуры
    2. Эффективный расчёт арматуры

    Просто определите точное количество арматуры, необходимое для вашего фундамента.

    Интерфейс для выполнения геотехнических доказательств по Еврокоду 7 с помощью аддона
    3. Интегрированный геотехнический расчёт

    Выполняйте в аддоне необходимые геотехнические расчётные проверки по норме Еврокод 7.

    Детализированный протокол результатов с визуальными и числовыми данными для анализа бетонных фундаментов
    4. Подробные и четкие результаты

    Получайте подробные, понятные результаты с четкими визуальными и числовыми результатами для полной документации.

    Интернет-магазин

    Составьте свой индивидуальный пакет программ и узнайте все цены онлайн!

    • Семейство RFEM 6
    • Семейство RSTAB 9
    В интернет-магазин

    Рассчитать стоимость

    1 400,00 USD
    +110,00 USD
    база колонны
    Общая сумма 1 510,00 USD
    Программы для расчёта и проектирования конструкций
    Dlubal Software GmbH

    Am Zellweg 2
    93464 Тифенбах
    Германия

    +49 9673 9203-0 [email protected]
    Dlubal Software s.r.o.

    Anglická 28
    120 00 Прага
    Чешская республика

    +420 227 203 203 [email protected]
    Решения
    • Железобетонные конструкции
    • Стальные конструкции
    • Деревянные конструкции
    • Стальные соединения
    Продукты
    • RFEM 6
    • RSTAB 9
    • RSECTION 1
    • RWIND 3
    Поддержка
    • Часто задаваемые вопросы (FAQ)
    • Задать индивидуальный вопрос
    • Карты снеговых нагрузок, скоростей ветра и сейсмических нагрузок
    • Связаться с отделом продаж
    News
    • Подписаться на новосттгю рассылку
    • Актуальные новости
    • Обзор мероприятий
    • Онлайн-обучение
    Ресурсы
    • Бесплатная полная пробная версия
    • Опубликовать свой проект
    • Проекты заказчиков
    • Онлайн-руководства
    Присоединиться к Dlubal
    Сообщество Dlubal YouTube Facebook Pinterest TikTok Instagram
    © 2001-2026 Dlubal Software GmbH | Все права защищены
    Правовая информация
    О компании
    Карта сайта
    Язык
    • Deutsch
    • English
    • Français
    • Español
    • Português
    • Italiano
    • Česky
    • Polski
    • Pусский
    • 中文(简体)