Community
    Connectez-vous à votre compte

    Inscrivez-vous à l’Extranet Dlubal pour tirer le meilleur parti du logiciel et avoir un accès exclusif à vos données personnelles.

    Créer un compte
    En vous connectant à votre compte Dlubal, vous acceptez les conditions générales de vente de Dlubal Software. Veuillez consulter notre Politique de confidentialité et notre Politique de cookies.
    0
    Boutique en ligne
    Contactez l'équipe commerciale
    Langue
    • Deutsch
    • English
    • Français
    • Español
    • Português
    • Italiano
    • Česky
    • Polski
    • Pусский
    • 中文(简体)
    • Secteurs d’activités
      • Structures en béton armé
      • Structures en béton précontraint
      • Structures acier
      • Structures en bois
      • Structures en maçonnerie
      • Structures en aluminium et légères
      • Bâtiments
      • Structures industrielles
      • Systèmes de canalisation
      • Construction de pont
      • Grues et ponts roulants
      • Tours et pylônes
      • Structures en verre
      • Structure en toile tendue et structure textile
      • Structures à câbles et à réseaux de câbles
      • Structures stratifiées et sandwich
      • Structures temporaires
      • Construction d’échafaudages et de rayonnages
      • Structures offshore
      • Silos et réservoirs de stockage
      • Installations d'exploitation des énergies renouvelables
      • Structures solaires et systèmes de montage
      • Construction navale et structures flottantes
      • Structures de convoyage
      • Structures de forage
      • Piscines et parcs aquatiques
      • Structures de conteneurs
      • Fondations sur pieux forés
      • Escaliers
      • Centrales électriques
      • Ingénierie hydraulique acier
      • Génie mécanique
      • Structures à coussins gonflables en ETFE
      Champs d'application
      • Ingénierie structurale
      • Analyse selon la méthode des éléments finis (MEF)
      • Simulation des flux de vent et génération des charges de vent
      • Analyse des contraintes
      • Analyse non linéaire
      • Analyse de stabilité
      • Analyse de flambement non linéaire
      • Analyse de la torsion de gauchissement
      • Analyses dynamiques et sismiques
      • Analyse dynamique non linéaire
      • Analyse pushover
      • Recherche de forme et patrons de coupe
      • Assemblages acier
      • Planification orientée BIM
      • Profilés formés à froid
      • Interaction sol-structure
      • Calcul de façades
      • Fondations et géotechnique
      • Phases de construction
      • Résistance au feu
      Normes
      • Eurocodes (EC)
      • Normes allemandes (DIN)
      • Normes britanniques (BS EN, BS)
      • Normes techniques de construction Italienne (NTC)
      • Normes américaines
      • Normes canadiennes (CSA)
      • Normes australiennes (AS)
      • Normes suisses (SIA)
      • Normes chinoises (GB, HK)
      • Normes indiennes (IS)
      • Normes mexicaines (RCDF, CFE Sismo 15)
      • Normes russes (SP)
      • Normes sud-africaines (SANS)
      • Normes brésiliennes (NBR)
      Services en ligne
      • Icône dans le menu supérieur de l’outil de géolocalisation Carte des charges de neige, des vitesses de vent et des charges sismiques
      • Icône Calcul dans le Cloud Calculs dans le Cloud
      • Icône Wiki calcul de structure Wiki du calcul de structure
      • Icône Propriétés de section des sections acier et bois Propriétés de sections en acier
      Ingénierie des structures pour systèmes solaires

      Dlubal Software vous aide à créer et à vérifier tout système de montage solaire. Travaillez efficacement avec des structures en acier, en aluminium et en béton dans un seul environnement.

      Explorer les outils
      Structures solaires Structures solaires | Version mobile
      API Dlubal

      Le nouveau service API Dlubal (gRPC) vous fournit une interface flexible pour le logiciel d'analyse structurelle basée sur Python et C#, avec un accès direct à l'ensemble de la gamme de produits Dlubal.

      Débuter avec l’API
      Arrière-plan pour la bannière du menu principal API Arrière-plan pour la bannière du menu principal API
    • Une icône RFEM 6 pour application de logiciel de calcul de structure. RFEM 6 Le seul logiciel MEF pour tous vos projets

      RFEM 6 constitue la base de la famille modulaire de programmes et sert à la définition de structures, de matériaux et d'actions pour des systèmes porteurs en plaques, voiles, coques et barres ainsi que pour des solides.

      En savoir plus
      Icône de changement de module complémentaire Modules complémentaires
      • Analyses supplémentaires
      • Analyse dynamique
      • Solutions spéciales
      • Vérification
      • Assemblages
      Icône RSTAB 9 sans bord RSTAB 9 Logiciel de structures filaires emblématique

      Grâce à RSTAB, l'ingénieur structure a accès à un logiciel de structures filaires 3D qui répond aux exigences du calcul de structure moderne et reflète l'état actuel des techniques de construction.

      En savoir plus
      Icône de changement de module complémentaire Modules complémentaires
      • Analyses supplémentaires
      • Analyse dynamique
      • Solutions spéciales
      • Vérification
      Icône RSECTION 1 sans bord RSECTION 1 Calculs de section utilisateurs

      RSECTION aide les ingénieurs en structure en déterminant les caractéristiques des sections transversales pour une grande variété de profils et permet une analyse de contrainte subséquente.

      En savoir plus
      Icône RWIND 3 sans bord RWIND 3 Logiciel CFD pour souffleries numériques

      RWIND 3 est une soufflerie numérique pour la simulation des flux de vent autour de toutes géométries de bâtiments et pour le calcul des charges de vent sur leurs surfaces.

      En savoir plus
      Icône API API Dlubal Votre porte vers la modélisation paramétrique et l’automatisation

      Le nouveau service API de Dlubal (gRPC) vous offre une interface flexible basée sur Python et C# pour le logiciel de calcul de structure, avec un accès direct à toute la gamme de produits Dlubal. Profitez d’une intégration transparente et puissante dans votre logiciel Dlubal – idéal pour la modélisation paramétrique et les tâches d’optimisation complexes.

      Découvrir l’API
      Documentation de l’API Documentation API
      • Index
      • Premiers pas
      • Applications
      • Objets de modèle
      • Abonnements & prix
      • Exemples
      Analyse aux éléments finis pour les assemblages en acier

      Concevez et analysez des connexions en acier en utilisant le CBFEM, conforme aux normes EN 1993‑1‑8 et AISC 360, entièrement intégré dans RFEM 6 pour des flux de travail structurels plus rapides et plus précis.

      En savoir plus
      Assemblages acier Assemblages en acier
      Outil de zone géographique

      Le service en ligne Dlubal fournit des cartes de zones pour la détermination rapide des charges de neige, des vitesses de vent et des données sismiques.

      Zones de charge
      Outil de visualisation de zone géographique affichant des cartes de neige, de vent et sismiques avec des illustrations pour les évaluations des charges environnementales. Illustration des cartes des zones géographiques de neige, de vent et sismiques sur une version mobile montrant différentes régions et données.
      Versions précédentes
    • Support technique
      • Foire aux Questions (FAQ)
      • Base de connaissance
      • Fonctionnalités de produit
      • Licences
      • Poser une question
      • Notre équipe de support
      • Soumettre une fonctionnalité ou une idée
      • Résolution des problèmes de licences et autorisations
      • Signaler un problème ou un bug
      • Mises à jour du logiciel
      • Problèmes de logiciel
      • Formules | Les mathématiques, c'est amusant !
      Formations
      • Premiers pas avec RFEM
      • Premiers pas avec RSTAB
      • Formation en ligne
      • Formation chez Dlubal
      • Catalogue de formation
      • Formation Intra-entreprises
      • Vidéos
      • Vidéos d’e-learning
      • Webinaires Dlubal
      • Cours en ligne
      Service
      • Support / service client gratuit
      • Extranet | Mon compte
      • Contrat de service
      • Outil de géolocalisation pour la détermination des charges
      • Mises à jour et mises à niveau
      • Versions antérieures des logiciels Dlubal
      Vente
      • Boutique en ligne
      • Notre équipe commerciale
      • Contacter notre équipe commerciale
      • Demander une démonstration de produit en ligne
      • Pourquoi choisir Dlubal Software ?
      Assistante IA
      • Mia - Votre assistante IA disponible 24 h/24
      • Découvrez votre assistante IA personnelle
      Support technique et services gratuits

      Besoin d'aide ? Accédez à des options d'assistance gratuites incluant une assistance IA 24h/24 et 7j/7, un support par email et des webinaires.

      En savoir plus
      Support et services gratuits Support et service gratuits
      Trouver rapidement des réponses

      Trouvez des réponses rapides aux questions courantes concernant Dlubal Software. Recherchez ou filtrez des centaines de FAQ pour résoudre les problèmes en un rien de temps.

      Voir la FAQ
      FAQ FAQ | Version mobile
    • Nouveautés
      • Actualités
      • Nouvelles fonctionnalités de produit
      • S’abonner à la newsletter
      • Nouveaux programmes
      • Blog Dlubal
      Formations
      • Formations en ligne
      • Formation individuelle
      Événements
      • Vue d'ensemble des événements Dlubal
      • Conférences et salons
      • Webinaires
      Maîtriser l’ingénierie avec les webinaires

      Rejoignez les leaders de l'industrie et explorez des solutions en génie structurel et logiciel. Améliorez vos compétences avec nos sessions en direct !

      Voir les prochains webinaires
      3D FEA Software RFEM 6 | First Steps Menu Image de bannière | Actualités webinaires | Version mobile
      Libérez le pouvoir de l’innovation

      Découvrez des outils et améliorations de pointe conçus pour optimiser votre flux de travail en ingénierie.

      Découvrir les nouvelles fonctionnalités
      Explore New Features Image de bandeau de menu | Nouveaux_FonctionnalitésProduit | Version mobile
    • Télécharger la version complète

      Souhaitez-vous essayer les logiciels performants de Dlubal Software ? C’est possible ! Grâce à la version d’essai complète gratuite de 90 jours, vous pouvez tester entièrement toutes nos solutions.

      Télécharger la version d’essai
      Espace gratuit Dlubal

      Dans l’espace gratuit de Dlubal, vous avez accès à des webinaires, des articles et des versions d’essai - et ce, sur une seul et même plateforme.

      En savoir plus
      Exemples
      • Modèles de calcul de structure à télécharger
      • Soumettre un modèle de calcul de structure
      • Exemples introductifs et tutoriels
      • Exemples de vérification
      • Vue d'ensemble des figures
      Documentation
      • Manuels en ligne
      • Manuels
      • Dépliants, brochures et certificats
      Références
      • Projets clients
      • Pourquoi soumettre un projet client ?
      • Comment soumettre un projet client ?
      • Soumettre un projet client
      Télécharger des modèles gratuits

      Explorez des milliers de modèles structurels prêts à l'emploi. Téléchargez-les, adaptez-les et utilisez-les comme modèles pour accélérer votre processus de conception.

      Découvrir les modèles
      Modèles de calcul de structure à télécharger Modèles gratuits à télécharger | Version mobile
      Espace Dlubal

      Obtenez de l'aide d'experts quand vous en avez besoin. Profitez de l'assistance IA gratuite, du support par email, des webinaires en direct et des services premium pour les utilisateurs du contrat de service Pro.

      Obtenir de l’assistance
      Support et services gratuits Support et services gratuits | Version mobile - Dlubal Software
    • E-learning
      • RFEM 6 pour débutants
      • RFEM 6 pour les étudiants
      • Programmation avec RFEM 6 et Python
      • RFEM 6 avec Rhino & Grasshopper
      • RFEM 5 pour débutants
      • Modélisation avec RFEM 5
      • Vidéos d'apprentissage pour les étudiants
      • Tutoriels sur les logiciels Dlubal
      • Les meilleurs trucs et astuces pour RFEM
      • Formations en ligne enregistrées
      • Webinaires enregistrés
      Étudiants et établissements scolaires
      • Logiciels de calcul de structure gratuits pour les étudiants
      • Demander ou renouveler la licence étudiante gratuite
      • Demander une licence enseignante gratuite
      • Soumettre un mémoire de fin d’études
      • Pourquoi soumettre votre projet de fin d’études ?
      • Projets de fin d’études avec les logiciels de calcul de structure Dlubal
      • Logiciels de calcul de structure gratuits pour les universités et centres de formation
      • Demander un pack éducation
      • Formation d’introduction gratuite pour les universités
      • Demander une date de formation
      Plateforme de connaissance
      • Premiers pas avec RFEM
      • Vidéos
      • Manuels en ligne
      • Wiki du calcul de structure
      • Base de connaissance
      • Foire aux Questions (FAQ)
      Infodivertissement
      • Podcast
      • Blog Dlubal
      • Introduction au calcul de structure
      Premiers pas avec RFEM 6

      Faites vos premiers pas avec RFEM 6 et découvrez à quelle vitesse vous pouvez modéliser et calculer. Personnalisez avec des modules complémentaires pour encore plus de possibilités.

      Premiers pas
      3D FEA Software RFEM 6 | First Steps Menu Image de bannière | Actualités webinaires | Version mobile
      Logiciel de calcul de structure gratuit pour les étudiants

      Des milliers d'étudiants dans le monde bénéficient déjà des logiciels Dlubal. Profitez d'un accès gratuit, de formations et du soutien d'experts tout au long de vos études.

      Obtenir une version gratuite
      Logiciel de calcul de structures gratuit pour les étudiants Logiciel de calcul de structures gratuit pour étudiants
    • À propos
      • Historique et chiffres
      • Philosophie de la société
      • Pourquoi choisir Dlubal Software ?
      • Comparaison de produits
      • Politique de qualité
      • Notre équipe
      Contact
      • Sites de Dlubal Software dans le monde
      • Revendeur Dlubal agréés
      Références
      • Retours d'expérience
      • Projets clients
      • Études de cas
      • Pourquoi soumettre un projet client ?
      • Exemples de vérification
      • Votre avis
      • Participation à des projets de recherche
      Nos clients

      Nous présentons nos clients qui réalisent leurs projets avec les logiciels Dlubal. Découvrez comment nos clients du monde entier mettent en œuvre des solutions innovantes dans le domaine de la construction et de l’ingénierie à l’aide d’outils avancés pour les analyses statiques et dynamiques.

      Voir nos clients
      Réussir ensemble

      Découvrez comment les ingénieurs de premier plan à travers le monde font confiance à nos solutions pour élever leurs projets avec nous.

      Voir nos clients
      See Our Customers Image de bannière du menu | Entreprise_NosClients_Mobile
      Rencontrez les experts

      Nos ingénieurs dédiés sont là pour vous aider avec la modélisation, la conception et les défis techniques—à tout moment, n'importe où.

      Contacter le support
      Our Team Image de bannière de menu | Société_Notre équipe | Version mobile
    • Carrière
      • Offres d’emploi
      • Équipes
      • Blog des collègues
      • Informations
      Offres d’emploi
      • Toutes les offres d’emploi
      • Développement de produit
      • Support client
      • Vente
      • Marketing
      • Développement logiciel
      • Administration
      • Stagiaires
      • Autres
      Équipes
      • Développement de produits
      • Support client
      • Ventes
      • Marketing
      • Développement de logiciels
      • Administration
      Pourquoi choisir Dlubal ?
      • Culture d’entreprise
      • Avantages pour les employés
      Construisez votre avenir avec nous

      Découvrez comment notre équipe façonne l'avenir de l'ingénierie. Expérimentez l'innovation, la croissance et des défis passionnants.

      Carrière chez Dlubal Image de bannière de menu | Carrière chez Dlubal Mobile
      Trouvez l’emploi de vos rêves

      Rejoignez un leader mondial des logiciels d'ingénierie et faites passer votre carrière à un niveau supérieur.

      Découvrir les offres d’emploi
      All Open Positions Image de menu | Postes vacants sur mobile
    • Boutique en ligne
    Produits principaux
    Une icône RFEM 6 pour application de logiciel de calcul de structure.
    RFEM 6
    Icône RSTAB 9 sans bord
    RSTAB 9
    Icône RWIND 3 sans bord
    RWIND 3
    Icône RSECTION 1 sans bord
    RSECTION
    Services en ligne
    Icône de l’outil Geo-Zone Tool
    Outil de géolocalisation
    Propriétés de section
    Propriétés de section
    Icône API
    API
    Icône « Calcul dans le Cloud »
    Calcul dans le Cloud
    Modèles téléchargeables
    Télécharger le modèle
    Icône Communauté Dlubal
    Communauté Dlubal
    Icône Articles de la base de connaissances
    Base de connaissances
    Webinaires en ligne
    Webinaires
    Connectez-vous à votre compte

    Inscrivez-vous à l’Extranet Dlubal pour tirer le meilleur parti du logiciel et avoir un accès exclusif à vos données personnelles.

    Se connecter Créer un compte
    Essai gratuit de 90 jours
    Connectez-vous à votre compte

    Inscrivez-vous à l’Extranet Dlubal pour tirer le meilleur parti du logiciel et avoir un accès exclusif à vos données personnelles.

    Se connecter Créer un compte
    • Produits
    • Analyse aux éléments finis (AEF)
    • Modules complémentaires pour RFEM 6
    • Vérification
    • Fondations en béton
    Icône pour RFEM 6 | Dlubal Software Fondations en béton
    Manuels en ligne
    • Manuel en ligne RFEM 6 | Fondations en béton
    • Tutoriel pour RFEM 6
    • RFEM 6 / RSTAB 9 | Vos premiers pas
    }
    calculator icon
    Nos prix
    Module complémentaire Fondations en béton pour RFEM 6
    • Fondations en béton
    • Armatures
    • Structures en béton

    Module complémentaire Fondations en béton pour RFEM 6

    Le module complémentaire Fondations en béton pour RFEM 6 vous permet de concevoir et de calculer des semelles de fondation, des fondations par encuvement ainsi que des blocs de fondations, avec ou sans armatures. Pour les fondations par encuvement et les blocs de fondation, vous pouvez considérer des parois intérieures lisses ou rugueuses.

    Le module complémentaire permet une entrée intuitive, une visualisation haute définition, des calculs conformes aux Eurocodes, ainsi que des contrôles détaillés.

    Module complémentaire Fondations en béton | Image du curseur

    Nouveau module complémentaire Fondations en béton pour RFEM 6

    Nous sommes fiers de vous présenter notre solution tout-en-un pour le dimensionnement complet des fondations en béton ! Le puissant module complémentaire Fondations en béton vous assiste dans le dimensionnement des semelles de fondation armées et non armées ainsi que les fondations par encuvement et les blocs de fondation. Il est entièrement intégré dans RFEM 6. Ainsi, le module complémentaire reprend automatiquement les efforts internes déterminés dans RFEM et les met à jour en cas de modifications du modèle global.

    Le module complémentaire est conçu pour l’efficacité et effectue toutes les vérifications pertinentes comme le poinçonnement, le glissement, etc.

    Que ce soit dans le bâtiment, pour des projets industriels ou la recherche - avec RFEM 6 et le module complémentaire Fondations en béton, vous pouvez rationaliser vos flux de travail, gagner du temps et obtenir des résultats précis et fiables.

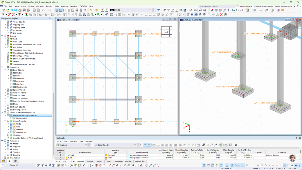
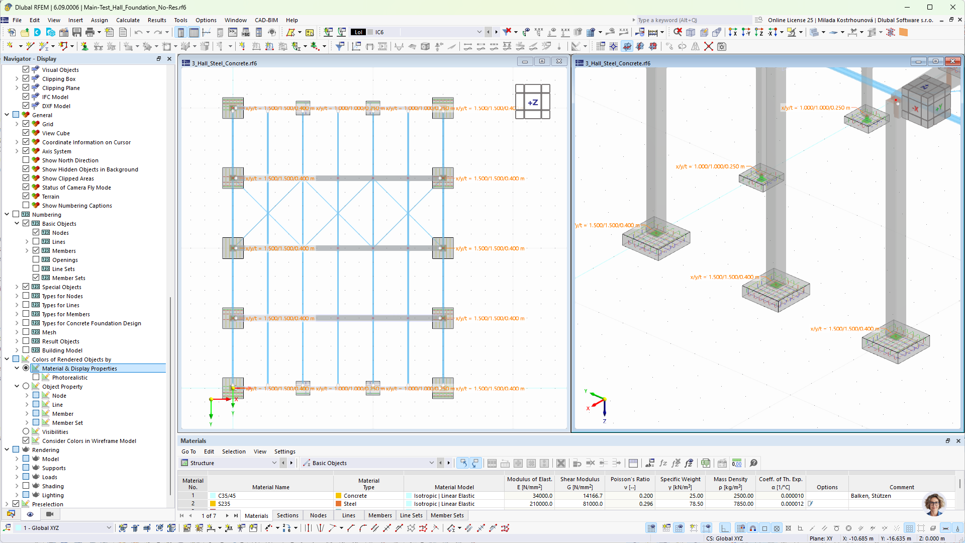
    Fondation en béton modélisée comme un bloc paramétrique dans RFEM 6
    Fondation en béton modélisée comme bloc paramétrique dans RFEM 6

    Approfondissez votre calcul de structure avec la vérification des fondations !

    Image d’une fondation en béton avec détail des armatures pour améliorer la répartition des charges

    Libérez tout le potentiel de la vérification de vos fondations !

    • Vérification des blocs et semelles de fondation avec et sans armatures
    • Affichage graphique avec rendu
    • Analyses géotechniques selon l’Eurocode 7 (vérification du glissement et vérification à l’état limite d’équilibre, à l’état limite de soulèvement, charges fortement excentrées, torsion de fondation)
    • Sortie graphique et tabulaire de la quantité d’armatures requise
    • Vérification du béton armé selon l’Eurocode 2 (vérification de la flexion, vérification de la résistance au poinçonnement, armatures minimales)
    • Vérifications détaillées à l’état limite ultime et à l'état limite de service ainsi que pour les détails structuraux
    • Sortie des vérifications avec les formules : pas d’effet boite noire, mais de la transparence et de la traçabilité !
    Découvrir les fonctionnalités principales

    Découvrez les fonctionnalités puissantes du module complémentaire pour RFEM 6 qui simplifient le calcul et la vérification des fondations, garantissant ainsi une sécurité et des performances maximales.

    • Fondations pour structures mixtes

      Qu’il s’agisse d’un poteau en acier, béton, bois, etc., la fondation peut être définie sous tous les matériaux. Il est également possible de créer des fondations sous des poteaux composés de surface.

    • Normes Eurocode complètes

      Assurez-vous que vos conceptions respectent les normes Eurocode 2 et 7, avec des vérifications détaillées du béton et de la géotechnique, y compris le poinçonnement, la stabilité globale, etc.

    • Paramètres de vérification personnalisables

      Adaptez les paramètres de calcul pour répondre aux exigences spécifiques d’un projet, offrant ainsi flexibilité et meilleur contrôle sur les résultats et vérifications.

    • Intégration complète dans RFEM 6
      L’utilisation intégrée dans RFEM 6 rend les logiciels tiers superflus, ce qui réduit les erreurs et permet de gagner du temps. L’add-on détecte automatiquement les dimensions de l’objet à supporter.
    Structure en acier détaillée reposant sur des fondations massives en béton avec des éléments de connexion précis
    Représentation des fondations en béton précises et vérifications géotechniques détaillées selon les Eurocodes 2 et 7
    Image d’une halle en béton présentant de solides fondations en béton armé dans un contexte de construction
    Structure en acier détaillée reposant sur des fondations massives en béton avec des éléments de connexion précis
    Icône des retours d'expérience des clients

    Découvrez ce que nos clients disent des produits Dlubal !

    Icône d'appui

    Découvrez Dlubal en direct et organisez une démonstration de produit en ligne !

    Icône de téléchargement

    Testez la version complète gratuitement pendant 90 jours

    Procédure

    • Création de la structure globale
    • Création et attribution d’une nouvelle fondation à un appui nodal
    • Définition des données d’entrée dans l’interface graphique intuitive (RFEM vous offre une visualisation graphique immédiate de la topologie)
    • Vérification des configurations souhaitées pour la vérification (RFEM vous propose des réglages standards courants)
    • Lancement du calcul
    • Évaluation graphique des résultats, dans les tables et les détails
    • Impression des tableaux de résultats, graphiques (option avec armature, impression multiple) et formules de vérification (référence aux équations dans la norme) dans le rapport d’impression
    Fondations en béton modélisées numériquement dans le modèle de calcul RFEM 6
    Interface RFEM 6 avec un modèle de structure en béton armé avec fondations
    Vos avantages
    Halle en béton armé avec fondations intégrées et éléments structurels détaillés
    1. Une solution tout-en-un

    Fonctionne parfaitement dans l'environnement RFEM 6 et aucun programme externe n'est requis.

    Barre en béton associée à une fondation pour déterminer les quantités d’armature
    2. Calcul efficace des armatures

    Déterminez facilement la quantité exacte d'armatures dont vous avez besoin pour vos fondations.

    Interface pour la vérification géotechnique selon l’Eurocode 7 via un module complémentaire
    3 Calcul géotechnique intégré

    Effectuez les vérifications géotechniques requises selon l'Eurocode 7 dans le module complémentaire.

    Rapport d’impression détaillé avec résultats visuels et numériques pour l’analyse des fondations en béton
    4 Des résultats complets et clairs

    Obtenez des résultats détaillés et compréhensibles avec une sortie visuelle et numérique claire pour une documentation complète.

    Boutique en ligne

    Configurez votre propre package de logiciels et trouvez les prix en ligne !

    • Famille de programmes RFEM 6
    • Famille de programmes RSTAB 9
    Vers la boutique en ligne

    Calculez votre prix

    1 400,00 USD
    +110,00 USD
    Pied de poteau
    Montant total 1 510,00 USD
    Logiciels de calcul de structures
    Dlubal Software SARL

    32, rue de Cambrai
    75019 Paris
    France

    +33 9 80 40 58 20 [email protected]
    Dlubal Software GmbH

    Am Zellweg 2
    93464 Tiefenbach
    Allemagne

    +49 9673 9203-0 [email protected]
    Solutions
    • Structures en béton armé
    • Structures acier
    • Structures en bois
    • Assemblages acier
    Produits
    • RFEM 6
    • RSTAB 9
    • RSECTION 1
    • RWIND 3
    Support technique
    • Foire aux Questions (FAQ)
    • Poser une question
    • Carte des charges de neige, des vitesses de vent et des charges sismiques
    • Contacter notre équipe commerciale
    Actualités
    • S’abonner à la newsletter
    • Actualités
    • Vue d'ensemble des événements Dlubal
    • Formations en ligne
    Ressources
    • Télécharger la version d’essai complète
    • Soumettre un projet client
    • Projets clients
    • Manuels en ligne
    Rejoindre l'équipe Dlubal
    Communauté Dlubal YouTube Facebook Pinterest TikTok Instagram
    © 2001-2026 Dlubal Software GmbH | Tous droits réservés
    Mentions légales
    À propos
    Plan du site
    Langue
    • Deutsch
    • English
    • Français
    • Español
    • Português
    • Italiano
    • Česky
    • Polski
    • Pусский
    • 中文(简体)