Community
    Accedi al tuo account

    Registrati all'extranet Dlubal per ottenere il massimo dal software e avere accesso esclusivo ai tuoi dati personali.

    Crea account
    Accedendo, accetti le Condizioni di utilizzo e vendita di Dlubal. Si prega di consultare la nostra Informativa sulla privacy e la nostra Informativa sui cookie.
    0
    Webshop
    Contatta il nostro team di vendita
    Lingua
    • Deutsch
    • English
    • Français
    • Español
    • Português
    • Italiano
    • Česky
    • Polski
    • Pусский
    • 中文(简体)
    • Settori
      • Struttura in calcestruzzo armato
      • Strutture in calcestruzzo precompresso
      • Strutture in acciaio
      • Strutture in legno
      • Strutture in muratura
      • Strutture leggere e in alluminio
      • Edifici
      • Strutture industriali
      • Tubazioni
      • Strutture a ponte
      • Gru e vie di corsa
      • Tralicci e piloni
      • Strutture di vetro
      • Tensostrutture e membrane
      • Strutture costituite da funi
      • Strutture laminate e a sandwich
      • Strutture temporanee
      • Ponteggi e scaffalature
      • Strutture offshore
      • Silo e serbatoi di stoccaggio
      • Impianti di energia rinnovabile
      • Strutture solari e sistemi di montaggio
      • Cantieri navali e corpi galleggianti
      • Tecnologia di trasporto
      • Strutture di perforazione
      • Piscine e parchi acquatici
      • Strutture container
      • Fondazioni su pali trivellati
      • Struttura di scale
      • Centrali energetiche
      • Strutture idrauliche in acciaio
      • Ingegneria meccanica
      • Strutture pneumatiche
      Aree di applicazione
      • Ingegneria strutturale
      • Analisi agli elementi finiti (FEA)
      • Simulazione del vento e generazione dei carichi del vento
      • Analisi delle tensioni
      • Analisi non lineare
      • Analisi di stabilità
      • Analisi di instabilità non lineare
      • Torsione da ingobbamento impedito
      • Analisi dinamica e sismica
      • Dinamica non lineare
      • Analisi pushover
      • Form-finding e modelli di taglio
      • Giunti acciaio
      • Building Information Modeling (BIM)
      • Sezioni piegate a freddo
      • Interazione terreno-struttura
      • Analisi di sistemi per facciate
      • Fondazioni e ingegneria geotecnica
      • Fasi costruttive
      • Protezione al fuoco
      Norme
      • Eurocodici (EC)
      • Norme tedesche (DIN)
      • Norme britanniche (BS EN, BS)
      • Norme Italiane (NTC)
      • Norme statunitensi
      • Norme canadesi (CSA)
      • Norme australiane (AS)
      • Norme svizzere (SIA)
      • Norme cinesi (GB, HK)
      • Norme indiane (IS)
      • Norme messicane (RCDF, CFE Sismo 15)
      • Norme russe (SP)
      • Norme sudafricane (SANS)
      • Norme brasiliane (NBR)
      Servizi online
      • Icona del menu superiore dello strumento Geo-Zone Tool Mappe per carico da neve, le velocità del vento e le zone sismiche.
      • Icona Calcolo cloud Calcoli cloud
      • Icona di Wiki di Analisi Strutturale Wiki di analisi strutturale
      • Icona delle proprietà di acciaio della sezione e le proprietà della sezione in legno Proprietà di sezione dei profili e delle sezioni in acciaio
      Verifica strutturale per impianto fotovoltaico

      Dlubal Software ti aiuta a creare e verificare qualsiasi sistema di montaggio solare. Lavora in modo efficiente con strutture in acciaio, alluminio e calcestruzzo in un unico ambiente.

      Esplora strumenti
      Strutture per impianti solari Strutture solari | Versione mobile
      API Dlubal

      Il nuovo servizio API di Dlubal (gRPC) ti offre un'interfaccia flessibile per il software di analisi strutturale basata su Python e C#, con accesso diretto all'intera gamma di prodotti Dlubal.

      Avvio con API
      Sfondo per il banner del menu principale API Sfondo per il banner del menu principale API
    • Icona rappresentante RFEM 6, un software di analisi agli elementi finiti. RFEM 6 L’unico software di analisi e progettazione strutturale di cui hai bisogno per i tuoi progetti

      RFEM 6 costituisce la base della famiglia di programmi modulari ed è utilizzato per definire strutture, materiali e azioni per strutture a piastre, pareti, gusci e aste, nonché per solidi ed elementi di contatto.

      Scopri di più
      Pulsante dico per l'attivazione della funzione Add-on
      • Analisi aggiuntive
      • Analisi dinamica
      • Soluzioni speciali
      • Verifica
      • Collegamenti
      Icona RSTAB 9 senza bordi RSTAB 9 Software iconico di analisi di telai e tralicci

      RSTAB 9 è un potente software di analisi e verifica per il calcolo di strutture 3D a travi, telai o capriate, che riflette lo stato dell’arte e aiuta gli ingegneri strutturali a soddisfare i requisiti dell’ingegneria civile moderna.

      Scopri di più
      Pulsante dico per l'attivazione della funzione Add-on
      • Analisi aggiuntive
      • Analisi dinamica
      • Soluzioni speciali
      • Verifica
      Icona RSECTION 1 senza bordo RSECTION 1 Calcoli di sezioni trasversali definiti dall'utente

      RSECTION supporta gli ingegneri strutturisti determinando le proprietà delle sezioni trasversali per i più diversi profili e consente un'analisi delle tensioni successiva.

      Per maggiori informazioni
      Icona di RWIND 3 senza bordi RWIND 3 Software CFD per la galleria del vento digitale

      RWIND 3 è una galleria del vento digitale per la simulazione dei flussi del vento attorno a qualsiasi geometria di edificio e per il calcolo dei carichi del vento sulle loro superfici.

      Per maggiori informazioni
      Icona API API di Dlubal La tua porta per la modellazione parametrica e l'automazione

      Il nuovo servizio API Dlubal (gRPC) offre un'interfaccia flessibile per il software di analisi strutturale basata su Python e C#, con accesso diretto all'intera gamma di prodotti Dlubal. Approfittate di un'integrazione fluida e potente nel vostro software Dlubal – ideale per la modellazione parametrica e compiti di ottimizzazione complessi.

      Scopri l'API
      Documentazione API API Documentation
      • Indice
      • Introduzione
      • Applicazioni
      • Oggetti del modello
      • Abbonamenti e prezzi
      • Esempi
      FEM per collegamenti in acciaio

      Progetta e analizza giunti in acciaio utilizzando CBFEM, conforme a EN 1993‑1‑8 e AISC 360, completamente integrato in RFEM 6 per flussi di lavoro strutturali più veloci e precisi.

      Scopri di più
      Collegamenti in acciaio Collegamenti in acciaio
      Geo-Zone Tool

      Il servizio online Dlubal fornisce mappe delle zone per la rapida determinazione dei carichi da neve, delle velocità del vento e dei dati sismici.

      VERIFICA DELLE ZONE DI CARICO
      Strumento di visualizzazione della zona geografica che mostra mappe di neve, vento e sismiche con illustrazioni per le valutazioni dei carichi ambientali. Illustrazione delle mappe delle zone geografiche di neve, vento e sismiche in una versione mobile che mostra varie regioni e dati.
      Prodotti obsoleti
    • Supporto tecnico
      • Domande frequenti (FAQ)
      • Knowledge Base
      • Caratteristiche del prodotto
      • Licensing
      • Fai una domanda
      • Il nostro team di supporto
      • Consigliaci una nuova funzione o un'idea per il programma
      • Domande frequenti su licenze e autorizzazioni
      • Segnalaci un problema o un bug del programma
      • Aggiornamenti del programma
      • Problemi del programma
      • Formule | La matematica è divertente!
      Corsi di formazione
      • Primi passi con RFEM
      • Primi passi con RSTAB
      • Formazione online
      • Formazione presso Dlubal
      • Formazione individuale
      • Video
      • Video di e-learning
      • Webinar - Impara online
      • Corsi online
      Servizio
      • Assistenza / Servizio gratuito
      • Extranet | Account
      • Contratto di servizio
      • Geo-Zone Tool per la determinazione dei carichi
      • Update e Upgrade
      • Versioni precedenti dei programmi
      Vendite
      • Webshop
      • Il nostro team di vendita
      • Contatta il nostro ufficio vendite
      • Prenota una demo online
      • Perché Dlubal Software?
      Assistente AI
      • Mia – la tua assistente AI 24/7
      • Scopri la tua assistente AI personale
      Assistenza e servizio gratuiti

      Hai bisogno di aiuto? Accedi a opzioni di supporto gratuite, tra cui assistenza AI disponibile 24/7, supporto via email e webinar.

      Scopri di più
      Assistenza tecnica e servizio gratuiti Assistenza tecnica e servizi gratuiti
      Trova risposte rapide

      Trova risposte rapide alle domande comuni sul software Dlubal. Cerca o filtra centinaia di FAQ per risolvere i problemi in poco tempo.

      Visualizza FAQ
      Domande frequenti (FAQ) FAQ | Versione per dispositivi mobili
    • News
      • Ultime notizie
      • Nuove caratteristiche del prodotto
      • Iscrizione alla Newsletter
      • Nuovi prodotti rilasciati
      • Dlubal Blog
      Corsi di formazione
      • Corso di formazione online
      • Corso di formazione personalizzato
      Eventi
      • Panoramica eventi
      • Fiere e Congressi
      • Webinar
      Corsi online – Master in ingegneria

      Unisciti ai leader del settore ed esplora soluzioni nell'ingegneria strutturale e nel software. Migliora le tue competenze con le nostre sessioni dal vivo!

      Vedi i prossimi webinar
      3D FEA Software RFEM 6 | First Steps Immagine del menu del banner | News Webinar | Versione Mobile
      Sblocca la potenza dell’innovazione

      Scopri strumenti all'avanguardia e miglioramenti progettati per potenziare il tuo flusso di lavoro ingegneristico.

      Scopri le nuove funzioni
      Explore New Features Immagine da banner di menu | News_ProductFeatures | Versione per dispositivi mobili
    • Scarica la versione completa

      Vuoi provare le capacità dei programmi Dlubal Software? Hai l'opportunità di farlo! La versione completa gratuita di 90 giorni ti consente di testare a fondo tutti i nostri programmi.

      Avvia subito la versione di prova
      Dlubal Free Zone

      Nella sezione gratuita Dlubal è possibile accedere a webinar, articoli e versioni di prova del software– tutto gratuitamente e raccolto in un unico luogo.

      Maggiori informazioni
      Esempi
      • Modelli di analisi strutturale da scaricare
      • Invia il tuo modello di analisi strutturale
      • Esempi introduttivi e tutorial
      • Esempi di verifica
      • Panoramica immagini
      Documenti
      • Manuali online
      • Manuali
      • Volantini, brochure e certificati
      Riferimenti
      • Progetti clienti
      • Perché inviare il tuo progetto?
      • Come presentare un progetto cliente?
      • Invia il tuo progetto
      Modelli gratuiti da scaricare

      Esplora migliaia di modelli strutturali pronti all'uso. Scarica, adatta e usali come modelli per accelerare il tuo processo di progettazione.

      Scopri modelli
      Modelli di analisi strutturale da scaricare Modelli gratuiti da scaricare | Versione mobile
      Free Zone di Dlubal

      Ricevi assistenza esperta ogni volta che ne hai bisogno. Goditi l'assistenza AI gratuita, il supporto via email, i webinar dal vivo e i servizi premium per gli utenti del Service Contract Pro.

      Ricevi assistenza
      Assistenza e servizio gratuiti Assistenza e servizio gratuiti | Versione mobile
    • E-learning
      • RFEM 6 per principianti
      • RFEM 6 per studenti
      • Programmazione con RFEM 6 e Python
      • RFEM 6 con Rhino e Grasshopper
      • RFEM 5 per principianti
      • Modellazione con RFEM 5
      • Video di apprendimento per studenti di analisi strutturale
      • Tutorial rapidi per i programmi Dlubal
      • I migliori trucchi e consigli in RFEM
      • Registrazioni dei corsi di formazione online di Dlubal
      • Webinar registrati
      Studenti e scuole
      • Software di analisi strutturale gratuito per studenti
      • Richiedi o rinnova la versione Student gratuita
      • Richiesta per licenza insegnante gratuita
      • Inviaci la tua tesi
      • Perché inviarci la tua tesi?
      • Tesi di laurea con il software Dlubal
      • Software di analisi strutturale gratuito per scuole
      • Richiedi il pacchetto School
      • Formazione introduttiva gratuita nella tua università
      • Richiedi la tua formazione
      Knowledge Base
      • Primi passi con RFEM
      • Video
      • Manuali online
      • Wiki di analisi strutturale
      • Knowledge Base
      • Domande frequenti (FAQ)
      Infotainment
      • Podcast
      • Dlubal Blog
      • Introduzione all'analisi strutturale e alla progettazione
      Primi pass con RFEM 6

      Primi passi con RFEM 6 e scopri quanto velocemente puoi modellare e calcolare. Personalizza con i componenti aggiuntivi per avere ancora più possibilità.

      Inizia
      3D FEA Software RFEM 6 | First Steps Immagine del menu del banner | News Webinar | Versione Mobile
      Software di analisi strutturale gratuito per studenti

      Migliaia di studenti in tutto il mondo beneficiano già del software Dlubal. Goditi l'accesso gratuito, la formazione e il supporto di esperti durante i tuoi studi.

      Ottieni licenza gratuita
      Software di analisi strutturale per studenti software di analisi strutturale gratuito per studenti
    • Chi siamo
      • Storia e fatti
      • Filosofia aziendale
      • Perché Dlubal Software?
      • Confronto prodotti
      • Politica della qualità
      • Il nostro team
      Contatti
      • Sedi Dlubal nel mondo
      • Rivenditori autorizzati Dlubal
      Riferimenti
      • Recensioni clienti
      • Progetti clienti
      • Casi studio
      • Perché inviare il tuo progetto?
      • Esempi di verifica
      • La tua recensione
      • Partecipazione a progetti di ricerca
      Clienti

      Ti presentiamo i nostri clienti che utilizzano Dlubal Software per i loro progetti. Scopri come i nostri clienti di tutto il mondo utilizzano strumenti avanzati per l'analisi statica e dinamica per implementare soluzioni innovative nella progettazione e nell'ingegneria.

      Scopri i nostri clienti
      Costruire il successo insieme

      Scopri come gli ingegneri leader in tutto il mondo si affidano alle nostre soluzioni per elevare i loro progetti con noi.

      Vedi i nostri clienti
      See Our Customers Immagine dallo strumento Menu banner | Company_OurCustomers_Mobile
      Incontra gli esperti

      I nostri ingegneri dedicati sono qui per assisterti nella modellazione, progettazione e nelle sfide tecniche, in qualsiasi momento e ovunque.

      Collegarsi con l'assistenza
      Our Team Immagine del banner di menu | Azienda_Il nostro team | Versione mobile
    • Carriera
      • Lavori
      • Team
      • Blog del team
      • Approfondimenti
      Opportunità di lavoro
      • Tutte le offerte di lavoro
      • Sviluppo del prodotto
      • Assistenza clienti
      • Vendite
      • Marketing
      • Sviluppo del software
      • Amministrazione
      • Stagisti
      • Altri
      Team
      • Sviluppo dei prodotti
      • Servizio clienti
      • Vendite
      • Marketing
      • Sviluppo software
      • Amministrazione
      Perché Dlubal?
      • Cultura aziendale
      • Vantaggi per dipendenti
      Costruisci il tuo futuro con noi

      Scopri come il nostro team modella il futuro dell'ingegneria. Vivi l'innovazione, la crescita e sfide entusiasmanti.

      Carriera in Dlubal Immagine dal Menu Banner | Carriera in Dlubal Mobile
      Trova il lavoro dei tuoi sogni

      Unisciti a un leader globale nel software di ingegneria e porta la tua carriera a nuovi livelli.

      Scopri le posizioni aperte
      All Open Positions Immagine Banner Menu | Posizioni aperte mobile
    • Webshop
    Prodotti principali
    Icona rappresentante RFEM 6, un software di analisi agli elementi finiti.
    RFEM 6
    Icona RSTAB 9 senza bordi
    RSTAB 9
    Icona di RWIND 3 senza bordi
    RWIND 3
    Icona RSECTION 1 senza bordo
    RSECTION
    Servizi online
    Icon dello strumento GeoZone
    Geo-Zone Tool
    Proprietà della sezione
    Proprietà delle sezioni
    Icona API
    API
    Icona Calcolo cloud
    Calcolo su cloud
    Modelli scaricabili
    Modelli da scaricare
    Icona della community di Dlubal
    Community di Dlubal
    Icona degli articoli della Knowledge Base
    Knowledge Base
    Webinar online
    Webinar
    Accedi al tuo account

    Registrati all'extranet Dlubal per ottenere il massimo dal software e avere accesso esclusivo ai tuoi dati personali.

    Login Crea account
    Prova gratuita di 90 giorni
    Accedi al tuo account

    Registrati all'extranet Dlubal per ottenere il massimo dal software e avere accesso esclusivo ai tuoi dati personali.

    Login Crea account
    • Prodotti
    • Analisi agli Elementi Finiti (FEA)
    • Add-on per RFEM 6
    • Verifica
    • Fondazioni di calcestruzzo
    Icona RFEM 6 | Dlubal Software Fondazioni di calcestruzzo
    Manuali online
    • Manuale online di RFEM 6 | Fondazioni di calcestruzzo
    • Tutorial per RFEM 6
    • RFEM 6 / RSTAB 9 | Primi passi
    }
    calculator icon
    Prezzi
    Add-On Fondazioni di calcestruzzo per RFEM 6
    • Fondazione in calcestruzzo
    • Armatura
    • Strutture in calcestruzzo

    Add-On Fondazioni di calcestruzzo per RFEM 6

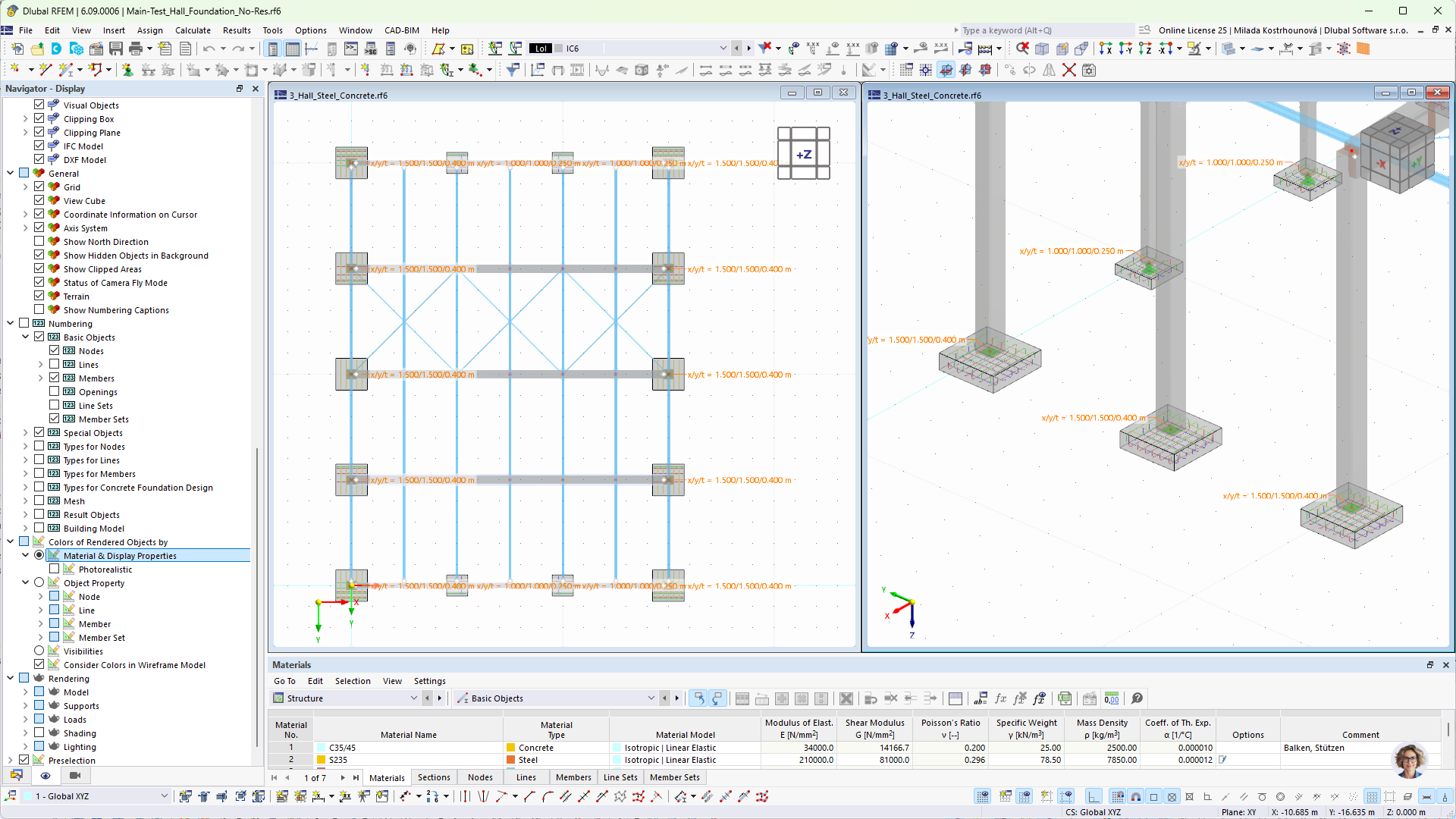
    L'add-on Fondazioni in calcestruzzo per RFEM 6 consente la progettazione di platee di fondazione armate e non armate, nonché fondazioni a bicchiere e a blocco. Per le fondazioni a bicchiere e a blocco, è possibile considerare superfici interne lisce o ruvide.

    L'add-on offre un inserimento intuitivo, una visualizzazione di alta qualità, calcoli conformi agli Eurocodici e possibilità di controllo dettagliate. Consente una progettazione rapida ed efficiente delle fondazioni.

    Add-on Fondazioni in calcestruzzo | Immagine del dispositivo di scorrimento

    Nuovo add-on Fondazioni in calcestruzzo per RFEM 6

    Presentiamo: la vostra soluzione All-in-One per un dimensionamento delle fondazioni senza lacune! Il potente add-on Fondazioni in calcestruzzo vi supporta nel dimensionamento sia delle piastre di fondazione armate e non armate che delle fondazioni a bicchiere e a blocco. È completamente integrato in RFEM 6. Grazie a ciò, l'add-on acquisisce automaticamente le forze interne determinate in RFEM e le aggiorna in caso di modifiche al modello complessivo.

    L'add-on è progettato per l'efficienza ed effettua tutte le verifiche pertinenti come punzonamento, scorrimento, ecc.

    Sia nell'edilizia, nei progetti industriali o nella ricerca con RFEM 6 e l'add-on Fondazioni in calcestruzzo potete razionalizzare i vostri flussi di lavoro, risparmiare tempo e ottenere risultati precisi e affidabili.

    Fondazione in calcestruzzo modellata come blocco parametrico in RFEM 6
    Fondazione in calcestruzzo modellata come blocco parametrico in RFEM 6

    Estendi la tua analisi strutturale con la verifica delle fondazioni!

    Immagine di fondazione in calcestruzzo con dettagli delle armature per una migliore distribuzione del carico

    Sblocca tutto il potenziale della tua verifica delle fondazioni!

    • Progettazione di piastre di fondazione armate e non armate e di fondazioni a blocchi
    • Visualizzazione grafica con rendering
    • Progetti geotecnici secondo l'Eurocodice 7 (progetto di rottura del terreno, progetto di scorrimento, nonché verifica allo stato di equilibrio, stato limite di sollevamento, carico altamente eccentrico, carico altamente eccentrico nel nucleo)
    • Output grafico e tabellare della quantità di armatura richiesta
    • Verifica del calcestruzzo armato secondo l'Eurocodice 2 (progetto a flessione, a punzonamento, armature minime)
    • Verifiche dettagliate negli stati limite ultimi e di esercizio, nonché per i dettagli strutturali
    • Output delle verifiche con formule → nessuna scatola nera, ma trasparenza e tracciabilità!
    Scopri le funzionalità principali

    Scopri le potenti funzionalità dell’add-on RFEM 6, che semplificano l’analisi e la verifica delle fondazioni e garantiscono la massima sicurezza e prestazioni.

    • Fondazioni per strutture ibride

      Sia che si tratti di una colonna in acciaio, calcestruzzo, legno ecc., le fondazioni possono essere definite sotto colonne di qualsiasi materiale. Sono possibili anche fondazioni sotto colonne di componenti di superficie.

    • Norma completa Eurocodice

      Garantite che i vostri progetti siano conformi agli Eurocodici 2 e 7, con verifiche dettagliate del calcestruzzo e geotecniche, incluse punzonamento, stabilità globale, ecc.

    • Impostazioni di verifica personalizzabili

      Adatta i parametri di verifica per soddisfare requisiti specifici del progetto, fornendo così flessibilità e maggiore controllo sui risultati della verifica e sulle verifiche stesse.

    • Integrazione completa in RFEM 6
      Il funzionamento senza interruzioni all'interno di RFEM 6 rende superfluo il software di terze parti, riducendo gli errori e risparmiando tempo. Il modulo aggiuntivo riconosce automaticamente le dimensioni dell'oggetto da supportare.
    Struttura in acciaio dettagliata su solide fondazioni in calcestruzzo con elementi di collegamento precisi
    Illustrazione di fondazioni in calcestruzzo precise e verifiche geotecniche dettagliate conforme all’Eurocodice 2 e 7
    Immagine di un capannone in calcestruzzo con solide fondazioni in calcestruzzo armato
    Struttura in acciaio dettagliata su solide fondazioni in calcestruzzo con elementi di collegamento precisi
    Icona delle recensioni dei clienti

    Ascolta cosa dicono i nostri clienti sui prodotti Dlubal!

    Icona del supporto

    Scopri Dlubal dal vivo e organizza una demo online del prodotto!

    Scarica icona

    Prova la versione completa gratuitamente per 90 giorni

    Procedura

    • Creazione della struttura completa
    • Creazione e assegnazione di una nuova fondazione a un vincolo del nodo
    • Definizione dei dati di input nell'interfaccia utente intuitiva (RFEM offre la visualizzazione grafica istantanea della topologia)
    • Controllo delle configurazioni desiderate per la verifica (RFEM fornisce le impostazioni comuni come predefinite)
    • Avvio del calcolo
    • Valutazione dei risultati in forma grafica, tabellare e nei dettagli
    • Stampa di tabelle dei risultati, grafica (opzionale con armatura, stampa multipla) e formule di verifica (con riferimento alle equazioni nella norma) nella relazione di calcolo
    Fondazioni in calcestruzzo modellate digitalmente nel modello di calcolo RFEM 6
    Interfaccia di RFEM 6 con un modello di struttura a telaio in calcestruzzo armato con fondazioni
    I tuoi bonus
    Capannone in cemento armato con fondazioni integrate e elementi strutturali dettagliati
    1. Soluzione all-in-one

    Funziona perfettamente all'interno dell'ambiente RFEM 6, quindi non sono necessari programmi esterni.

    Asta in calcestruzzo accoppiata con una fondazione armata per determinare correttamente la quantità di armatura
    2. Verifica efficiente dell'armatura

    Determina facilmente la quantità esatta di armatura necessaria per le tue fondazioni.

    Interfaccia per l'esecuzione di verifiche geotecniche secondo l'Eurocodice 7 con add-on
    3. Progettazione geotecnica integrata

    Esegui le verifiche geotecniche richieste secondo l'Eurocodice 7 nell'add-on.

    Report di calcolo dettagliato con output visivi e numerici per analisi di fondazioni in calcestruzzo
    4. Risultati completi e chiari

    Ottieni risultati dettagliati e trasparenti con una chiara visualizzazione visiva e numerica per una documentazione senza interruzioni.

    Webshop

    Personalizza il tuo pacchetto di programmi individuale e scopri tutti i prezzi online!

    • Famiglia RFEM
    • Famiglia RSTAB
    Vai al webshop

    Calcola il tuo prezzo

    1.400,00 USD
    +110,00 USD
    Basamento di colonna
    Importo totale 1.510,00 USD
    Software di analisi e progettazione strutturale
    Dlubal Software Srl

    Via Laura Bassi Veratti, 11/2D
    40137 Bologna
    Italia

    +39 051 95 25 443 [email protected]
    Dlubal Software GmbH

    Am Zellweg 2
    93464 Tiefenbach
    Germania

    +49 9673 9203-0 [email protected]
    Soluzioni
    • Struttura in calcestruzzo armato
    • Strutture in acciaio
    • Strutture in legno
    • Giunti acciaio
    Prodotti
    • RFEM 6
    • RSTAB 9
    • RSECTION 1
    • RWIND 3
    Assistenza tecnica
    • Domande frequenti (FAQ)
    • Fai una domanda
    • Mappe per carico da neve, le velocità del vento e le zone sismiche.
    • Contatta il nostro ufficio vendite
    News
    • Iscrizione alla Newsletter
    • Ultime notizie
    • Panoramica eventi
    • Corso di formazione online
    Risorse
    • Versione trial completa gratuita
    • Invia il tuo progetto
    • Progetti clienti
    • Manuali online
    Unisciti a Dlubal
    Comunità Dlubal YouTube Facebook Pinterest TikTok Instagram
    © 2001-2026 Dlubal Software Srl | Tutti i diritti riservati
    Note legali
    Chi siamo
    Sitemap
    Lingua
    • Deutsch
    • English
    • Français
    • Español
    • Português
    • Italiano
    • Česky
    • Polski
    • Pусский
    • 中文(简体)