Community
    Iniciar sessão na sua conta

    Registe-se no extranet da Dlubal para aproveitar ao máximo o software e ter acesso exclusivo aos seus dados pessoais.

    Criar conta
    Ao iniciar sessão, concorda com as Condições de utilização e venda da Dlubal. Consulte a nossa Nota de privacidade, a nossa Nota sobre cookies.
    0
    Loja online
    Contatar Equipe de Vendas
    Idioma
    • Deutsch
    • English
    • Français
    • Español
    • Português
    • Italiano
    • Česky
    • Polski
    • Pусский
    • 中文(简体)
    • Áreas
      • Estruturas de betão armado
      • Estruturas de betão pré-esforçado
      • Estruturas de aço
      • Estruturas de madeira
      • Estruturas de alvenaria
      • Estruturas de alumínio e construção leve
      • Edifícios
      • Estruturas industriais
      • Condutas
      • Construção de pontes
      • Gruas e pontes rolantes
      • Torres e mastros
      • Estruturas de vidro
      • Estruturas de membrana tracionada
      • Estruturas de cabos tracionados
      • Estruturas laminadas e sanduíche
      • Estruturas temporárias
      • Estruturas de andaimes e prateleiras
      • Estruturas offshore
      • Silos e tanques de armazenamento
      • Estruturas de energias renováveis
      • Estruturas solares e sistemas de montagem
      • Construção naval e corpos flutuantes
      • Tecnologia de transporte
      • Estruturas e mastros de perfuração
      • Piscinas e parques aquáticos
      • Estruturas de contentores
      • Estacas escavadas por broca
      • Estruturas de escadas
      • Centrais elétricas
      • Estruturas hidráulicas em aço
      • Engenharia mecânica
      • Estruturas pneumáticas
      Áreas de aplicação
      • Planeamento estrutural
      • Cálculos de elementos finitos (MEF)
      • Simulação de vento e geração de cargas de vento
      • Análise de tensões
      • Cálculos não lineares
      • Análise de estabilidade
      • Análise de encurvadura não linear
      • Análises de torção com empenamento
      • Análise dinâmica e sísmica
      • Dinâmica não linear
      • Análise pushover
      • Form-finding e padrões de corte
      • Ligações de aço
      • Planeamento orientado por BIM
      • Secções formadas a frio
      • Interação solo-estrutura
      • Cálculo de fachadas
      • Fundações e geotecnia
      • Fases de construção
      • Resistência ao fogo
      Normas
      • Eurocódigos (EC)
      • Normas alemãs (DIN)
      • Normas britânicas (BS EN, BS)
      • Normas italianas (NTC)
      • Normas dos EUA
      • Normas canadianas (CSA)
      • Normas australianas (AS)
      • Normas suíças (SIA)
      • Normas chinesas (GB, HK)
      • Normas indianas (IS)
      • Normas mexicanas (RCDF, CFE Sismo 15)
      • Normas russas (SP)
      • Normas sul-africanas (SANS)
      • Normas brasileiras (NBR)
      Serviços online
      • Ícone do menu superior da ferramenta Geo-Zone Mapas de sobrecarga de neve, velocidade do vento e carga sísmica
      • Ícone de cálculo na nuvem Cálculos na nuvem
      • Ícone de Wiki de análise estrutural Wiki de análise estrutural
      • Ícone de propriedades da secção de aço e madeira Propriedades de secções transversais de perfis de aço e secções transversais
      Dimensionamento estrutural para sistemas fotovoltaicos

      A Dlubal Software ajuda você a criar e verificar qualquer sistema de montagem solar. Trabalhe de forma eficiente com estruturas de aço, alumínio e concreto em um único ambiente.

      Explorar ferramentas
      Estruturas solares Estruturas solares | Versão móvel
      API Dlubal

      O novo serviço de API da Dlubal (gRPC) oferece uma interface flexível para o software de análise estrutural baseada em Python e C#, com acesso direto a toda a gama de produtos Dlubal.

      Iniciar com API
      Fundo para o banner do menu principal da API Fundo para o banner do menu principal da API
    • Ícone a representar o RFEM 6, uma aplicação de software de análise de elementos finitos. RFEM 6 O único software de análise de elementos finitos de que precisa para os seus projetos

      O RFEM é a base de uma família de programas composta por módulos e serve para definir estruturas, materiais e cargas para sistemas estruturais constituídos por lajes, paredes, cascas e barras, bem como sólidos e elementos de contacto.

      Mais informação
      Ícone de alternância de módulo Módulos
      • Análises adicionais
      • Análises dinâmicas
      • Soluções especiais
      • Dimensionamento
      • Ligações
      Ícone de RSTAB 9 sem limites RSTAB 9 O programa de estruturas de barras icónico

      O RSTAB 9 é um programa de cálculo de estruturas de barras 3D que reflete o estado atual da tecnologia e ajuda os engenheiros de estruturas a cumprir os requisitos da engenharia civil moderna.

      Mais informação
      Ícone de alternância de módulo Módulos
      • Análises adicionais
      • Análises dinâmicas
      • Soluções especiais
      • Dimensionamento
      Ícone de RSECTION 1 sem limites RSECTION 1 Cálculos de secções transversais personalizados

      O RSECTION apoia engenheiros de estruturas ao determinar as propriedades de secções transversais para uma ampla variedade de secções transversais e permite uma análise de tensões subsequente.

      Mais informação
      Ícone de RWIND 3 sem limites RWIND 3 Software CFD para túneis de vento digitais

      O RWIND 3 é um túnel de vento digital para simulação de fluxos de vento em torno de quaisquer geometrias de edifícios e para cálculo das cargas de vento nas suas superfícies.

      Mais informação
      Ícone da API API Dlubal A sua porta de entrada para modelação paramétrica e automação

      O novo serviço API Dlubal (gRPC) oferece uma interface flexível para o software de cálculo estrutural com base em Python e C#, com acesso direto a toda a gama de produtos Dlubal. Beneficie de uma integração perfeita e poderosa no seu software Dlubal – ideal para modelação paramétrica e tarefas complexas de otimização.

      Descobrir a API
      Documentação da API Documentação da API
      • Índice
      • Primeiros passos
      • Aplicações
      • Objetos de modelo
      • Assinaturas e preços
      • Exemplos
      AEF para ligações de aço

      Projete e analise conexões de aço utilizando CBFEM, de acordo com EN 1993‑1‑8 e AISC 360, totalmente integrado no RFEM 6 para fluxos de trabalho estruturais mais rápidos e precisos.

      Saber mais
      Ligações de aço Ligações de aço
      Ferramenta de Zona Geo

      O serviço online da Dlubal fornece mapas de zonas para a determinação rápida de cargas de neve, velocidades do vento e dados sísmicos.

      Verificar zonas de carga
      Ferramenta de visualização de zona geográfica exibindo mapas de neve, vento e sísmicos com ilustrações para avaliações de cargas ambientais. Ilustração de mapas de zonas geográficas de neve, vento e sismo numa versão móvel, mostrando várias regiões e dados.
      Produtos desatualizados
    • Apoio
      • Perguntas mais frequentes (FAQ)
      • Base de dados de conhecimento
      • Funções do programa
      • Licenciamento
      • Fazer uma pergunta
      • A nossa equipa de apoio
      • Enviar proposta de função desejada ou ideia
      • Resolução de problemas para licenciamento e autorização
      • Reportar problema ou erro do programa
      • Atualizações dos programas
      • Problemas com o programa
      • Fórmulas | A matemática é divertida!
      Formação
      • Primeiros passos com o RFEM
      • Primeiros passos com o RSTAB
      • Formação online
      • Formação na Dlubal
      • Formação individual
      • Vídeos
      • Vídeos de e-learning
      • Seminários web
      • Cursos online
      Serviço
      • Apoio/serviço gratuito
      • Extranet | A minha conta
      • Contrato de serviço
      • Ferramenta Geo-Zone para a determinação de carga
      • Atualizações e novas versões
      • Versões anteriores dos programas
      Vendas
      • Loja online
      • A nossa equipa de vendas
      • Contactar equipa de vendas
      • Agendar demonstração online de produto
      • Porquê a Dlubal Software?
      Assistente de apoio baseada em IA
      • Mia – A sua assistente de IA a toda a hora
      • Descubra a sua assistente de IA pessoal
      Apoio e serviço gratuitos

      Precisa de ajuda? Acesse as opções de suporte gratuitas, incluindo assistência de IA 24/7, suporte por e-mail e webinars.

      Saiba mais
      Apoio técnico gratuito e serviço Suporte técnico gratuito e serviço
      Encontre respostas rapidamente

      Encontre respostas rápidas para perguntas comuns sobre o software Dlubal. Pesquise ou filtre centenas de FAQ para resolver problemas rapidamente.

      Ver FAQ
      Perguntas mais frequentes FAQ | Versão móvel
    • Novidades
      • Notícias atuais
      • Novas funções do produto
      • Subscrever a newsletter
      • Novos programas
      • Dlubal Blog
      Fromações
      • Formações online
      • Formação individual
      Eventos
      • Vista geral de eventos
      • Feiras e seminários
      • Seminários web
      Mestrado em Engenharia com seminários web

      Junte-se aos líderes do setor e explore soluções em engenharia estrutural e software. Aprimore suas habilidades com nossas sessões ao vivo!

      Ver próximos seminários web
      3D FEA Software RFEM 6 | First Steps Imagem de banner de menu | Seminários web de notícias | Versão móvel
      Descubra o poder da inovação

      Descubra ferramentas de ponta e aprimoramentos projetados para impulsionar seu fluxo de trabalho em engenharia.

      Explorar novas funções
      Explore New Features Imagem de menu de faixa | News_ProductFeatures | Versão móvel
    • Download de versão completa

      Gostaria de experimentar as capacidades dos programas da Dlubal Software? Esta é a sua oportunidade! Com a versão completa gratuita de 90 dias, pode testar exaustivamente todos os nossos programas.

      Iniciar versão de teste agora
      Área gratuita da Dlubal

      No espaço gratuito da Dlubal, tem acesso a seminário web, artigos e oportunidades de teste do software – tudo gratuito e organizado num único lugar.

      Mais informação
      Exemplos
      • Modelos estruturais gratuitos para download
      • Submeter modelo estrutural
      • Exemplos introdutórios e tutoriais
      • Exemplos de verificação
      • Vista geral de imagens
      Documentos
      • Manuais online
      • Manuais
      • Folhetos, brochuras e certificados
      Referências
      • Projetos de clientes
      • Porquê enviar o seu projeto de cliente?
      • Como enviar um projeto de cliente?
      • Enviar projeto
      Modelos grátis para download

      Explore milhares de modelos estruturais prontos para uso. Baixe, adapte e use-os como templates para acelerar seu processo de design.

      Descobrir modelos
      Modelos de análise estrutural para download Modelos gratuitos para download | Versão móvel
      Espaço gratuito da Dlubal

      Obtenha ajuda especializada sempre que precisar. Aproveite a assistência gratuita de IA, suporte por e-mail, webinars ao vivo e serviços premium para utilizadores do Contrato de Serviço Pro.

      Obter suporte
      Apoio técnico e serviço gratuitos Suporte técnico e serviço gratuitos | Versão para dispositivos móveis
    • E-learning
      • RFEM 6 para iniciantes
      • RFEM 6 para estudantes
      • Programação com RFEM 6 e Python
      • RFEM 6 com Rhino e Grasshopper
      • RFEM 5 para iniciantes
      • Modelar com o RFEM 5
      • Vídeos de aprendizagem de cálculo estrutural para estudantes
      • Vídeos tutoriais curtos para os programas Dlubal
      • As melhores dicas e sugestões no RFEM
      • Formações online gravadas da Dlubal
      • Seminários web gravados da Dlubal
      Estudantes e estabelecimentos de ensino
      • Software de cálculo estrutural gratuito para estudantes
      • Pedir ou prolongar versão de estudante gratuita
      • Solicitar versão gratuita para professores
      • Submeter tese de final de curso
      • Porquê enviar-nos a sua tese de final de curso?
      • Teses de final de curso com software de análise estrutural Dlubal
      • Software de cálculo estrutural gratuito para estabelecimentos de ensino superior
      • Solicitar pacote de estabelecimento de ensino
      • Formação introdutória gratuita para estabelecimentos de ensino superior
      • Solicitar data para formação
      Plataforma de conhecimento
      • Primeiros passos com o RFEM
      • Vídeos
      • Manuais online
      • Wiki de cálculo estrutural
      • Base de dados de conhecimento
      • Perguntas mais frequentes (FAQ)
      Informação e entretenimento
      • Podcast
      • Dlubal Blog
      • Introdução ao planeamento estrutural
      Primeiros passos com o RFEM 6

      Dê seus primeiros passos com o RFEM 6 e descubra como você pode modelar e calcular rapidamente. Personalize com complementos para ainda mais possibilidades.

      Primeiros passos
      3D FEA Software RFEM 6 | First Steps Imagem de banner de menu | Seminários web de notícias | Versão móvel
      Software de análise estrutural gratuito para estudantes

      Milhares de estudantes em todo o mundo já se beneficiam do Dlubal Software. Aproveite o acesso gratuito, treinamento e suporte especializado durante os seus estudos.

      Obter licença gratuita
      Software de análise estrutural gratuito para estudantes Software de análise estrutural gratuito para estudantes
    • Sobre nós
      • História e factos
      • Filosofia da empresa
      • Porquê a Dlubal Software?
      • Comparação de produtos
      • Política de qualidade
      • A nossa equipa
      Contacto
      • Escritórios da Dlubal no mundo
      • Revendedor autorizado da Dlubal
      Referências
      • Comentários de utilizadores
      • Projetos de clientes
      • Estudos de caso
      • Porquê enviar o seu projeto?
      • Exemplos de verificação
      • O seu comentário
      • Participação em projetos de investigação
      Os nossos clientes

      Apresentamos clientes que realizaram os seus projetos com o software da Dlubal. Saiba como clientes nossos de todo o mundo implementaram soluções inovadoras na construção e engenharia utilizando ferramentas avançadas para análises estruturais e dinâmicas.

      Conheça os nossos clientes
      Construir o sucesso em conjunto

      Descubra como engenheiros líderes ao redor do mundo confiam em nossas soluções para elevar seus projetos conosco.

      Veja os nossos clientes
      See Our Customers Imagem de faixa de menu | Company_OurCustomers_Mobile
      Conheça os especialistas

      Nossos engenheiros dedicados estão aqui para ajudá-lo com modelagem, design e desafios técnicos—em qualquer momento, em qualquer lugar.

      Ligar ao suporte
      Our Team Imagem de faixa de menu | Empresa_NossaEquipe | Versão móvel
    • Carreira
      • Empregos
      • Equipas
      • Blogue de colaboradores
      • Informação
      Empregos
      • Todas as ofertas de emprego
      • Desenvolvimento de produtos
      • Apoio ao cliente
      • Vendas
      • Marketing
      • Desenvolvimento de software
      • Administração
      • Estagiários
      • Outros
      Equipas
      • Desenvolvimento de produtos
      • Apoio ao cliente
      • Vendas
      • Marketing
      • Desenvolvimento de software
      • Administração
      Porquê escolher a Dlubal?
      • Cultura empresarial
      • Vantagens para colaboradores
      Construa o seu futuro connosco

      Revele como a nossa equipe molda o futuro da engenharia. Experimente inovação, crescimento e desafios emocionantes.

      Carreira na Dlubal Imagem de banner do menu | Carreira na Dlubal Móvel
      Encontre o seu trabalho de sonho

      Junte-se a um líder global em software de engenharia e leve sua carreira a novos patamares.

      Explore vagas em aberto
      All Open Positions Imagem de faixa de menu | Posições abertas móveis
    • Loja online
    Produtos principais
    Ícone a representar o RFEM 6, uma aplicação de software de análise de elementos finitos.
    RFEM 6
    Ícone de RSTAB 9 sem limites
    RSTAB 9
    Ícone de RWIND 3 sem limites
    RWIND 3
    Ícone de RSECTION 1 sem limites
    RSECTION
    Serviços online
    Ícone da ferramenta Geo-Zone Tool
    Ferramenta de geolocalização
    Propriedades de secção
    Propriedades da secção transversal
    Ícone da API
    API
    Ícone Cálculo em nuvem
    Cálculo na nuvem
    Modelos para download
    Modelos disponíveis para download
    Ícone da comunidade Dlubal
    Comunidade Dlubal
    Ícone de artigos da base de dados de conhecimento
    Base de dados de conhecimento
    Seminários web online
    Seminários web
    Iniciar sessão na sua conta

    Registe-se no extranet da Dlubal para aproveitar ao máximo o software e ter acesso exclusivo aos seus dados pessoais.

    Iniciar sessão Criar conta
    Teste gratuito de 90 dias
    Iniciar sessão na sua conta

    Registe-se no extranet da Dlubal para aproveitar ao máximo o software e ter acesso exclusivo aos seus dados pessoais.

    Iniciar sessão Criar conta
    • Produtos
    • Análise de elementos finitos (AEF)
    • Módulos para o RFEM 6
    • Dimensionamento
    • Fundações de betão
    Ícone do RFEM 6 | Dlubal Software Fundações de betão
    Manuais online
    • Manual online do RFEM 6 | Fundações de betão
    • Tutorial para o RFEM 6
    • RFEM 6 / RSTAB 9 | Primeiros passos
    }
    calculator icon
    Preços
    Módulo Fundações de betão para o RFEM 6
    • Fundação de betão
    • Armadura
    • Estruturas de betão

    Módulo Fundações de betão para o RFEM 6

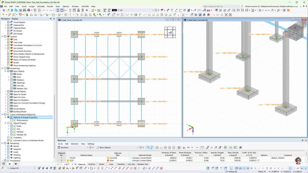
    O módulo Fundações de betão para o RFEM 6 permite o dimensionamento de lajes de fundação com e sem armadura, bem como de fundações de encaixe e ensoleiramento. Para as fundações de encaixe e ensoleiramento, é possível considerar as partes interiores lisas ou rugosas dos encaixes.

    O módulo oferece uma entrada intuitiva, visualização de alta qualidade, cálculos em conformidade com o Eurocódigo e possibilidades detalhadas de controlo. Permite um dimensionamento rápido e eficiente de fundações.

    Módulo Fundações de betão | Imagem do cursor

    Novo módulo Fundação de betão para o RFEM

    Apresentamos: a sua solução tudo-em-um para o dimensionamento completo de fundações! O poderoso módulo Fundações de betão apoia-o no dimensionamento tanto de lajes de fundação armadas e não armadas como de fundações de encaixe e ensoleiramento. Está totalmente integrado no RFEM 6. Com isso, o módulo adota automaticamente os esforços internos determinados no RFEM e atualiza-os quando houver alterações no modelo geral.

    O módulo foi projetado tendo em conta a eficácia e realiza todas as verificações relevantes, como punção, deslizamento, etc.

    Seja em edificações, projetos industriais ou pesquisa – com o RFEM 6 e o módulo Fundações de Betão, pode racionalizar os seus fluxos de trabalho, economizar tempo e obter resultados precisos e confiáveis.

    Fundação de betão modelada como bloco paramétrico no RFEM 6
    Fundação de betão modelada como bloco paramétrico no RFEM 6

    Amplie os seus cálculos estruturais com o dimensionamento de fundações!

    Imagem de fundação de betão com detalhe de armadura visível para melhor distribuição de carga

    Liberte todo o potencial do seu dimensionamento de fundações!

    • Dimensionamento de lajes de fundação com e sem reforço, assim como fundações de encaixe e ensoleiramento
    • Representação gráfica com renderização
    • Verificação geotécnica segundo o Eurocódigo 7 (verificação de rotura do solo, verificação ao deslizamento e verificações de equilíbrio estático, de estado limite de levantamento, de cargas com grandes excentricidades e torção da fundação)
    • Saída em gráficos e tabelas da quantidade de armadura necessária
    • Verificações de betão armado segundo o Eurocódigo 2 (dimensionamento à flexão, punçoamento, armaduras mínimas)
    • Verificações detalhadas dos estados limite último e de utilização, assim como de detalhes estruturais
    • Saída dos dimensionamentos com fórmulas -> sem "caixas negras", mas sim com transparência e rastreabilidade!
    Descubra as principais funções

    Descubra as potentes funções do módulo adicional do RFEM 6 que simplificam o dimensionamento e a verificação de fundações, garantindo máxima segurança e desempenho.

    • Fundações para estruturas mistas

      Independentemente de se tratar de um pilar de aço, betão ou madeira, a fundação pode ser definida para todos os materiais. Também são possíveis fundações sob pilares de componentes de superfícies.

    • Dimensionamento pelo Eurocódigo na íntegra

      Assegure-se de que os seus projetos cumprem os Eurocódigos 2 e 7 com verificações detalhadas de betão e geotecnia, incluindo punçoamento, equilíbrio estático, etc.

    • Definições de verificação ajustáveis

      Adapte os parâmetros de dimensionamento para satisfazer requisitos específicos do projeto, oferecendo assim flexibilidade e maior controlo sobre os resultados e verificações de dimensionamento.

    • Integração total no RFEM 6
      O funcionamento sem falhas no RFEM 6 torna o software de terceiros desnecessário, reduzindo erros e poupando tempo. O módulo adicional deteta automaticamente as dimensões do objeto a suportar.
    Estrutura de aço detalhada assente em fundações de betão maciço com elementos de ligação precisos
    Ilustração de fundações de betão precisas e verificações geotécnicas detalhadas segundo o Eurocódigo 2 e 7
    Imagem de um pavilhão de betão com fundações robustas de betão armado num contexto de construção.
    Estrutura de aço detalhada assente em fundações de betão maciço com elementos de ligação precisos
    Ícone de comentários de utilizadores

    Fique a saber o que os nossos clientes acham dos produtos Dlubal!

    Ícone de apoio

    Experimente a Dlubal ao vivo e marque uma demonstração de produtos online!

    Ícone de download

    Experimente a versão completa gratuitamente durante 90 dias

    Procedimento

    • Criação da estrutura completa
    • Criação e atribuição de uma nova fundação a um apoio de nó
    • Definição de dados de entrada na interface de utilizador intuitiva (o RFEM oferece a visualização gráfica imediata da topologia)
    • Verificação das configurações desejadas para dimensionamento (o RFEM oferece configurações padrão para isso)
    • Início do cálculo
    • Avaliação dos resultados de forma gráfica, tabular e em detalhe
    • Impressão de tabelas de resultados, gráficos (opcionalmente com armadura, impressão múltipla) e equações de cálculo (referência a equações na norma) no relatório de impressão
    Fundação de betão modelada digitalmente no modelo de cálculo do RFEM 6
    Interface do RFEM 6 com um modelo de uma estrutura de pórtico de betão armado com fundações
    As suas vantagens
    Pavilhão de betão armado com fundações de betão integradas e elementos estruturais detalhados
    1. Solução tudo-em-um

    Funciona perfeitamente no ambiente RFEM 6, por isso não são necessários programas externos.

    Barra de betão emparelhada com fundação armada para determinação exata da quantidade de armadura
    2. Dimensionamento eficiente de armaduras

    Determine facilmente a quantidade exata de armadura de que necessita para as suas fundações.

    Interface para execução de verificações geotécnicas de acordo com o Eurocódigo 7 através de um módulo
    3. Verificações geotécnicas integradas

    Realize as verificações geotécnicas necessárias segundo o Eurocódigo 7 no módulo.

    Relatório de impressão detalhado com resultados visuais e numéricos para análise de fundações de betão
    4. Resultados abrangentes e claros

    Obtenha resultados detalhados e compreensíveis com uma saída visual e numérica clara para documentação completa.

    Loja online

    Configure o seu pacote de programas individual e obtenha todos os preços online!

    • Família RFEM 6
    • Família RSTAB 9
    Vá para a loja online

    Calcule o seu preço

    1.400,00 USD
    +110,00 USD
    Base de pilar
    Montante total 1.510,00 USD
    Software de cálculo e design de estruturas
    Dlubal Software GmbH

    Am Zellweg 2
    93464 Tiefenbach
    Alemanha

    +49 9673 9203-0 [email protected]
    Dlubal Software GmbH

    Querstraße 10
    04103 Leipzig
    Alemanha

    +49 9673 9203-0 [email protected]
    Soluções
    • Estruturas de betão armado
    • Estruturas de aço
    • Estruturas de madeira
    • Ligações de aço
    Produtos
    • RFEM 6
    • RSTAB 9
    • RSECTION 1
    • RWIND 3
    Apoio
    • Perguntas mais frequentes (FAQ)
    • Fazer uma pergunta
    • Mapas de sobrecarga de neve, velocidade do vento e carga sísmica
    • Contactar equipa de vendas
    Notícias
    • Subscrever a newsletter
    • Notícias atuais
    • Vista geral de eventos
    • Formações online
    Recursos
    • Versão de teste completa gratuita
    • Enviar projeto
    • Projetos de clientes
    • Manuais online
    Junte-se à Dlubal
    Comunidade Dlubal YouTube Facebook Pinterest TikTok Instagram
    © 2001-2026 Dlubal Software GmbH | Todos os direitos reservados
    Notas legais
    Sobre nós
    Mapa do site
    Idioma
    • Deutsch
    • English
    • Français
    • Español
    • Português
    • Italiano
    • Česky
    • Polski
    • Pусский
    • 中文(简体)