Community
    登录到您的帐户

    注册成为 Dlubal 软件公司外部网用户,畅享软件资源,独享个性化数据。

    创建账户
    登录即表示您同意Dlubal 使用和销售条件。请参阅我们的数据保护声明、Cookies 声明。
    0
    网店
    联系我们销售团队
    语言
    • Deutsch
    • English
    • Français
    • Español
    • Português
    • Italiano
    • Česky
    • Polski
    • Pусский
    • 中文(简体)
    • 行业
      • 钢筋混凝土结构
      • 预应力混凝土结构
      • 钢结构
      • 木结构
      • 砌体结构
      • 铝合金和轻型结构
      • 建筑物
      • 工业建筑与设施建设
      • 管道
      • 桥梁结构
      • 吊车与吊车梁
      • 塔架/桅杆
      • 玻璃结构
      • 张拉膜结构
      • 索结构与索网结构
      • 层压板和夹心板结构
      • 临时结构
      • 脚手架与台架结构
      • 海洋工程
      • 筒仓与仓储结构
      • 再生能源结构
      • 光伏支架系统与安装结构
      • 船舶结构
      • 输送技术
      • 钻井技术
      • 游泳池和水上乐园
      • 集装箱建筑
      • 钻孔灌注桩
      • 楼梯结构
      • 发电厂
      • 水工钢结构
      • 机械工程
      • 充气膜结构
      应用领域
      • 结构工程
      • 有限元分析(FEA)
      • 风洞模拟与风荷载生成
      • 应力计算
      • 非线性计算
      • 稳定性分析
      • 非线性屈曲分析
      • 翘曲扭转分析
      • 动力和地震分析
      • 非线性动力分析
      • 静力弹塑性分析(Pushover)
      • 结构找形分析和裁剪设计
      • 钢结构节点
      • 基于 BIM 的设计
      • 冷弯型钢
      • 土与结构的相互作用
      • 幕墙结构
      • 基础和土木工程
      • 施工阶段
      • 防火
      规范
      • 欧洲规范 (EC)
      • 德国规范 (DIN)
      • 英国规范(BS EN, BS)
      • 意大利规范 (NTC)
      • 美国规范
      • 加拿大规范 (CSA)
      • 澳大利亚标准 (AS)
      • 瑞士规范 (SIA)
      • 中国规范 (GB, HK)
      • 印度规范 (IS)
      • 墨西哥规范(RCDF, CFE Sismo 15)
      • 俄罗斯规范 (SP)
      • 南非标准 (SANS)
      • 巴西规范 (NBR)
      在线服务
      • Geo-Zone Tool 顶部菜单图标 雪荷载、风速和地震荷载地图
      • 云计算图标 云计算
      • 结构分析百科图标 结构设计百科
      • 钢和木截面的截面属性图标 钢型材与截面的截面属性
      光伏支架的结构设计

      Dlubal Software 帮助您创建和验证任何太阳能安装系统。在单一环境中高效地处理钢、铝和混凝土结构。

      探索工具
      光伏支架结构 光伏支架结构 | 移动版
      Dlubal API

      Dlubal 的新 API 服务 (gRPC) 为您提供了一个基于 Python 和 C# 的结构分析软件灵活接口,可以直接访问整个 Dlubal 产品系列。

      使用 API 开始
      主菜单横幅 API 的背景 主菜单横幅 API 的背景
    • 图标表示有限元分析软件 RFEM 6。 RFEM 6 满足您所有项目需求的有限元分析软件

      RFEM 6 是模块化程序家族的基础,用于定义板、壁、壳和杆结构以及体积和接触元件的结构、材料和作用。

      更多信息
      模块启动图标 模块
      • 附加分析
      • 动力分析
      • 特殊解决方案
      • 设计
      • 连接
      没有边框的 RSTAB 9 图标 RSTAB 9 标志性杆件软件

      使用RSTAB 9,严谨的结构工程师可以使用一款3D杆件软件,它满足现代工程建设的要求,并反映当前的技术水平。

      更多信息
      模块启动图标 模块
      • 附加分析
      • 动力分析
      • 特殊解决方案
      • 设计
      无边框截面 1 图标 RSECTION 1 用户自定义截面计算

      RSECTION 支持结构工程师,通过计算各种截面的型钢特性,并进行后续应力分析。

      更多信息
      RWIND 3 图标无边框 RWIND 3 数值风洞 CFD 软件

      RWIND 3 是一个数字风洞,用于模拟任意建筑几何形状周围的风流并计算其表面的风荷载。

      更多信息
      API 图标 Dlubal API 通向参数化建模和自动化的大门

      新的Dlubal API服务(gRPC)为您提供了一个基于Python和C#的静力学软件灵活接口,直接访问整个Dlubal产品系列。利用无缝且强大的集成,可理想地应用于您的Dlubal软件中,适用于参数化建模和复杂的优化任务。

      了解 API
      API 文档 API 文档
      • 索引
      • 开始使用
      • 应用
      • 模型对象
      • 订阅与价格
      • 示例
      钢节点有限元分析

      使用CBFEM设计和分析钢连接,符合EN 1993‑1‑8和AISC 360标准,完全集成在RFEM 6中,以加快和提高结构工作的准确性。

      了解更多
      钢连接 钢节点
      Dlubal 社区

      该平台提供一个空间用于技术咨询、结构分析和设计的深入讨论、功能建议以及与Dlubal团队和其他用户的直接互动。

      立即注册
      Dlubal 社区主菜单横幅背景 Dlubal 社区主菜单横幅背景
      停产产品
    • 支持
      • 常见问题 (FAQ)
      • 知识库
      • 产品特点
      • 授权
      • 提问
      • 我们的支持团队
      • 提交期望的功能或想法
      • 许可和授权常见问题解答
      • 报告问题或错误
      • 程序更新
      • 程序问题
      • 公式 | 数学很有趣!
      培训
      • RFEM 初学者
      • RSTAB 初学者
      • 在线培训
      • Dlubal 软件培训课程
      • 定制化培训
      • 视频
      • B 站视频主页
      • Dlubal 软件线上直播公开课
      • 在线课程
      服务
      • 免费支持/服务
      • 外部网 | 我的账户
      • 服务合同
      • 用于荷载计算的在线荷载查询工具
      • 更新和升级
      • 较早版本的软件
      销售
      • 网店
      • 我们的销售团队
      • 联系销售团队
      • 安排在线产品演示
      • 为什么选择 Dlubal 软件
      AI 支持助理
      • 米娅 – 您的全天候 AI 助手
      • 探索您的 AI 私人助手
      免费支持与服务

      需要帮助吗?访问免费的支持选项,包括全天候人工智能协助、电子邮件支持和网络研讨会。

      了解更多
      免费支持与服务 免费支持与服务
      快速找到答案

      找到有关Dlubal软件的常见问题的快速答案。搜索或筛选数百个常见问题以快速解决问题。

      查看常见问题
      常见问题 (FAQ) 常见问题 | 手机版
    • 最新消息
      • 最新资讯
      • 新的产品功能
      • 订阅新闻简报
      • 新一代产品
      • Dlubal 博客
      培训
      • 在线培训
      • 个人培训
      活动
      • 活动汇总
      • 展会/研讨会
      • 网络课堂
      通过网课深入掌握工程技巧

      加入行业领导者,探索结构工程和软件的解决方案。通过我们的现场课程提升您的技能!

      查看下场网课
      3D FEA Software RFEM 6 | First Steps 菜单横幅图片|新闻网络研讨会|移动版
      释放创新力量

      探索旨在提升您的工程工作流程的尖端工具和增强功能。

      探索新功能
      Explore New Features 菜单横幅图片 | 新闻_产品功能 | 移动版本
    • 完整版下载

      您想体验一下 Dlubal 软件的强大功能吗? 机会就摆在眼前! 使用我们的 90 天免费完整版,您可以全面测试我们的所有程序。

      现在开始试用
      Dlubal 免费专区

      在Dlubal免费区域,您可以访问网络研讨会、文章和软件测试机会——所有内容均免费且在一个地方清晰整合。

      更多信息
      示例
      • 下载结构分析模型(完整列表)
      • 提交结构分析模型
      • 入门示例与练习示例
      • 验算示例
      • 图片概览
      文档
      • 在线手册
      • 产品手册
      参考
      • 用户项目
      • 为什么要提交您的客户项目?
      • 如何提交客户项目?
      • 上传客户项目
      免费下载模型

      探索数以千计的现成结构模型。下载、调整并用作模板,以加速设计流程。

      发现模型
      下载结构分析模型 免费下载模型 | 移动版
      Dlubal 自由区

      随时获得专家帮助。享受免费的 AI 协助、电子邮件支持、在线研讨会,以及针对服务合同专业用户的高级服务。

      获取支持
      免费支持与服务 免费支持与服务 | 手机版
    • 在线学习
      • RFEM 6 初学者入门
      • RFEM 6 学生版
      • 使用 RFEM 6 和 Python 进行编程
      • RFEM 6 与 Rhino & Grasshopper
      • RFEM 6 入门教程
      • 使用 RFEM 5 建模
      • 学生结构分析培训视频
      • Dlubal 软件快速教程
      • RFEM 中的最佳提示和技巧
      • Dlubal 在线培训录像
      • Dlubal 网课录像
      学生与学校
      • 免费面向学生的结构分析软件
      • 申请或延长免费学生版
      • 申请教师版
      • 提交毕业论文
      • 为何要提交毕业论文?
      • 使用 Dlubal 结构分析软件完成的毕业论文
      • 为高校优惠提供结构分析软件
      • 索取学校软件套餐
      • 教育版软件培训
      • 申请培训日期
      知识平台
      • RFEM 初学者
      • 视频
      • 用户使用手册
      • 结构分析百科
      • 知识库
      • 常见问题与解答
      信息娱乐
      • 播客
      • 德儒巴博客
      • 结构分析与设计简介
      RFEM 6 初学者入门

      借助 RFEM 6 开始您的第一步,发现您可以多快进行建模和计算。通过附加组件进行自定义,以获得更多可能性。

      开始使用
      3D FEA Software RFEM 6 | First Steps 菜单横幅图片|新闻网络研讨会|移动版
      面向学生的免费结构分析软件

      全球已有数千名学生受益于Dlubal软件。在整个学习过程中,享受免费访问、培训和专家支持。

      免费获取许可证书
      面向学生的免费结构分析软件 面向学生的免费结构分析软件
    • 关于我们
      • 历史与数据
      • 公司理念
      • 为什么选择 Dlubal 软件?
      • 产品比较
      • 质量政策
      • 公司团队
      联系我们
      • 全球办公地点
      • Dlubal 授权代理商
      参考
      • 用户评论
      • 客户项目
      • 案例研究
      • 为什么要提交您的客户项目?
      • 验算示例
      • 您的评论
      • 参与的研究项目
      我们的客户

      我们向您介绍使用 Dlubal 软件实现其项目的客户。了解我们的全球客户如何利用先进的静力和动力分析工具,在建筑和工程领域实施创新解决方案。

      查看客户
      合作共赢

      了解世界各地的顶尖工程师如何信任我们的解决方案,以提升他们的项目。

      查看客户项目
      See Our Customers 菜单横幅图片 | 公司_我们的客户_移动端
      认识专家

      我们的专职工程师随时随地为您提供建模、设计和技术挑战方面的帮助。

      联系支持
      Our Team 菜单横幅图片 | 公司_我们的团队 | Mobile 版本
    • 招贤纳士
      • 职位
      • 团队
      • 员工博客
      • 洞察
      职位
      • 所有职位空缺
      • 产品开发
      • 客户支持
      • 销售
      • 市场营销
      • 软件开发
      • 行政管理
      • 实习生
      • 其他
      团队
      • 产品开发
      • 客户服务
      • 销售
      • 市场营销
      • 软件开发
      • 管理
      为什么选择 Dlubal?
      • 员工福利
      与我们共创未来

      揭示我们的团队如何塑造工程的未来。体验创新、成长和激动人心的挑战。

      Dlubal 职业生涯 菜单横幅图| Dlubal 的职业机会 - 移动端
      寻找理想工作

      加入工程软件的全球领导者,将您的职业生涯提升到新的高度。

      查看职位空缺
      All Open Positions 菜单横幅图片 | 移动端开放职位
    • 网店
    主要产品
    图标表示有限元分析软件 RFEM 6。
    RFEM 6
    没有边框的 RSTAB 9 图标
    RSTAB 9
    RWIND 3 图标无边框
    RWIND 3
    无边框截面 1 图标
    RSECTION
    在线服务
    Geo-Zone Tool 图标
    在线荷载查询工具
    截面属性
    截面属性
    API 图标
    API
    云计算图标
    云计算
    下载模型
    可下载模型
    Dlubal 社区图标
    Dlubal 社区
    知识库文章图标
    知识库
    在线网课
    网课
    登录到您的帐户

    注册成为 Dlubal 软件公司外部网用户,畅享软件资源,独享个性化数据。

    登录 创建账户
    90天免费试用
    登录到您的帐户

    注册成为 Dlubal 软件公司外部网用户,畅享软件资源,独享个性化数据。

    登录 创建账户
    • 产品
    • 有限元分析(FEA)
    • RFEM 6 模块
    • 特殊解决方案
    • RFEM 6 的多层结构(如层压板、CLT)模块
    RFEM 6 图标 | Dlubal Software 多层结构(如层压板、CLT)
    用户使用手册
    • 手册 | 多层结构
    • RFEM 6 入门教程
    • RFEM 6 / RSTAB 9 | 第一步
    }
    calculator icon
    价格
    RFEM 6 的多层结构(如层压板、CLT)模块

    RFEM 6 的多层结构(如层压板、CLT)模块

    用户可以通过多层结构模块对多层结构进行定义。

    由用户自定义的层结构创建一个局部的整体刚度矩阵。 该模块适用于例如正交胶合木构件、纺织物混凝土、中空玻璃板、纤维增强塑料等。 验算是在模块中进行,例如木结构设计。

    Banner | RFEM 6 的多层结构(如层压板、CLT)模块

    多层结构(如层压板、CLT)的定义

    总数: 3
    正交胶合木面应力
    • 基本
    • RFEM 6 的木结构设计模块
    • 木结构
      • Eurocode 5

    多层结构 | 产品特性

    • 可灵活定义不同的层结构
    • 输入数据量少,效率高
    • 可根据需要详细设置计算选项
    • 根据选定的材料模型和包含的层,在 RFEM 中生成面的局部整体刚度矩阵
    • 图形显示各层的方向
    • 定义厚度类型为“梁-面板”的木板单元
    夹层玻璃板层结构
    厚度类型 - 层
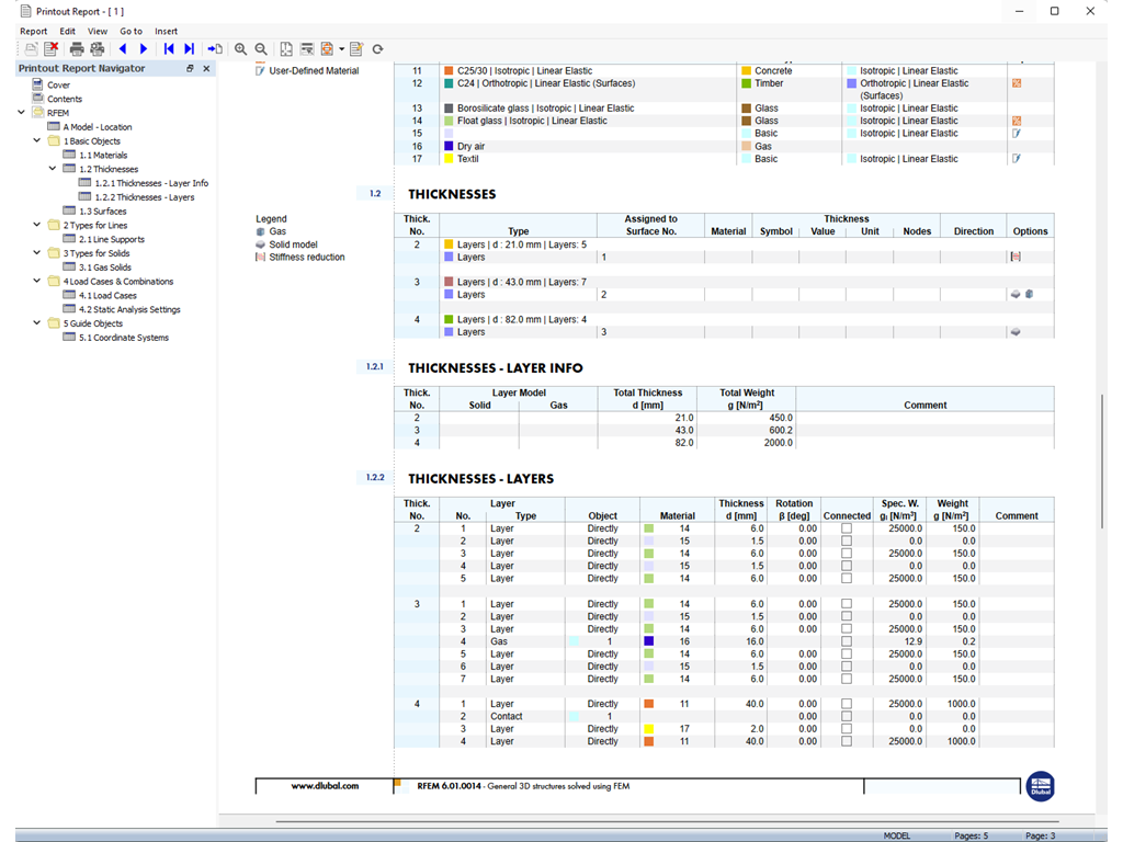
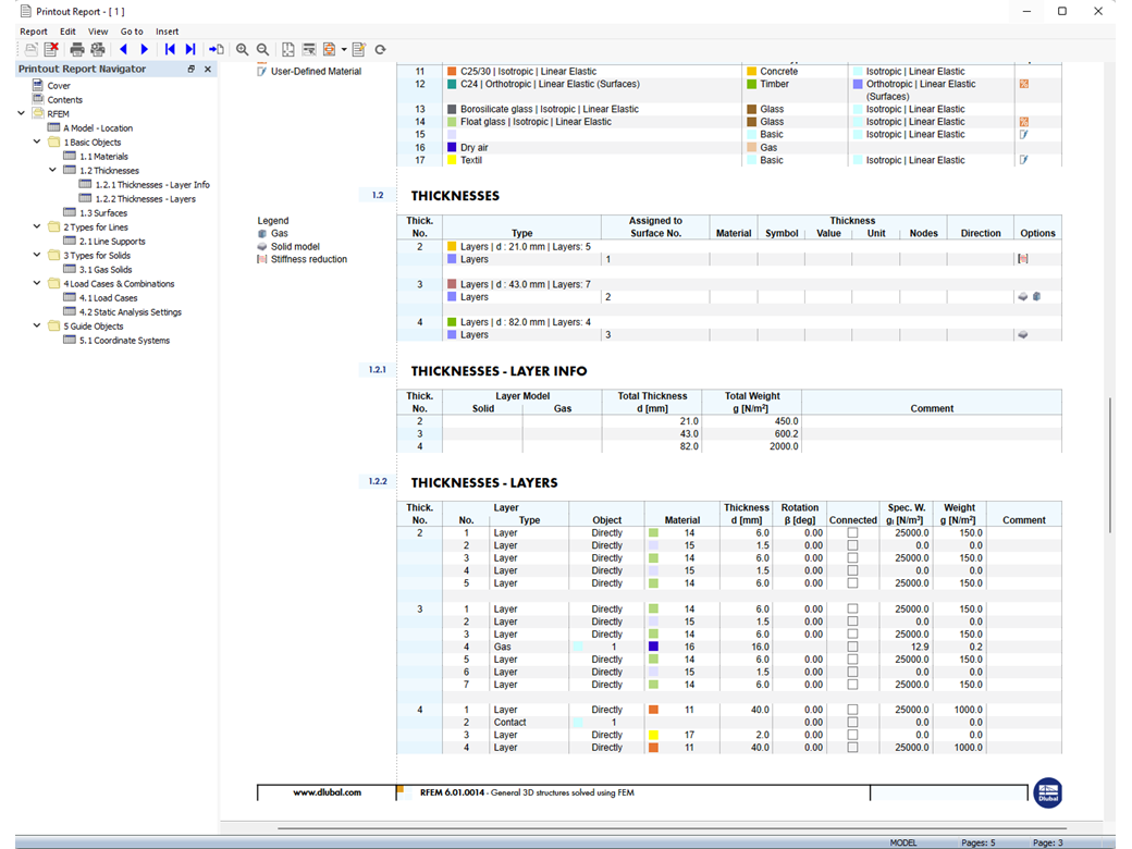
    打印报告中的层结构图
    正交胶合木板面的应力
    • 基本
    • 层压板、夹心板、正交胶合木(CLT)
    • Eurocode 5

    多层结构 | 操作步骤

    请注意,在多层结构模块中指定的关于材料、荷载和结果组合的所有数据都必须符合规范中的设计概念。 材料库中已经包含了相关的材料。 RFEM 可以按照规范自动生成荷载组合和结果组合。 如果需要,您也可以手动创建这些组合。

    在计算刚度时,用户可以修改各层的结构。 此外,用户可以根据需要调整材料模型的各项参数。 这样在生成刚度方面有完全的选择自由。

    所选的材料也决定了各层的极限应力。 您可以根据需要调整值。 厚度类型为任意面。

    正交胶合木板面的变形
    正交胶合木板面的应力
    打印报告中的层定义
    打印报告中的层结构图
    • 基本
    • 层压板、夹心板、正交胶合木(CLT)

    多层结构 | 结果输出

    计算书中包含了所有设计验算公式及其相关的规范信息,用户可以根据自己的实际需要进行计算。

    这样所有输入和结果数据都包含在 RFEM 计算书中。 用户可以根据具体的设计计算来选择显示在计算书中的内容。 结果最终实现了预期的结果。

    • 邀请参与线上产品演示,展示高级软件功能
      预约在线产品演示

      预约在线产品演示,亲身体验德儒巴软件!

    • 宣传横幅,邀请免费注册 90 天试用 Dlubal 软件产品
      免费试用90天完整版

      了解 Dlubal 软件最高效的方式,就是亲自试用体验!

    • 联系我们的销售团队,获取专家支持和先进的软件解决方案。
      联系我们的销售团队

      我们随时为您服务!

    网店

    配置你的个人软件包,并在网上了解所有的价格!

    • RFEM 6 软件家族
    • RSTAB 9 软件家族
    网上商店

    计算价格

    1,850.00 USD
    +0.00 USD
    正交胶合木(CLT)建筑
    总金额 1,850.00 USD

    RFEM 6 入门

    您还没有或很少使用 RFEM?这里为您提供一些实用的技巧和提示,帮助您轻松上手 Dlubal 软件。

    更多信息
    清晰菜单和工具栏的 RFEM 6 用户界面入门 显示初始 RFEM 6 用户界面及设置选项的屏幕截图

    下载结构模型

    浏览丰富的 RFEM、RSTAB、RSECTION 和 RWIND 的结构分析模型。非常适合练习或项目灵感启发。

    下载模型
    用于精确工程分析的可下载技术模型模板 移动端视图,显示可下载结构分析模型,带有缩略图和标注
    结构分析与设计软件
    Dlubal Software (Shanghai) Co., Ltd.

    Building C, No. 555, Dongchuan Road
    Minhang District
    200240 上海
    中国

    (+86)18389356559 [email protected]
    Dlubal Software GmbH

    Am Zellweg 2
    93464 Tiefenbach
    德国

    +49 9673 9203-0 [email protected]
    解决方案
    • 钢筋混凝土结构
    • 钢结构
    • 木结构
    • 钢结构节点
    产品
    • RFEM 6
    • RSTAB 9
    • RSECTION 1
    • RWIND 3
    支持
    • 常见问题 (FAQ)
    • 提问
    • 用于荷载计算的在线荷载查询工具
    • 联系销售团队
    新闻
    • 订阅新闻简报
    • 最新资讯
    • 活动汇总
    • 在线培训
    资源
    • 下载完整版试用
    • 上传客户项目
    • 客户项目
    • 在线手册
    加入Dlubal
    Dlubal 社区 YouTube 脸书 Xing Pinterest TikTok Instagram 微信公众号 哔哩哔哩
    © 2001-2026 Dlubal Software GmbH | 版权所有
    法律声明
    关于我们
    网站地图
    语言
    • Deutsch
    • English
    • Français
    • Español
    • Português
    • Italiano
    • Česky
    • Polski
    • Pусский
    • 中文(简体)