Community
    Inicie sesión en su cuenta

    Regístrese en el extranet de Dlubal para aprovechar al máximo el software y tener acceso exclusivo a sus datos personales.

    Crear cuenta
    Al iniciar sesión, acepta las Condiciones de uso y venta de Dlubal. Consulte nuestro Aviso de privacidad y nuestro Aviso de cookies.
    0
    Tienda en línea
    Contacte al equipo de ventas
    Idioma
    • Deutsch
    • English
    • Français
    • Español
    • Português
    • Italiano
    • Česky
    • Polski
    • Pусский
    • 中文(简体)
    • Sectores
      • Estructuras de hormigón armado
      • Estructuras de hormigón pretensado
      • Estructuras de acero
      • Estructuras de madera
      • Estructuras de fábrica
      • Estructuras ligeras y de aluminio
      • Edificios
      • Estructuras industriales
      • Tuberías
      • Estructuras de puentes
      • Grúas y caminos de rodadura para grúas
      • Torres y mástiles
      • Estructuras de vidrio
      • Estructuras con membranas tensadas
      • Estructuras tensadas y de cables
      • Estructuras laminadas y tipo sándwich
      • Estructuras temporales
      • Estructuras de andamios y estanterías
      • Estructuras costa afuera
      • Silos y tanques de almacenamiento
      • Instalaciones de energías renovables
      • Estructuras solares y sistemas de montaje
      • Construcción naval y cuerpos flotantes
      • Estructuras de transportadoras
      • Estructuras de perforación
      • Piscinas y parques acuáticos
      • Estructuras de contenedores
      • Cimentaciones con pilotes perforados
      • Estructuras de escaleras
      • Centrales eléctricas
      • Ingeniería hidráulica de acero
      • Génie mécanique
      • Estructuras neumáticas
      Áreas de aplicación
      • Ingeniería estructural
      • Software de cálculo por elementos finitos (MEF)
      • Simulación de viento y generación de cargas de viento
      • Análisis de tensiones
      • Análisis no lineal
      • Análisis de estabilidad
      • Análisis no lineal de pandeo
      • Análisis de torsión de alabeo
      • Análisis dinámico y sísmico
      • Análisis dinámico no lineal
      • Análisis con el método del empuje incremental ("pushover")
      • Búsqueda de forma y patrones de corte
      • Uniones de acero
      • Planificación orientada al BIM
      • Secciones conformadas en frío
      • Interacción suelo-estructura
      • Análisis de estructuras de fachadas
      • Cimentaciones e ingeniería de cimentación
      • Fases de construcción
      • Protección contra incendios
      Normas
      • Eurocódigos (EC)
      • Normas alemanas (DIN)
      • Normas británicas (BS EN, BS)
      • Normativa Italiana (NTC)
      • Normas estadounidenses
      • Normas canadienses (CSA)
      • Normas australianas (AS)
      • Normas suizas (SIA)
      • Normas chinas (GB, HK)
      • Normas de India (IS)
      • Normas mexicanas (RCDF, CFE Sismo 15)
      • Normas rusas (SP)
      • Normas sudafricanas (SANS)
      • Normas brasileñas (NBR)
      Servicios en línea
      • Icono del menú superior de herramienta de geo-zona Mapas de carga de nieve, velocidad del viento y carga sísmica
      • Icono de cálculo en la nube Cálculos en la nube
      • Icono de wiki sobre análisis estructural Wiki de análisis de estructuras
      • Propiedades de la sección de iconos de secciones de acero y madera Propiedades de secciones transversales de perfiles de acero
      Cálculo estructural para sistemas solares

      Dlubal Software te ayuda a crear y verificar cualquier sistema de montaje solar. Trabaja de manera eficiente con estructuras de acero, aluminio y concreto en un solo entorno.

      Explorar herramientas
      Estructuras solares Estructuras solares | Versión móvil
      API de Dlubal

      El nuevo servicio API de Dlubal (gRPC) te proporciona una interfaz flexible para el software de análisis estructural basado en Python y C#, con acceso directo a toda la gama de productos de Dlubal.

      Comenzar con API
      Fondo para el banner de menú principal de la API Fondo para el banner de menú principal de la API
    • Icono que representa RFEM 6, una aplicación de software de análisis de elementos finitos. RFEM 6 El único software de análisis por elementos finitos que necesita para sus proyectos

      RFEM 6 forma la base de la familia de programas modulares y se utiliza para la definición de estructuras, materiales y cargas para estructuras de placas, superficies, láminas y barras, así como para elementos sólidos y de contacto.

      Más información
      Icono de cambio de módulo Complementos
      • Análisis adicionales
      • Análisis dinámico
      • Soluciones especiales
      • Cálculo y dimensionamiento
      • Uniones
      Icono de RSTAB 9 sin límites RSTAB 9 Software de estructuras de barras icónico

      RSTAB 9 es un software potente de análisis y dimensionamiento en 3D de estructuras de vigas, pórticos o cerchas, que refleja el estado de la técnica actual y ayuda a los ingenieros y consultores de estructuras a cumplir con los requisitos de la ingeniería de estructuras moderna.

      Más información
      Icono de cambio de módulo Complementos
      • Análisis adicionales para RSTAB 9
      • Análisis dinámico
      • Soluciones especiales
      • Cálculo
      Icono de RSECTION 1 sin límites RSECTION 1 Propiedades de secciones transversales definidas por el usuario

      RSECTION apoya a los ingenieros estructurales determinando las propiedades de secciones para una amplia variedad de secciones transversales y permite un análisis de tensiones posterior.

      Más información
      Icono de RWIND 3 sin límites RWIND 3 Software de CFD para túneles de viento digital

      RWIND 3 es un túnel de viento digital para la simulación de flujos de viento alrededor de cualquier geometría de edificio o estructura y para el cálculo de las cargas de viento sobre sus superficies.

      Más información
      Ícono de API API de Dlubal Su puerta de entrada a la modelación paramétrica y automatización

      El nuevo servicio API de Dlubal (gRPC) le ofrece una interfaz flexible para el software de estática basado en Python y C#, con acceso directo a toda la gama de productos de Dlubal. Benefíciese de una integración fluida y potente en su software Dlubal, ideal para la modelización paramétrica y tareas de optimización complejas.

      Explorar API
      Documentación de API Documentación de API
      • Índice
      • Primeros pasos
      • Aplicaciones
      • Objetos del modelo
      • Suscripciones y precios
      • Ejemplos
      AEF para conexiones de acero

      Diseñe y analice las conexiones de acero utilizando CBFEM, conforme a EN 1993‑1‑8 y AISC 360, totalmente integrado en RFEM 6 para flujos de trabajo estructurales más rápidos y precisos.

      Saber más
      Conexiones de acero Conexiones de acero
      Herramienta de Zona Geográfica

      El servicio en línea de Dlubal proporciona mapas de zonas para la determinación rápida de cargas de nieve, velocidades del viento y datos sísmicos.

      Zonas de carga
      Herramienta de visualización de la zona geográfica que muestra mapas de nieve, viento y sismicidad con ilustraciones para evaluaciones de cargas ambientales. Ilustración de mapas de geo-zonas de nieve, viento y sismicidad en una versión móvil que muestra varias regiones y datos.
      Productos anteriores
    • Soporte
      • Preguntas frecuentes (FAQ)
      • Base de conocimientos
      • Características de los productos
      • Licencias
      • Formular una pregunta particular
      • Nuestro equipo de soporte
      • Enviar característica o idea del programa
      • Preguntas frecuentes sobre licencias y autorizaciones
      • Informar de algún problema o error en el programa
      • Actualizaciones del programa
      • Problemas del programa
      • Fórmulas | ¡Las matemáticas son divertidas!
      Formación
      • Primeros pasos con RFEM
      • Primeros pasos con RSTAB
      • Formación en línea
      • Formación en Dlubal
      • Cursos de formación individuales
      • Vídeos
      • Vídeos de aprendizaje en línea
      • Webinarios - Aprenda en línea
      • Cursos en línea
      Servicio
      • Soporte técnico y servicio gratuitos
      • Extranet | Mi cuenta
      • Contrato de servicio
      • Herramienta de zonas geográficas para la determinación de cargas
      • Actualizaciones y nuevas versiones
      • Versiones anteriores de los programas
      Ventas
      • Tienda en línea
      • Nuestro equipo de ventas
      • Contactar con nuestro equipo de ventas
      • Solicitar demostración de producto en línea
      • ¿Por qué Dlubal Software?
      Asistente de soporte de IA
      • Mia, su asistente de inteligencia artificial las 24 horas
      • Descubra su asistente personal de IA
      Soporte técnico y servicio gratuitos

      ¿Necesitas ayuda? Accede a opciones de soporte gratuitas que incluyen asistencia de IA 24/7, soporte por correo electrónico y seminarios web.

      Ver más
      Soporte técnico y servicio gratuitos Soporte técnico y servicio gratuitos
      Encuentra respuestas rápidamente

      Encuentra respuestas rápidas a preguntas comunes sobre Dlubal Software. Busca o filtra cientos de preguntas frecuentes para resolver problemas en poco tiempo.

      Ver FAQ
      Preguntas frecuentes (FAQ) Preguntas frecuentes | Versión móvil
    • Novedades
      • Noticias actuales
      • Nuevas características de productos
      • Suscribirse al boletín de noticias
      • Nuevos programas
      • Blog de Dlubal
      Formación
      • Cursos de formación en línea
      • Formación individual
      Eventos
      • Resumen de eventos
      • Ferias y congresos
      • Webinarios
      Domina la ingeniería con seminarios web

      Únete a los líderes de la industria y explora soluciones en ingeniería estructural y software. ¡Mejora tus habilidades con nuestras sesiones en vivo!

      Ver seminarios web siguientes
      3D FEA Software RFEM 6 | First Steps Imagen de menú de banner | Seminarios web de noticias | Versión para móviles
      Desbloquea el poder de la innovación

      Descubre herramientas de vanguardia y mejoras diseñadas para impulsar tu flujo de trabajo de ingeniería.

      Explorar nuevas funciones
      Explore New Features Imagen del Banner de Menú | Novedades_CaracterísticasDelProducto | Versión Móvil
    • Descargar versión completa

      ¿Quiere probar las capacidades de los programas de Dlubal Software? ¡Tienes la oportunidad! Con la versión completa gratuita de 90 días, puede probar todos nuestros programas completamente y sin compromiso.

      Comenzar ahora con la versión de prueba
      Zona gratuita de Dlubal

      En la zona gratuita de Dlubal puede acceder a webinarios, artículos y versiones de prueba del software, todo de manera gratuita y en un solo lugar.

      Más información
      Ejemplos
      • Modelos de análisis estructural para descargar
      • Enviar modelo de análisis estructural
      • Ejemplos introductorios y tutoriales
      • Ejemplos de verificación
      • Vista general de imágenes
      Documentos
      • Manuales en línea
      • Manuales
      • Folletos, catálogos y certificados
      Referencias
      • Proyectos de clientes
      • ¿Por qué enviar su proyecto?
      • ¿Cómo presentar un proyecto de cliente?
      • Enviar un proyecto de cliente
      Modelos gratis para descargar

      Explora miles de modelos estructurales listos para usar. Descárgalos, adáptalos y úsalos como plantillas para acelerar tu proceso de diseño.

      Descubrir modelos
      Modelos de análisis estructural para descargar Modelos gratuitos para descargar | Versión móvil
      Espacio libre de Dlubal

      Obtén ayuda experta siempre que la necesites. Disfruta de asistencia gratuita de IA, soporte por correo electrónico, webinars en vivo y servicios premium para usuarios del Contrato de Servicio Pro.

      Obtener soporte
      Soporte técnico y servicio gratuitos Soporte técnico y servicio gratuitos | Versión móvil
    • Aprendizaje electrónico
      • RFEM 6 para principiantes
      • RFEM 6 para estudiantes
      • Programación con RFEM 6 y Python
      • RFEM 6 con Rhino y Grasshopper
      • RFEM 5 para principiantes
      • Modelado con RFEM 5
      • Lecciones de análisis de estructuras para estudiantes
      • Vídeo tutoriales cortos para los programas de Dlubal
      • Los mejores consejos y trucos en RFEM
      • Grabaciones de cursos en línea
      • Webinarios celebrados y grabados
      Estudiantes y universidades
      • Software de análisis estructural gratuito para estudiantes
      • Solicitar o renovar licencia de estudiante gratuita
      • Solicitud de licencia para profesores gratuita
      • Enviar tesis
      • ¿Por qué enviar tu tesis?
      • Tesis de graduación con el software de análisis estructural de Dlubal
      • Software de análisis de estructuras gratuito para universidades técnicas
      • Solicitar paquete para universidades técnicas
      • Curso introductorio gratuito en su universidad
      • Solicitar fecha de un curso
      Plataforma de conocimientos
      • Primeros pasos con RFEM
      • Vídeos
      • Manuales en línea
      • Wiki de ingeniería de estructuras
      • Base de datos de conocimientos
      • Preguntas frecuentes (FAQ)
      Infoentretenimiento
      • Pódcast
      • Blog de Dlubal
      • Introducción al análisis y diseño de estructuras
      Primeros pasos con RFEM 6

      Da tus primeros pasos con RFEM 6 y descubre lo rápido que puedes modelar y calcular. Personaliza con complementos para aún más posibilidades.

      Comenzar
      3D FEA Software RFEM 6 | First Steps Imagen de menú de banner | Seminarios web de noticias | Versión para móviles
      Software de análisis de estructuras gratuita para estudiantes

      Miles de estudiantes en todo el mundo ya se benefician del software de Dlubal. Disfruta de acceso gratuito, formación y soporte experto durante tus estudios.

      Obtener licencia gratuita
      Software de análisis de estructuras gratuito para estudiantes Software de análisis de estructuras gratis para estudiantes
    • Acerca de la empresa
      • Historia y hechos
      • Filosofía de la empresa
      • ¿Por qué Dlubal Software?
      • Comparación de productos
      • Política de calidad
      • Nuestro equipo
      Contacto
      • Oficinas de Dlubal en todo el mundo
      • Distribuidores autorizados de Dlubal
      Referencias
      • Opiniones de clientes
      • Proyectos de clientes
      • Casos de aplicación
      • ¿Por qué enviar su proyecto de cliente?
      • Ejemplos de verificación
      • Su reseña
      • Participación en proyectos de investigación
      Nuestros clientes

      Presentamos a los clientes que realizan sus proyectos con Dlubal Software. Descubra cómo nuestros clientes en todo el mundo implantan soluciones innovadoras en la construcción e ingeniería utilizando herramientas avanzadas para análisis estáticos y dinámicos.

      Ver clientes
      Éxito en la construcción juntos

      Descubra cómo los ingenieros líderes de todo el mundo confían en nuestras soluciones para elevar sus proyectos con nosotros.

      Ver nuestros clientes
      See Our Customers Imagen de banner de menú | Empresa_NuestrosClientes_Móvil
      Conozca a los expertos

      Nuestros ingenieros dedicados están aquí para ayudarte con la modelación, el diseño y los desafíos técnicos, en cualquier momento y lugar.

      Conectar con el soporte técnico
      Our Team Imagen de banner de menú | Empresa_Nuestro equipo | Versión móvil
    • Carrera
      • Empleos
      • Equipos
      • Blog del personal
      • Información
      Empleos
      • Todas las ofertas de trabajo
      • Desarrollo de productos
      • Soporte al cliente
      • Ventas
      • Marketing
      • Desarrollo de software
      • Administración
      • Estudiantes en prácticas
      • Otros
      Equipos
      • Desarrollo de productos
      • Atención al cliente
      • Ventas
      • Marketing
      • Desarrollo de software
      • Administración
      Por qué elegir Dlubal
      • Cultura empresarial
      • Beneficios para empleados
      Construya su futuro con nosotros

      Revela cómo nuestro equipo da forma al futuro de la ingeniería. Experimenta la innovación, el crecimiento y desafíos emocionantes.

      Carrera en Dlubal Imagen en banner de menú en la móvil | Carrera en Dlubal
      Encuentra el trabajo de tus sueños

      Únete a un líder mundial en software de ingeniería y lleva tu carrera a nuevos niveles.

      Explore las vacantes disponibles
      All Open Positions Imagen de banner de menú | Puestos vacantes para móvil
    • Tienda en línea
    Productos principales
    Icono que representa RFEM 6, una aplicación de software de análisis de elementos finitos.
    RFEM 6
    Icono de RSTAB 9 sin límites
    RSTAB 9
    Icono de RWIND 3 sin límites
    RWIND 3
    Icono de RSECTION 1 sin límites
    RSECTION
    Servicios en línea
    Icono de herramienta Geo-Zone
    Herramienta Geo-Zone Tool
    Propiedades de sección
    Propiedades de sección
    Ícono de API
    API
    Icono de cálculo en la nube
    Cálculo en la nube
    Modelos descargables
    Modelos para descargar
    Icono de la comunidad de Dlubal
    Comunidad de Dlubal
    Icono de artículos de la base de datos de conocimientos
    Base de datos de conocimiento
    Seminarios web en línea
    Seminarios web
    Inicie sesión en su cuenta

    Regístrese en el extranet de Dlubal para aprovechar al máximo el software y tener acceso exclusivo a sus datos personales.

    Iniciar sesión Crear cuenta
    Prueba gratuita de 90 días
    Inicie sesión en su cuenta

    Regístrese en el extranet de Dlubal para aprovechar al máximo el software y tener acceso exclusivo a sus datos personales.

    Iniciar sesión Crear cuenta
    • Productos
    • Análisis por elementos finitos (AEF)
    • Complementos para RFEM 6
    • Soluciones especiales
    • Superficies multicapa (p. ej. laminada, CLT) para RFEM 6
    Icono de RFEM 6 | Dlubal Software Superficies multicapa (p. ej., laminadas, CLT)
    Manuales en línea
    • Manual | Superficies multicapa
    • Tutorial para RFEM 6
    • RFEM 6 / RSTAB 9 | Primeros pasos
    }
    calculator icon
    Precios
    Superficies multicapa (laminadas, CLT, etc.) para RFEM 6

    Superficies multicapa (laminadas, CLT, etc.) para RFEM 6

    El complemento Superficies multicapa le permite definir estructuras de superficies multicapa.

    Usted crea una matriz de rigidez global local a partir de una estructura de capas definida. Este complemento es adecuado, por ejemplo, para la definición de elementos de madera contralaminada, hormigón armado con fibras textiles, paneles de vidrio aislante, plástico reforzado con fibras, etc. El cálculo se realiza en los complementos, como Cálculo de madera.

    Banner | Superficies multicapa (p. ej. laminada, CLT) para RFEM 6

    Definición de superficies multicapa, como por ejemplo superficies laminadas o madera contralaminada (CLT)

    Total de artículos: 3
    Tensiones en superficies de madera contralaminada
    • General
    • Cálculo de estructuras de madera para RFEM 6
    • Estructuras de madera
      • Eurocode 5

    Superficies multicapa | Características

    • Definición flexible de diferentes composiciones de capas
    • Alta eficiencia debido a la cantidad mínima de datos de entrada
    • Flexibilidad gracias a las opciones de configuración detalladas para las bases y el alcance de los cálculos
    • Generación de una matriz de rigidez global local de la superficie en RFEM, basada en el modelo de material seleccionado y las capas contenidas
    • Visualización gráfica de la orientación de capas individuales
    • Definición de elementos de paneles de madera utilizando el tipo de espesor "Panel de vigas"
    Estructura de capas de panel de vidrio laminado
    Tipo de espesor - Capas
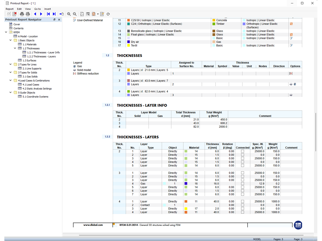
    Gráfico de la estructura de capas en el informe
    Tensiones en la superficie de madera contralaminada
    • General
    • Estructuras laminadas y tipo sándwich
    • Eurocode 5

    Superficies multicapa | Procedimiento

    Tenga en cuenta que todos los datos especificados en el complemento Superficies multicapa con respecto a los materiales, combinaciones de carga y combinaciones de resultados deben cumplir con el concepto de cálculo de la norma. La biblioteca de materiales ya contiene los materiales relevantes. RFEM le permite generar automáticamente las combinaciones de carga y de resultados según la norma. Si lo desea, también puede crear estas combinaciones manualmente.

    Puede variar la estructura de las capas que forman la base para el cálculo de la rigidez. Además, puede ajustar los parámetros definidos por el modelo de material seleccionado según sus necesidades individuales. De esta manera, se proporciona una selección completamente libre al generar las rigideces.

    El material seleccionado también determina las tensiones límite de cada capa. También puede ajustar estos valores según sus necesidades. En este caso, la composición de las capas se asigna a cualquier superficie como un tipo de espesor.

    Deformaciones de superficies de madera contralaminada
    Tensiones en la superficie de madera contralaminada
    Definición de capa en el informe
    Gráfico de la estructura de capas en el informe
    • General
    • Estructuras laminadas y tipo sándwich

    Superficies multicapa | Resultados

    Las rigideces contienen todas las fórmulas de comprobación de diseño, incluidas las referencias estándar, para que pueda seguir con precisión las comprobaciones de diseño.

    En este caso, todos los datos de entrada y resultados son parte del informe de RFEM. Puede seleccionar el contenido y la extensión del informe específicamente para las comprobaciones de diseño individuales. Al final, tiene exactamente lo que quería.

    • Invitación a una demostración de producto online sobre funcionalidades avanzadas del software
      Solicitar una demostración del producto en línea

      Experimente Dlubal en vivo: ¡solicite su demostración de producto en línea hoy mismo!

    • Cartel promocional que invita a registrarse para una prueba gratuita de 90 días de los productos de Dlubal.
      Versión completa gratis durante 90 días

      La manera más efectiva de conocer el software de Dlubal es probarlo usted mismo.

    • Contacta con nuestro equipo de ventas para recibir asesoramiento experto sobre soluciones de software avanzadas.
      Contactar con el equipo de ventas

      ¡Estamos aquí para usted!

    Tienda en línea

    ¡Configure su paquete de programas individual y descubra todos los precios en línea!

    • Familia de RFEM 6
    • Familia de RSTAB 9
    Ir a la tienda en línea

    Calcule su precio

    1.850,00 USD
    +110,00 USD
    Edificio de madera contralaminada (CLT)
    Importe total 1.960,00 USD

    Primeros pasos con RFEM 6

    ¿Aún no ha trabajado con RFEM o no muy a menudo? Aquí encontrará consejos útiles que le facilitarán la introducción a los programas de Dlubal.

    Más información
    Primeros pasos en la interfaz de usuario de RFEM 6 con menús y barras de herramientas claramente visibles Captura de pantalla de la interfaz inicial de RFEM 6 con opciones de configuración.

    Modelos de análisis estructural para descargar

    Explore una amplia gama de modelos de análisis estructural para RFEM, RSTAB, RSECTION y RWIND. Perfecto para tutoriales o inspiración para proyectos.

    Descargar modelos
    Plantillas de modelos técnicos descargables para un análisis de ingeniería preciso. Vista móvil que muestra modelos de análisis estructural descargables con miniaturas y etiquetas visibles.
    Software de cálculo de estructuras y diseño
    Dlubal Software GmbH

    Am Zellweg 2
    93464 Tiefenbach
    Alemania

    Contáctenos
    +34 960 13 67 00 (hablamos español) [email protected]
    Soluciones
    • Estructuras de hormigón armado
    • Estructuras de acero
    • Estructuras de madera
    • Uniones de acero
    Productos
    • RFEM 6
    • RSTAB 9
    • RSECTION 1
    • RWIND 3
    Soporte
    • Preguntas frecuentes (FAQ)
    • Formular una pregunta particular
    • Mapas de carga de nieve, velocidad del viento y carga sísmica
    • Contactar con nuestro equipo de ventas
    Novedades
    • Suscribirse al boletín de noticias
    • Noticias actuales
    • Resumen de eventos
    • Cursos de formación en línea
    Recursos
    • Versión completa de prueba gratis
    • Enviar un proyecto de cliente
    • Proyectos de clientes
    • Manuales en línea
    Unirse a Dlubal
    Comunidad de Dlubal YouTube Facebook X LinkedIn Pinterest TikTok Instagram
    © 2001-2026 Dlubal Software GmbH | Todos los derechos reservados
    Nota legal
    Acerca de la empresa
    Mapa del sitio
    Idioma
    • Deutsch
    • English
    • Français
    • Español
    • Português
    • Italiano
    • Česky
    • Polski
    • Pусский
    • 中文(简体)